Textile factory conversion
Creative Centre in Mexico City by Productora
The inner courtyards act as central gathering spots at the new creative centre. © Camila Cossio
The Mexican architectural studio Productora has transformed a former textile and yarn factory built in the 1920s into a creative centre. Located in Doctores, a central district of Mexico City, the Laguna project currently houses over 25 firms engaged in architecture, art and design.


Laguna is home to over 25 creative and crafts firms. © Camila Cossio
Creating community
After the severe earthquake of 2017, the owner of the Laguna complex offered affected companies premises at attractive rental prices on the condition that an active community was to come about in the former factory building. The Productora architectural office responded to the call, from now on assuming responsibility for refurbishment and conversion of the building complex.
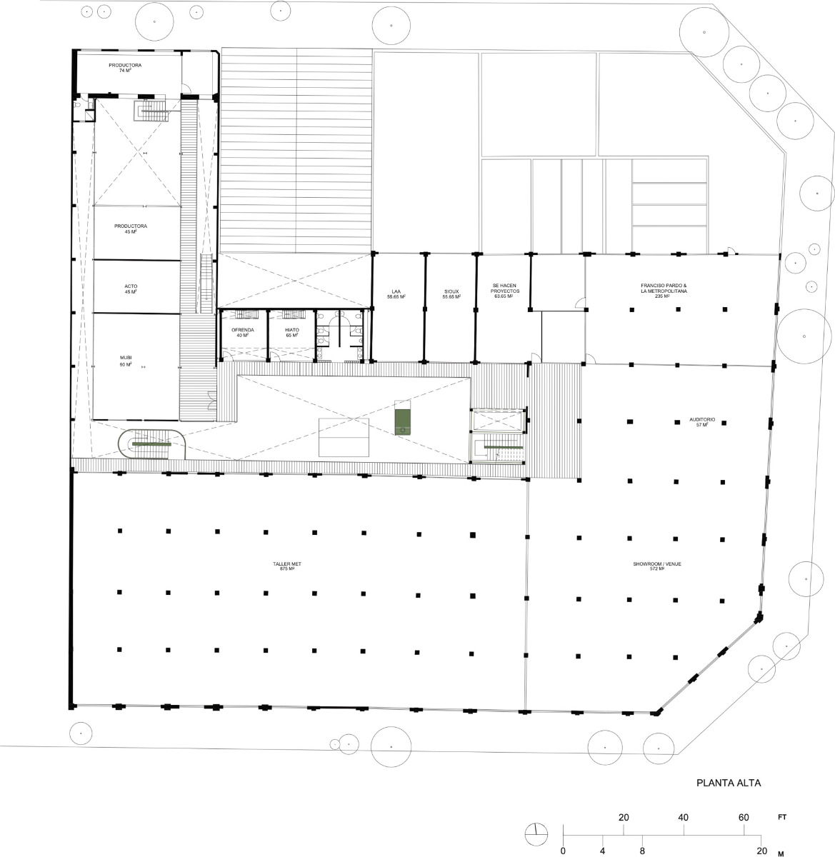
Thoughtful architectural interventions
The first step in converting the building was to clear two cluttered inner courtyards and thus enable them to become central gathering spots. Productora also added an extension and new circulation cores, with the latter being part of a walkway system along the building to link individual studios. The striking green colour of the added elements is that of the factory's historical machines, thus creating a connection between past and present.


A contemporary extension blends in effortlessly with the existing complex. © Arturo Arrieta
Creative centre in the heart of the city
The factory building's inherent structure incorporating heavy-duty floors and spacious rooms provided considerable flexibility for current-day occupancy and present and future alterations. Accordingly various creative and crafts firms are to be found at Laguna, ranging from architectural offices, furniture and textile workshops to ceramic studios and sales and exhibition spaces, as well as artist apartments most recently. The centre actively combats the prevailing gentrification of the district by consciously avoiding commercial rentals and by fostering social interaction.


Historical charm and contemporary design blend together at Laguna. © Camila Cossio
On-going process
Productora emphasizes that the alterations are a work in progress involving continual planning adjustments. As a next possible step, the team is considering an upward extension in which light metal constructions could serve as artist studios. The challenge of retaining the original character of the modernist factory building while meeting contemporary use requirements continues to be mastered by Productura with remarkable skill.
Architecture: Productora (Carlos Bedoya, Víctor Jaime, Wonne Ickx, Abel Perles)
Client: Marqcret
Location: Calle Dr Erazo 172, Colonia Doctores, Ciudad de México (MX)
Collaborators: Claudio Morales, Diana Jiménez, Nicolás Fueyo, Ruy Berumen, Rubén Flores, Carla Romano, Diego Velázquez, Fidel Fernandez, Pablo Manjarrez
Building construction: Colinas De Buen
Structural engineering: T2M





















