Kulturparkhaus mit Dachgarten: Estación San José in Toluca
Foto: Luis Gallardo/LGM Studio
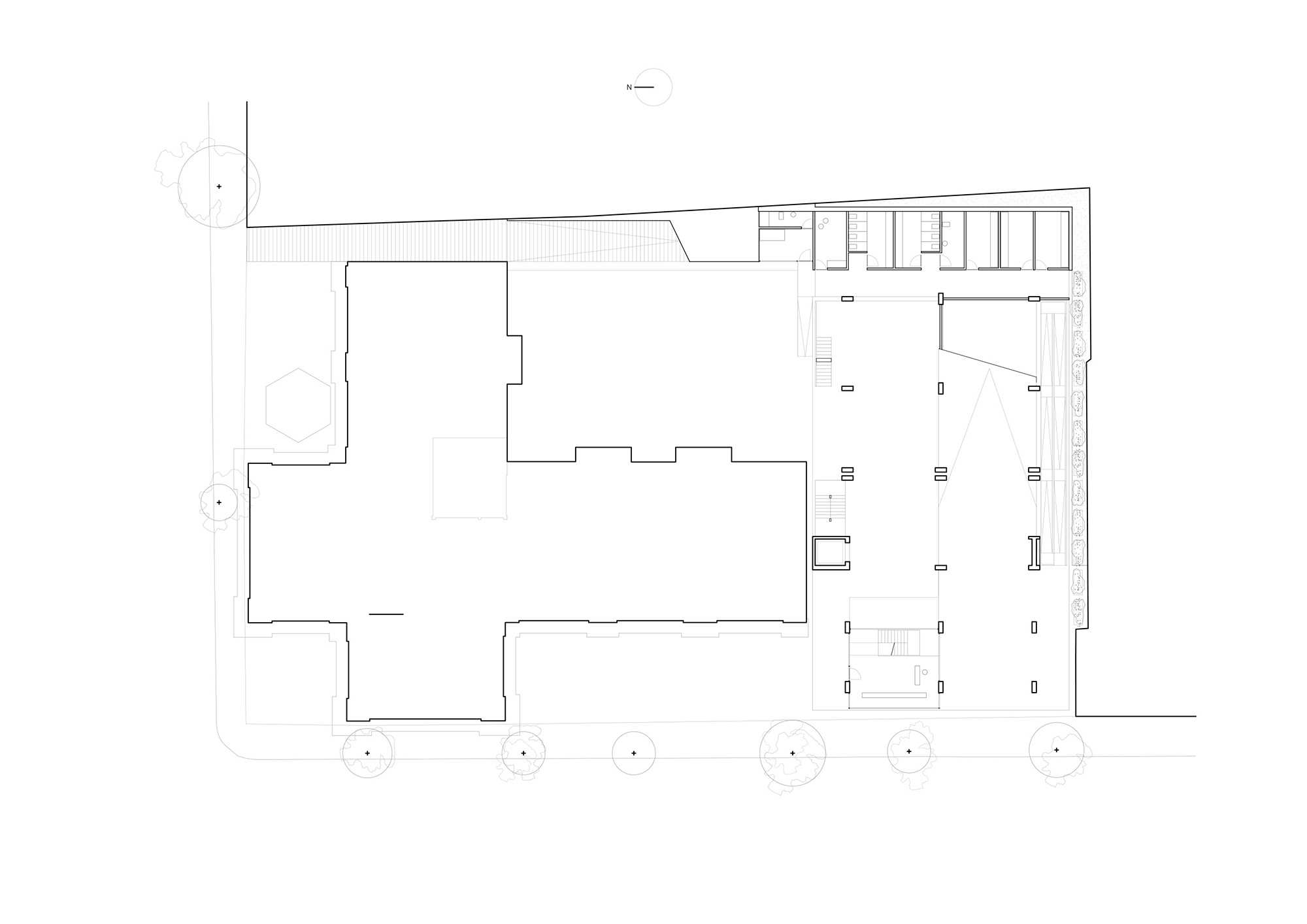
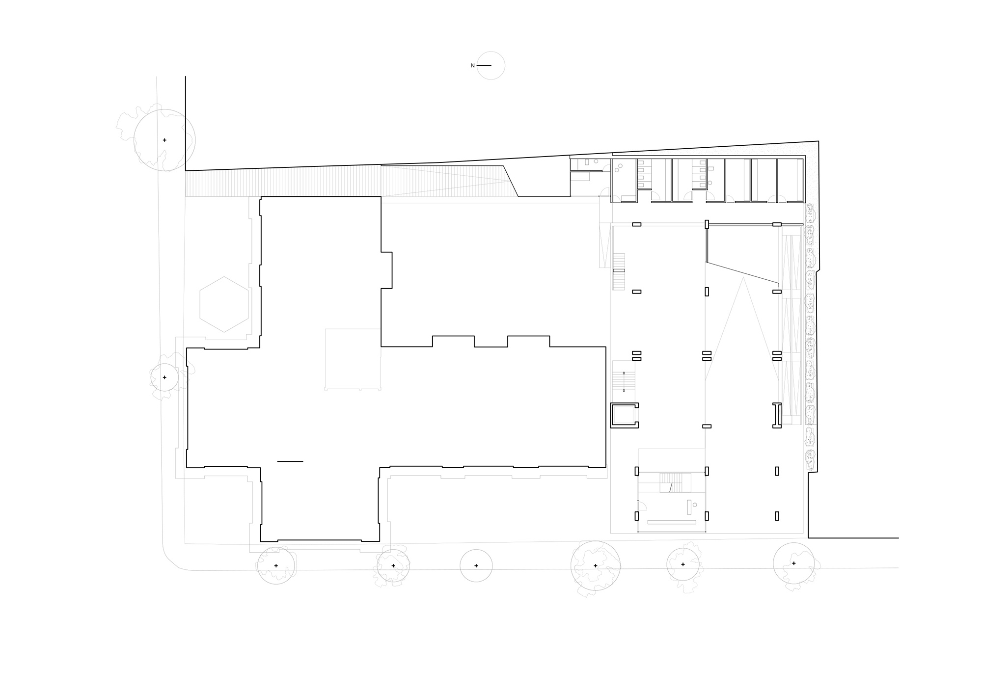
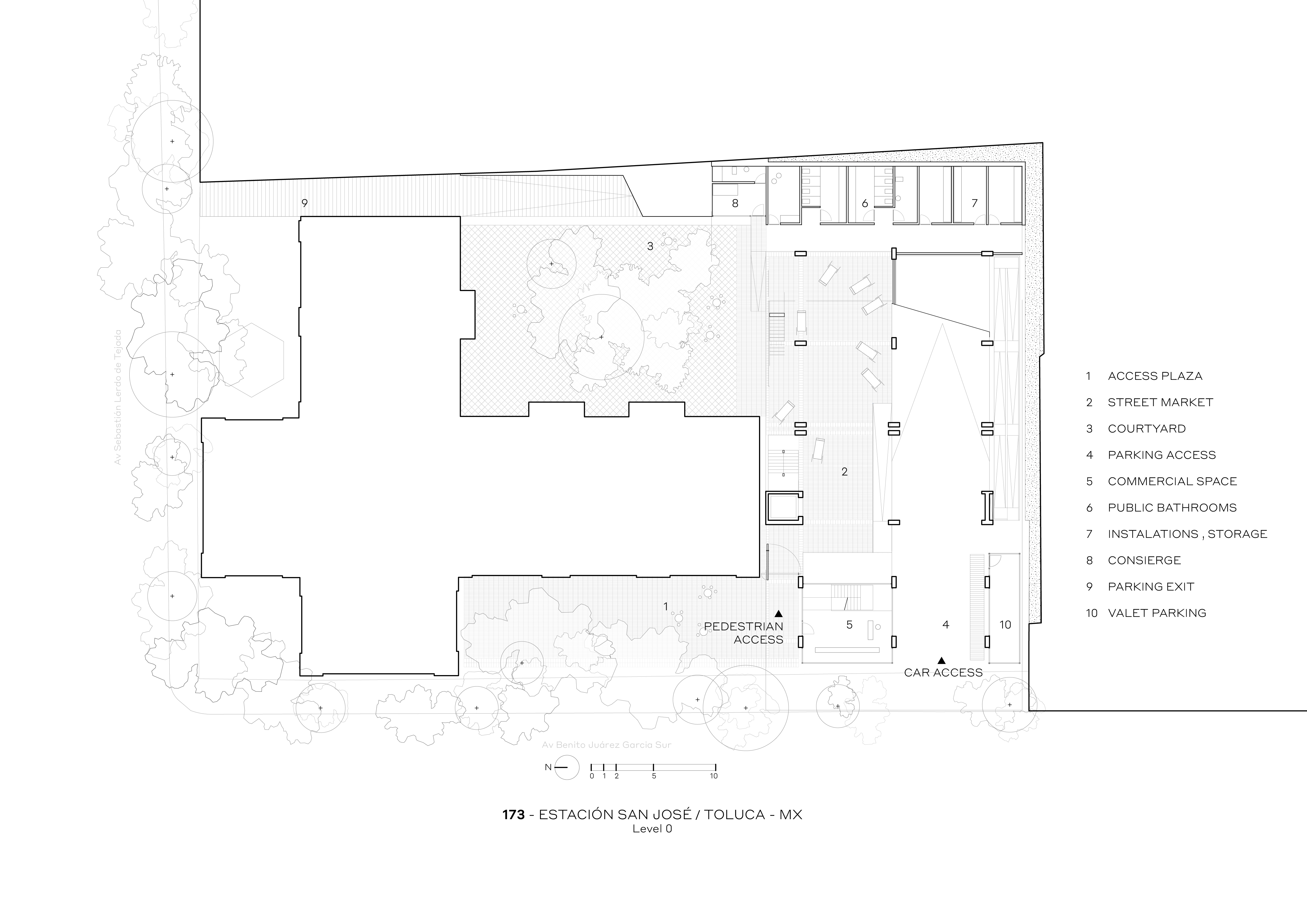
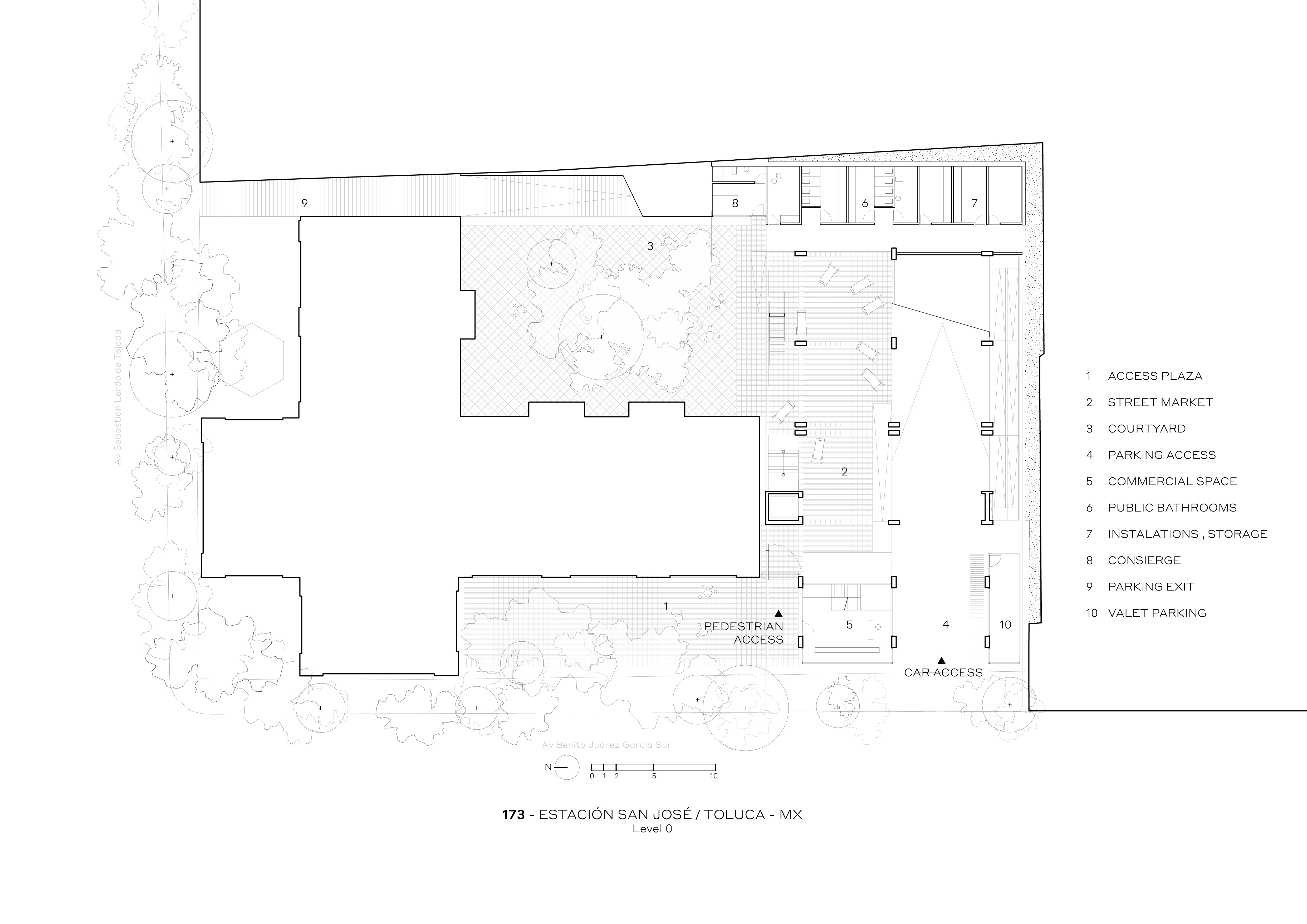
Im Zentrum der mexikanischen 900.000-Einwohner-Stadt Toluca kann schon ein siebengeschossiges Haus als Landmarke gelten – zumal wenn es so unkonventionell daherkommt wie dieses: Nahezu komplett in perforiertes Metallblech haben die Madrider Architekten FRPO ihren Neubau gehüllt, der neben Geschäfts- und Büroflächen vor allem Parkplätze enthält und von einem öffentlich zugänglichen Dachgarten bekrönt wird. Die Autos, für die immerhin 40% der Geschossfläche zur Verfügung stehen, parken im Sockelbau des Hauses, der sich auf vier Geschossen bis in die Tiefe des Gebäudeblocks erstreckt. Die übrigen Nutzungen (20% Läden, 30% Büros und 10% Dachgarten) konzentrieren sich vor allem auf den höheren Kopfbau an der Straße, der die nur zwei- bis dreigeschossigen historischen Nachbarhäuser deutlich überragt.
Die Metallhülle war zum einen eine Strategie, um die sehr heterogenen Nutzungen im Gebäude äußerlich zu vereinheitlichen. Zum anderen spenden sie Schatten für die dahinterliegenden Räume. Große Öffnungen in diesem Brise-Soleil rahmen gezielt Ausblicke, etwa auf die nahe gelegene Kathedrale oder den 4690 m hohen Hausberg Nevado de Toluca.
Die Fotos, die die Architekten nun veröffentlicht haben, geben einen Eindruck der vielfältigen Raumstrukturen mit ihren teils mehrgeschossigen Lufträumen im Inneren des Neubaus. Sie täuschen in ihrer Unfertigkeit jedoch über den Zustand nach dem Endausbau hinweg. Selbstverständlich soll in den Laden- und Bürogeschossen hinter der Blechhülle noch eine zweite Fassade als thermische Gebäudehülle installiert werden. Ihre genaue Konfiguration richtet sich ebenso nach den Bedürfnissen der Mieter wie der Innenausbau, bei dem die Architekten ebenfalls ein Wörtchen mitreden wollen. Derzeit, so ist zu hören, ist der private Bauherr im Gespräch mit einer Bibliothek, das in Unter-, Erd- und 1. Obergeschoss einziehen will, und mit dem Betreiber eines Coworking Office, der Interesser an den Etagen 3 bis 5 gezeigt hat.




































