Cultural Parkade with Rooftop Garden: Estación San José in Toluca
Foto: Luis Gallardo/LGM Studio
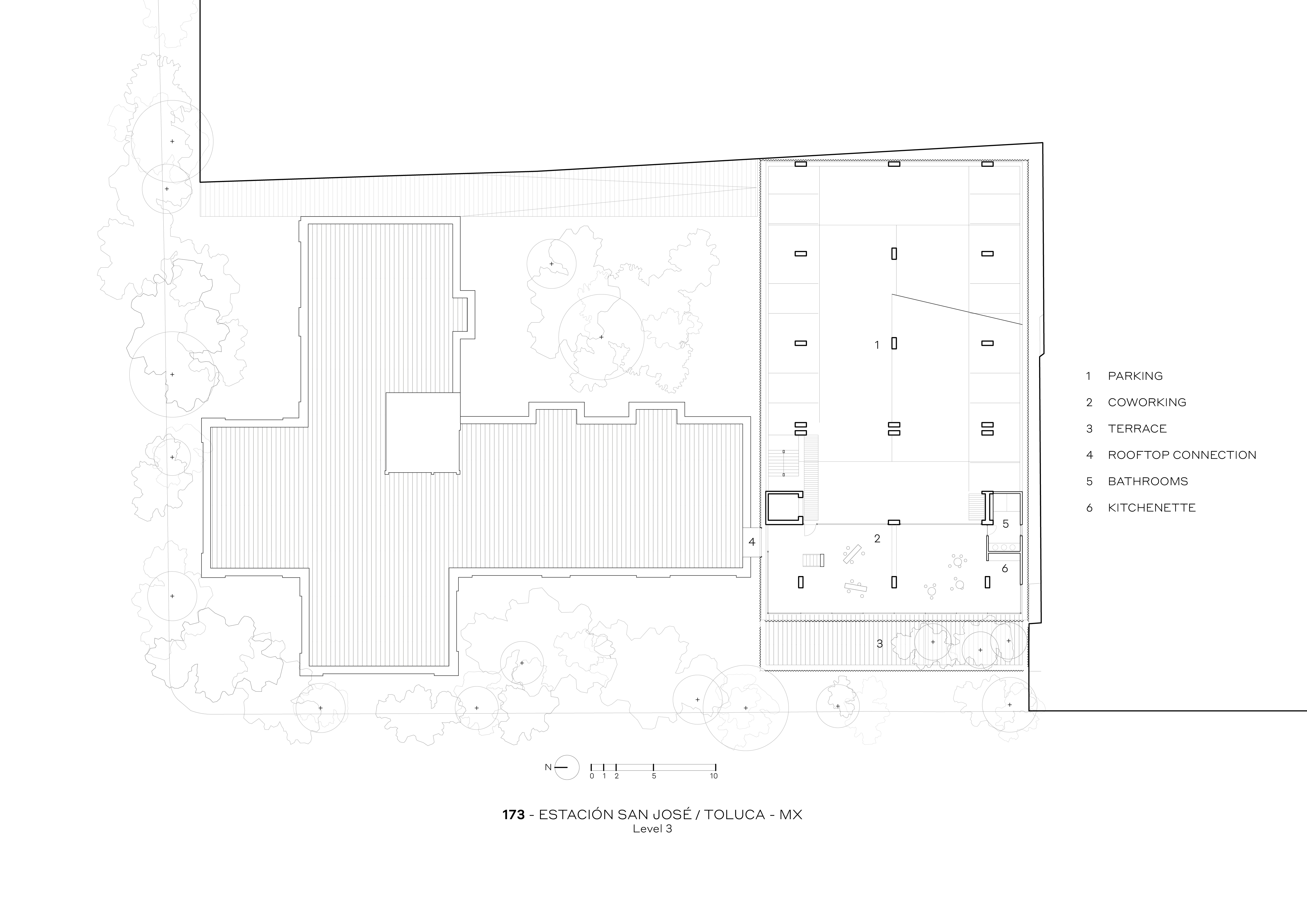
In the centre of the Mexican city of Toluca, which is home to 900,000 people, a seven-storey building can be considered a landmark – particularly when it looks as unconventional as this one: Madrid architects FRPO have veiled most of the structure in perforated metal sheeting. The building will accommodate shops, office spaces and parking; its crowning glory is a publicly accessible rooftop garden. The cars, for which 40% of the space will be available, can be parked in the building’s base construction, which extends over four storeys into the depths of the complex. The remaining functions (20% retail, 30% offices and 10% rooftop garden) are to be concentrated primarily on the taller frontage along the road, where the structure looms above its neighbouring historical buildings, which have only two or three storeys.
The metal shell was first and foremost a strategy for uniting the building’s heterogeneous functions in terms of its exterior. Moreover, it casts shade on the spaces behind it. Large openings in this sunshade frame specific views, for instance of the nearby cathedral and the local Nevado de Toluca mountain, which stands 4,690 m high.
The photos that have now been published by the architects give an impression of the multifaceted spatial structures and the atria inside the building, some of which extend over several storeys. Their crudity is deceiving in that it reveals little of how the structure will look once completed. Naturally, a second façade will be installed behind the metal sheeting as a thermal shell. Its precise configuration will be determined as much by the needs of the tenants as by the interior fittings; furthermore, the architects want to give their input here as well. It is said that currently, the private client is in discussion not only with a library that wants to move into the lower level, ground floor and first upper storey, but also with the operator of a coworking office, who has shown interest in the third to fifth upper levels.




































