Raumplan aus Sichtbeton
Kulturzentrum Antipode in Rennes von Dominique Coulon
Das Wechselspiel aus dunklem Sichtbeton und großen Glasflächen gliedert die Fassaden des Kulturzentrums Antipode. © Eugeni Pons
Wenn es um Konzertsäle, Bibliotheken und Kulturzentren geht, gehören der Straßburger Architekt Dominique Coulon und sein Büro zu den ersten Adressen in Frankreich. Im Westen der bretonischen Hauptstadt Rennes haben sie gleich drei unterschiedliche Nutzungen zu einem spannungsreichen Gebäudekomplex voller räumlicher Überraschungen vereint.


Der Neubau liegt in einem weitläufigen Grünzug auf dem Areal einer ehemaligen Waffenfabrik. © Eugeni Pons
Offenes Raumkonzept
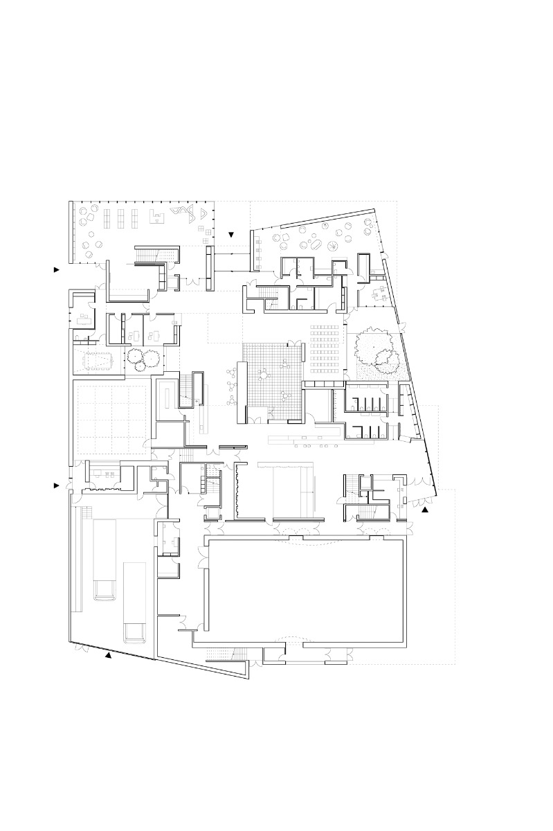
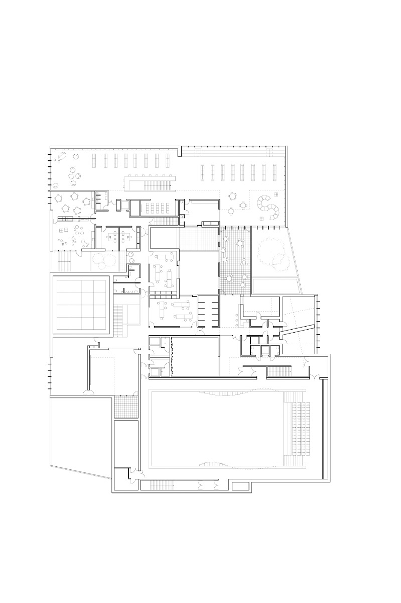
Als „eine Architektur des Zwischenraums, eine Architektur des Spalts“ bezeichnen Dominique Coulon & Associés das Gestaltungsprinzip des Kulturzentrums Antipode. Egal von wo man sich dem dreigeschossigen Neubau nähert, überall gliedern Rücksprünge, Dachterrassen und kleine Höfe die Baumasse. Rund 5800 m² Geschossfläche hatten die Architekten im Gebäude unterzubringen. Statt diese zu einer kompakten Masse zu formen, schufen sie ein auf allen Seiten – und auch im Inneren – offenes Raumkonzept.
Kontrastreiche Gestaltung
Antipode bedeutet Gegenspieler – und an Kontrasten mangelt es dem Kulturzentrum nicht: Etwa zwischen den Außenwänden aus durchgefärbtem Sichtbeton und den großen Glasflächen oder zwischen dem dunklen Farbton der Fassaden und den tageslichthellen Innenräumen. Das Baugrundstück liegt rund 2 km westlich der Innenstadt in einem weitläufigen Grünzug. Genug Platz also, um das Gebäude in die Breite, statt in die Höhe zu entwickeln. Früher wurden hier einmal Waffen produziert – die Mauerreste der alten Fabrikanlagen legen hier und da noch Zeugnis davon ab. Antipode ist nicht der einzige Neubau im Gebiet: Auch viele der umliegenden Flächen werden nach einem Masterplan der Stadtplaner Secchi und Vigano neu entwickelt.


Die Agora ist Eingangshalle und zentraler Treffpunkt in einem. Auf allen Seiten umgeben Sichtbetonoberflächen den Raum. © Eugeni Pons
Kommunikative Zone aus Sichtbeton
Der Haupteingang führt direkt in die zentral gelegene Agora, die kommunikative Herzkammer des Gebäudes fast ganz aus Sichtbeton. Loos’ Konzept des Raumplans stand Pate für den großen Verteilerraum mit seinen vielfältig verschachtelten Volumina und Rückzugsnischen. Der viele Beton im Haus war laut Dominique Coulon aus akustischen und statischen Gründen geboten – der Architekt bekennt aber auch: „Ich baue gern mit diesem Material“.


Der Lesesaal im Obergeschoss der Stadtteilbibliothek öffnet sich auf allen vier Seiten ins Freie. © Eugeni Pons
Eine eigene Einheit mit separatem Zugang bildet die 650 m² große Stadtteilbibliothek an der Hauptstraße im Norden. Ihr großer Lesesaal im Obergeschoss verdeutlicht das Prinzip, das die Architekten beim Entwurf leitete: Von allen vier Seiten flutet Tageslicht in den Raum. Durch die Glasfassaden fällt der Blick hinaus Richtung Straße und in einen der Höfe, die den Gebäudekomplex gliedern.


Die kommunikative Herzkammer des Gebäudes besteht fast ganz aus Sichtbeton. © Eugeni Pons


Mit Innenhöfen und großen Dachlaternen holten die Architekten viel Tageslicht ins Gebäude. © Eugeni Pons
Platz für Kultur
Neben der Bibliothek und der Agora gibt es einen großen Konzertsaal für bis zu 900 und einen kleinen für 250 Personen, einen Veranstaltungssaal für Bürgerversammlungen und ähnliche Events, Probenräume, Garderoben und ein Aufnahmestudio. Im Jugend-Kulturzentrum kommen Räume für Tanz und plastisches Gestalten, zum Feiern und für Kurse aller Art hinzu. Der Wechsel niedriger und höherer Raumabschnitte – ein Markenzeichen der Architektur von Dominique Coulon – sorgt immer wieder für räumliche Spannung und natürlich für reichlich Tageslicht im Haus.
Architektur: Dominique Coulon & associés
Bauherr: Stadt Rennes
Standort: 75 Avenue Jules Maniez, 35000 Rennes (FR)
Tragwerksplanung: Batiserf Ingénierie
Landschaftsarchitektur: Bruno Kubler
TGA-Planung: BET Louis Choulet
Elektroplanung: BET G. Jost
Kostenplanung: E3 Économie
Szenografie: Atelier Sophie Thomas
Akustik: Euro Sound Project
























