Lagerhaus für die Kunst: Museum von Emre Arolat in Istanbul
Foto: Engin Gerçek (Studio Majo)
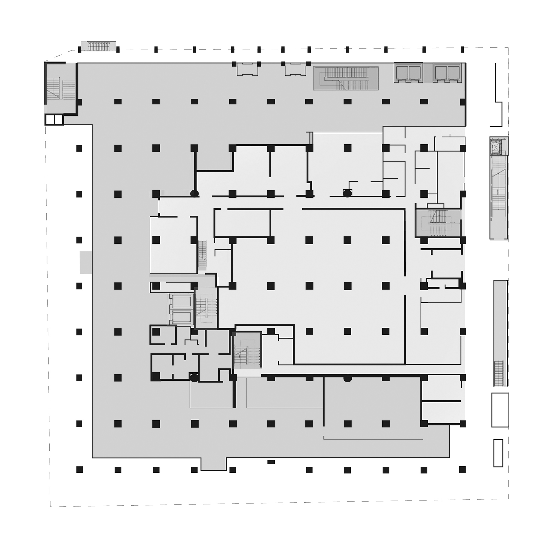
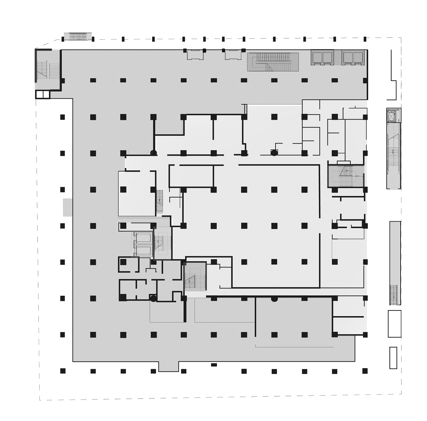
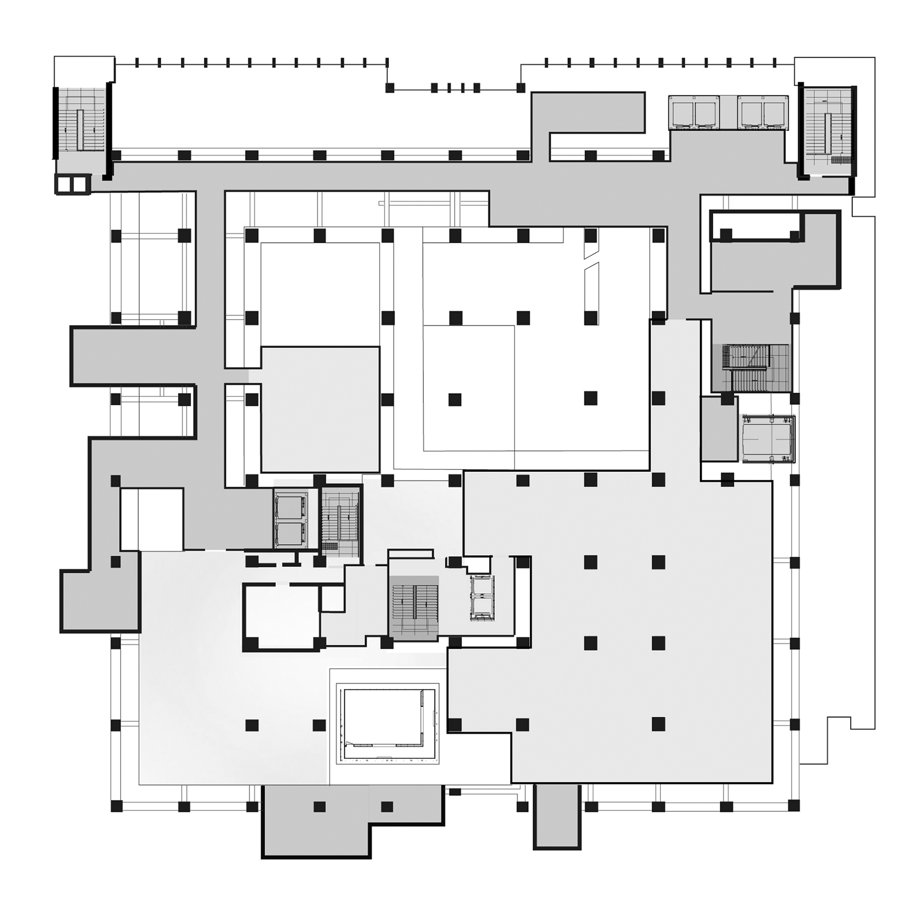
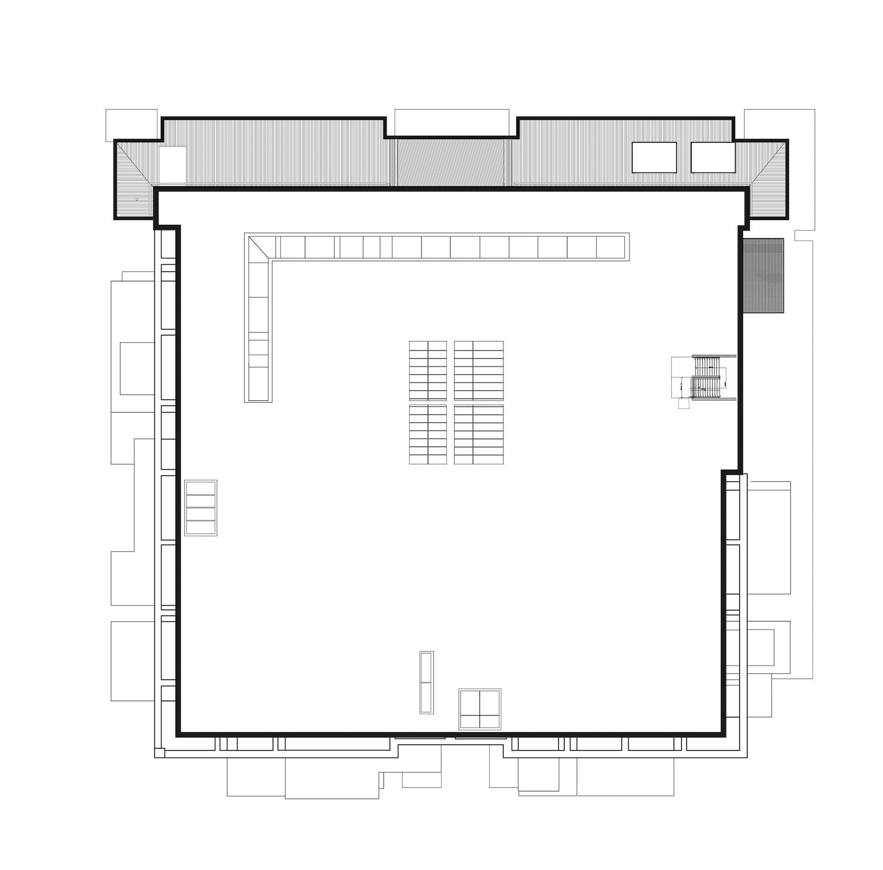
Das Gemälde- und Skulpturenmuseum im Istanbuler Stadtteil Karaköy wurde 1937 von Kemal Atatürk gegründet und wird inzwischen von der Mimar-Sinan-Universität verwaltet. Der Umzug in ein neues Domizil, der für das Museum noch 2020 ansteht, wird zumindest räumlich einen radikalen Neuanfang bedeuten: hinaus aus den Sälen des prunkvollen Dolmabahce-Palasts und hinein in ein ehemaliges Lagergebäude rund 2 km weiter westlich am Hafen. Der Betonskelettbau entstand in den 50er-Jahren nach Plänen von Sedad Hakkı Eldem und gliedert sich in einen sechsgeschossigen Büroflügel an der Meclis-i Mebusan-Straße im Norden und das eigentliche, im Grundriss fast quadratische Lagerhaus im Süden. Obwohl Emre Arolat Architecture das Bestandsgebäude bis auf das Tragskelett entkernt haben, behielten sie diese Zweigliederung auch in ihrem Umbaukonzept bei. Die neue, mit grausilbrigen Mosaikfliesen verkleidete Nordfassade erinnert in ihrer kleinteiligen Gliederung noch entfernt an die Bürofassade des Vorgängerbaus; dahinter öffnet sich jedoch nun eine über die gesamte Gebäudehöhe reichende Eingangshalle.
Die südlich anschließenden Ausstellungsebenen sind mit containerartigen Einbauten vertikal und horizontal gegliedert. Dazwischen öffnen sich teils mehrgeschossige, mit Rampen und Treppen verbundene Lufträume, die als Erschließungs- und Ausstellungsflächen dienen. An den drei der Straße abgewandten Seiten durchdringen die „Container“ die Außenhülle des Museums und bringen so den Begriff des Kunstlagers sinnfällig auf den Punkt. Sie sind mit roten Faserzementplatten hinter perforiertem Trapezblech verkleidet und werden von verdeckt angebrachten LEDs in Szene gesetzt. Deren Leistung variiert je nach Einbauort: in den Innenräumen weniger hell, um den Kunstgenuss nicht zu stören, und an den Fassaden heller, zugunsten eines plakativen Ausdrucks.


























