// Check if the article Layout ?>
Landschaft frei übersetzt: Supermarkt von LAAC
( Photo: Nigel Young / Foster Partners)
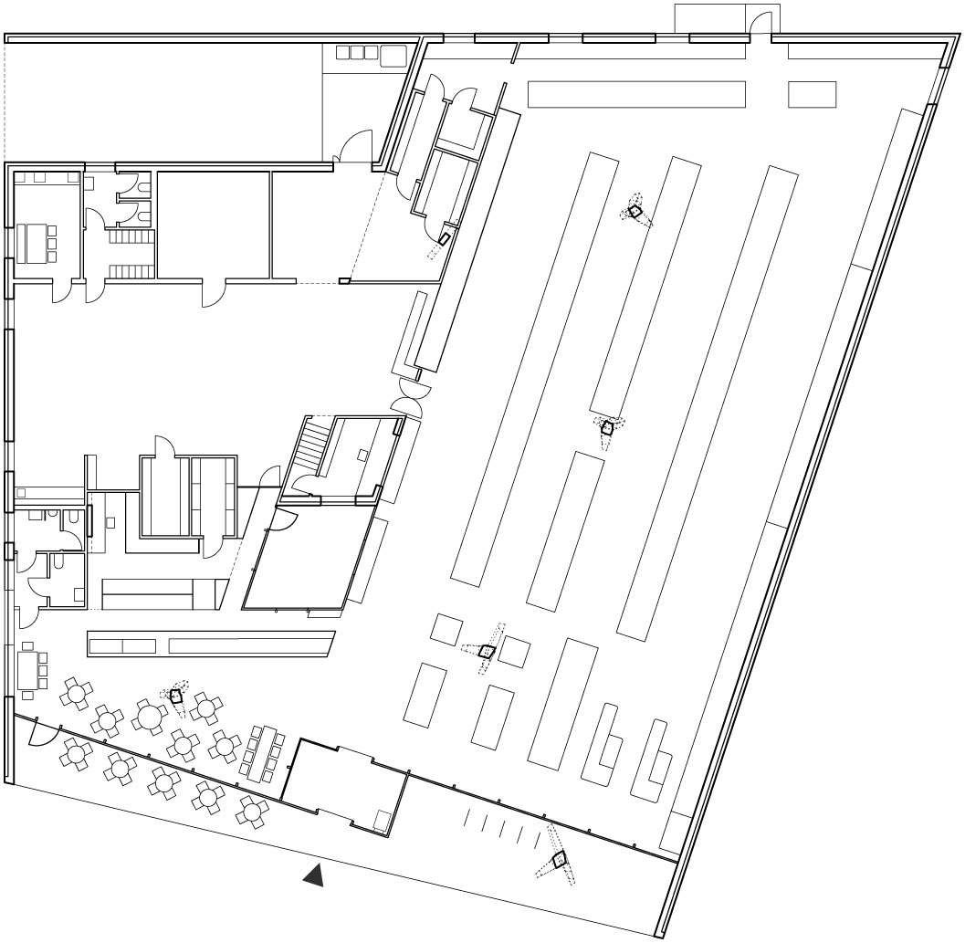
Zwischen den Orten Einöde und Pill liegt die Dorfgemeinde Weer. Direkt südlich des Inn, am Rande der Tuxer Alpen, wird mehr als die Hälfte der Bodenfläche landwirtschaftlich bewirtet. Ein neuer Supermarkt soll nun die regionale wie überregionale Ware weiterverteilen. Dazu lud das Unternehmen MPreis erneut LAAC ein, einen Markt zu entwerfen. Die Häuser des Nahversorgers fallen an vielen Orten in Tirol bereits durch ihre außergewöhnliche Architektur auf.
Das eingeschossige Gebäude steht am Ortsrand nahe der Pfarrkirche. Im Grundriss ist der monolithisch erscheinende Bau trapezförmig. Drei seiner Außenwände sind mit glänzend polierten Edelstahlpaneelen verkleidet, sodass sie die Farben zurück in die Landschaft werfen. An der vierten Seite öffnet sich die transparente Hauptfassade zur Zufahrtsstraße hin. Durch die vollflächige Verglasung erhaschen die ankommenden Kunden erste Blicke ins Innere. Dort erwartet sie warm pigmentierter Sichtbeton, der an der großzügig geöffneten, südlichen Fassade nach außen tritt. Als umlaufendes Band aus Stahlbeton gibt er der Glasfassade auch optisch Halt.
Baumstützen aus Stahlbeton sind eine Hommage an die üppige Natur in der Umgebung. Genauso inszenieren sehr bewusst platzierte Öffnungen den Ausblick beim Einkauf: Horizontale Fenster über der Feinkosttheke und ein Shedoberlicht bieten freie Gipfelsicht, wann immer es das Wetter erlaubt. Die Materialien des Gebäudes sind auf das Wesentliche reduziert, um die Ware in den Vordergrund zu stellen.
Der Supermarkt ist als Passivhaus gebaut. Die Abwärme der Kühlung dient zum Aufheizen des Marktes, während die Kühlung wiederum über natürliche Nachtlüftung funktioniert. Zudem ist das Dach mit Photovoltaik-Paneelen bestückt, deren Leistung von Akkus gespeichert wird. So kann der Ertrag erhöht und die Versorgungssicherheit verbessert werden.
In Venedig ist zur Zeit die ebenfalls spiegelglatte Ausstellung von LAAC im österreichischen Pavillon zu sehen.
















