// Check if the article Layout ?>
Landscape freely translated: Supermarket by LAAC
( Photo: Nigel Young / Foster Partners)
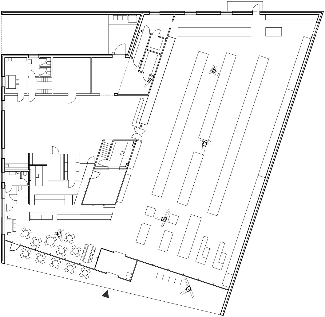
Between the villages of Einöde and Pill lies the rural community of Weer. Directly south of the river Inn, on the edge of the Tux Alps, more than half of the area is agricultural. A new supermarket is now set to redistribute regional and national goods. The company MPreis once again invited LAAC to design the store. The local supplier’s buildings are already noticeable in many places in Tyrol because of their extraordinary architecture.
The single-storey building stands on the outskirts near the parish church. Its monolithic structure is trapezoidal in plan. Three of its exterior walls are clad in polished stainless steel panels, so they reflect the colours onto the landscape. On the fourth side, the transparent main façade opens onto the access road. Through the full-surface glazing, approaching customers catch first glimpses into the interior. Warm pigmented exposed concrete is found there, stepping out onto the generously open, southern façade. As a circumferential band of reinforced concrete, it gives the glass façade a visual hold, too.
Tree pillars made of reinforced concrete are a tribute to the surrounding area’s lush nature. Likewise, deliberately placed openings offer a frame onto scenic views that can be enjoyed while shopping: horizontal windows above the delicatessen counter and a lantern skylight provide clear views of the mountaintops whenever the weather permits. The building’s materials are reduced to the essentials in order to order emphasis on the goods in the foreground.
The supermarket is built as a Passive House. The waste heat from cooling is used to heat up the store, while the cooling in turn works as natural ventilation at night. In addition, the roof is equipped with photovoltaic panels, whose power is stored in batteries. Thus, the yield can be increased and the reliability of supply improved.
In Venice, the equally ultra-smooth LAAC exhibition can currently be seen in the Austrian pavilion.
The single-storey building stands on the outskirts near the parish church. Its monolithic structure is trapezoidal in plan. Three of its exterior walls are clad in polished stainless steel panels, so they reflect the colours onto the landscape. On the fourth side, the transparent main façade opens onto the access road. Through the full-surface glazing, approaching customers catch first glimpses into the interior. Warm pigmented exposed concrete is found there, stepping out onto the generously open, southern façade. As a circumferential band of reinforced concrete, it gives the glass façade a visual hold, too.
Tree pillars made of reinforced concrete are a tribute to the surrounding area’s lush nature. Likewise, deliberately placed openings offer a frame onto scenic views that can be enjoyed while shopping: horizontal windows above the delicatessen counter and a lantern skylight provide clear views of the mountaintops whenever the weather permits. The building’s materials are reduced to the essentials in order to order emphasis on the goods in the foreground.
The supermarket is built as a Passive House. The waste heat from cooling is used to heat up the store, while the cooling in turn works as natural ventilation at night. In addition, the roof is equipped with photovoltaic panels, whose power is stored in batteries. Thus, the yield can be increased and the reliability of supply improved.
In Venice, the equally ultra-smooth LAAC exhibition can currently be seen in the Austrian pavilion.
















