Industriebau mit Charakter
Lautsprecherfabrik von Formalocal
Der neue Firmensitz steht am Waldrand am Ende eines Gewerbegebiets im Nordosten der Kleinstadt Soort-Hossegor. © Sandrine Iratçabal
Die 3500-Einwohner-Gemeinde Soorts-Hossegor liegt ganz im Südwesten Frankreichs, rund 20 km nördlich von Biarritz. Der Ort gilt als Eldorado der Surfer, lebt aber nicht nur vom Fremdenverkehr, sondern ist auch Sitz mehrerer kleiner Industrieunternehmen. Für sie hat die Stadtverwaltung unlängst das Industriegebiet Pédebert ganz im Nordosten der Stadt erweitert. Ganz an seinem Ende, an einer zweiseitig vom Kiefernwald umgebenen Parzelle, hat sich die Lautsprechermanufaktur La Boite Concept ihren Firmensitz errichten lassen. Der Neubau stammt aus der Feder des Architekturbüros Formalocal aus Paris.


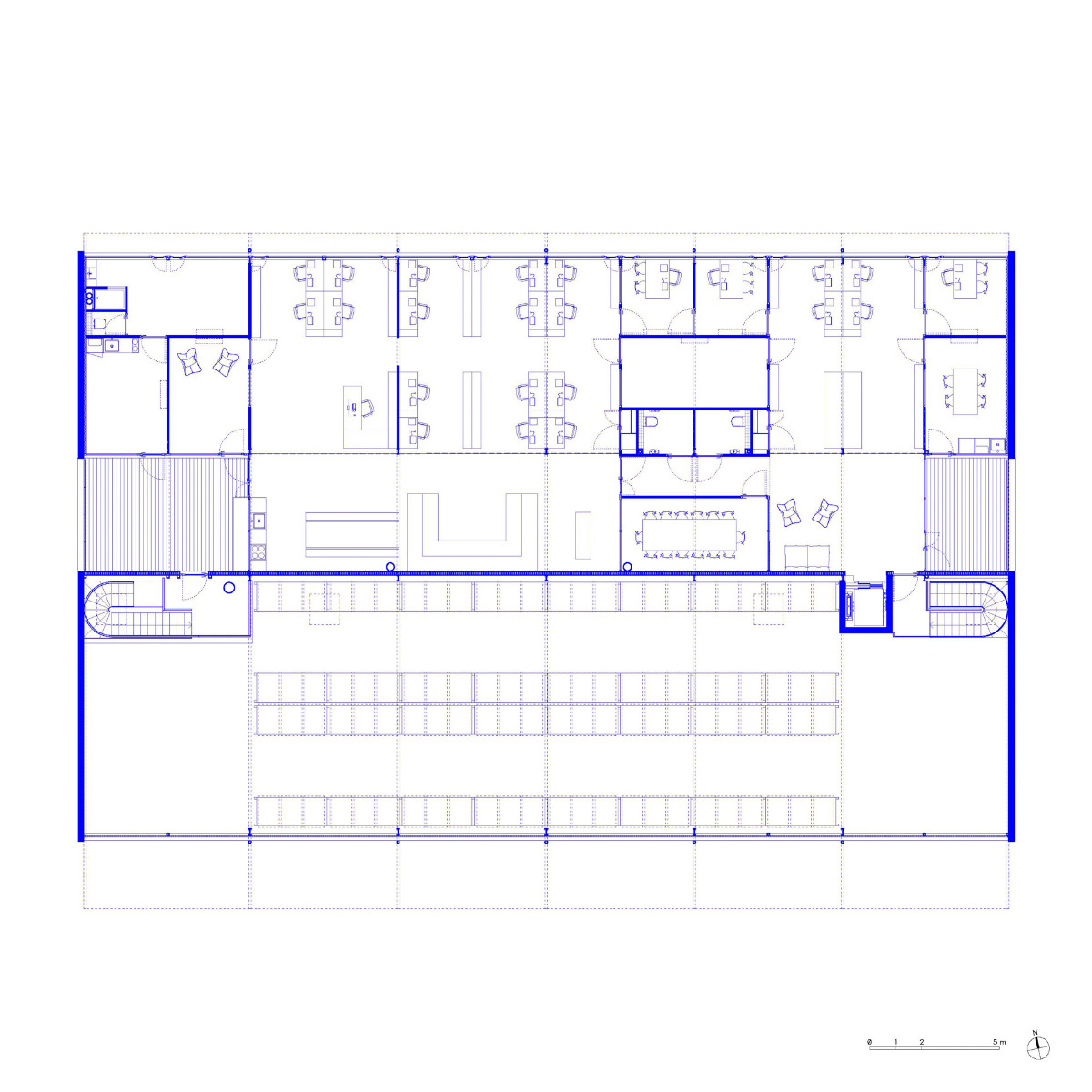
Ein regelmäßiges Stahltragwerk im 6-m-Raster gliedert die Grundrisse. © Sandrine Iratçabal
Geschicktes Spiel mit der Topografie
Nicht zuletzt aus Gründen des Brandschutzes musste das Gebäude Abstandsflächen von 12 und 6 m zur Grundstücksgrenze einhalten. Außerdem fällt das Gelände von Norden nach Süden um rund 1,20 m ab. Die Architekten nutzten die topografischen Voraussetzungen, um auf der Südseite eine Laderampe für Lkw ebenengleich ins Gebäude zu integrieren. Besucherinnern und Angestellte gelangen dagegen über den Parkplatz auf der Nordseite ins Haus.


Im Obergeschoss des Neubaus liegen die Büros der Mitarbeitenden. © Sandrine Iratçabal
Regelmäßiges Stahltragwerk
Eine verglaste, zweigeschossige Mittelzone gliedert das Gebäude in zwei Hälften. Südlich davon schließt sich ein Lagerraum an, der die komplette Gebäudehöhe einnimmt. Im Norden liegen im Erdgeschoss ein Showroom und im Obergeschoss die Büros der Mitarbeitenden. In der Längsrichtung gliedern querliegende Stahlrahmen im Abstand von 6 m das Gebäude in sechs Abschnitte. Die – mit Ausnahme der Mittelzone – fensterlosen Stirnseiten des Gebäudes bestehen aus Sichtbeton. Seine Längsseiten hingegen sind mit dunklem Metallblech verkleidet. Davor bilden regelmäßig angeordnete Regenfallrohre die innere Tragstruktur nach außen ab. Horizontale Fensterbänder und die leicht zurückspringende Sockelverkleidung auf der Südseite bilden dazu ein Gegengewicht.


Dunkle Metallverkleidungen, horizontale Fensterbänder und das regelmäßige Raster der Regenfallrohre gliedern die Längsfassaden. © Sandrine Iratçabal
Kostengünstig und doch repräsentativ
Auch im Inneren mussten die Architekten den Spagat zwischen Kosteneffizienz und Repräsentationscharakter bewältigen. Die Böden erhielten einen robusten Industriebelag aus Beton mit Quarzzuschlag. Alle Elektro- und Lüftungsleitungen verlaufen sichtbar, die Wände bestehen entweder aus Sichtbeton oder aus weiß gestrichenen Schlackenbetonsteinen. Das Mobiliar sowie alle Tür- und Fensterrahmen ließen die Architekten aus Kastanienholz fertigen.
Architektur: Formalocal
Bauherr: La Boite Concept
Standort: 135 Imp. des Rémouleurs, 40150 Soorts-Hossegor (FR)
Tragwerksplanung: Alde (Stahlbau), Irribaren (Beton)
HLS-Planung: Carte Atlantique
Elektroplanung: simotec
















