An industrial building with character
Speaker Factory by Formalocal
The new company headquarters are located at the edge of a forest, at the end of an industrial estate in the north-east of the small town of Soorts-Hossegor. © Sandrine Iratçabal
Soorts-Hossegor, a municipality with a population of 3500, is located around 20 km north of Biarritz in the south-west of France. While the town is considered a surfer's paradise, it does not rely solely on tourism; it is also home to several small industrial companies. The municipal authorities recently expanded the Pédebert industrial estate to the northeast of the town to accommodate these companies. At the end of the estate, on a plot of land bordered by pine forest on two sides, La Boite Concept has built its new headquarters. The building was designed by the Paris-based architectural firm Formalocal.


A regular steel structure with a 6 m grid divides the floor plans. © Sandrine Iratçabal
Clever use of the topography
For fire safety reasons, among others, the building had to maintain clearances of 12 and 6 m from the property boundary. Additionally, the site slopes down by around 1,2 m from north to south. The architects took advantage of this to incorporate a loading ramp for trucks at ground level on the south side of the building. Visitors and employees, on the other hand, enter the building via the car park on the northern side.


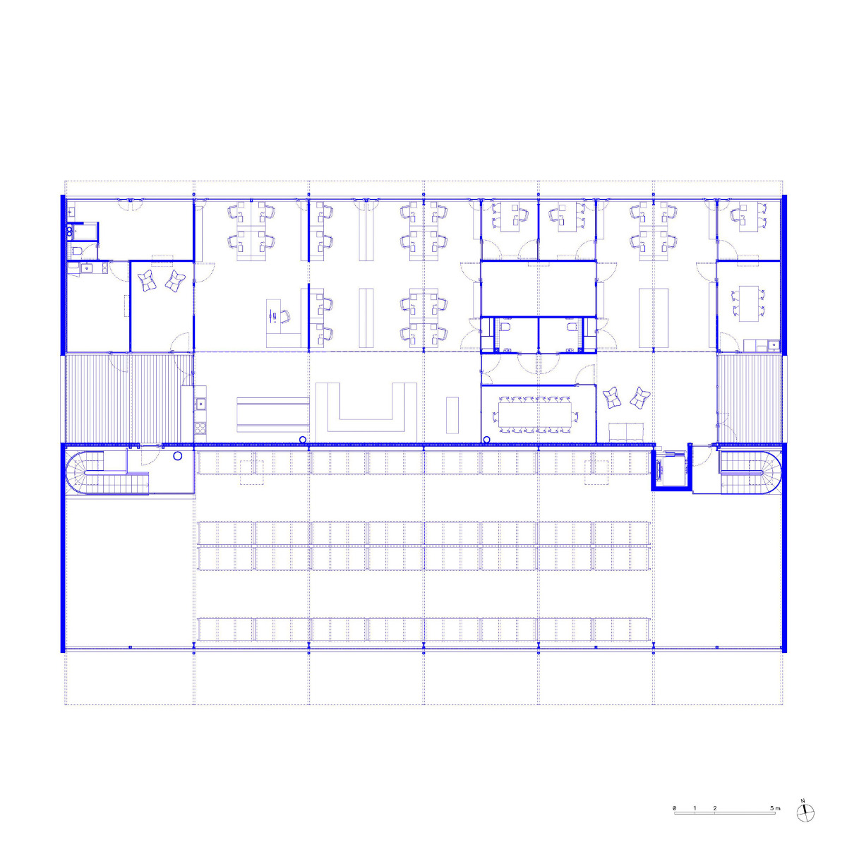
Employees' offices are located on the upper floor of the new building. © Sandrine Iratçabal
Regular steel structure
A glazed, two-storey central zone divides the building into two halves. To the south, a storage room takes up the entire height of the building. To the north, there is a showroom on the ground floor and offices for employees on the upper floor. In the longitudinal direction, transverse steel frames spaced 6 m apart divide the building into six sections. With the exception of the central zone, the front sides of the building are windowless and made of exposed concrete. The long sides, on the other hand, are clad in dark sheet metal. Regularly spaced rainwater pipes in front of these reflect the internal supporting structure to the outside. Horizontal window bands and the slightly recessed base cladding on the south side provide a counterbalance.


Dark metal cladding, horizontal window bands, and a regular grid of rainwater pipes divide the longitudinal facades. © Sandrine Iratçabal
Cost-effective yet prestigious
The architects also had to strike a balance between cost efficiency and prestige inside the building. The floors have a robust industrial covering made of concrete with quartz aggregate. All electrical and ventilation cables are visible, and the walls are made of exposed concrete or white-painted slag concrete blocks. The architects commissioned all the furniture and door and window frames to be made from chestnut wood.
Architecture: Formalocal
Client: La Boite Concept
Location: 135 Imp. des Rémouleurs, 40150 Soorts-Hossegor (FR)
Structural engineering: Alde (steel construction), Irribaren (concrete)
HVAC planning: Carte Atlantique
Electrical planning: simotec
















