Holzbau hinter Sichtbeton
Lea Bridge Library in London von Studio Weave
Lea Bridge Library, © Jim Stephenson
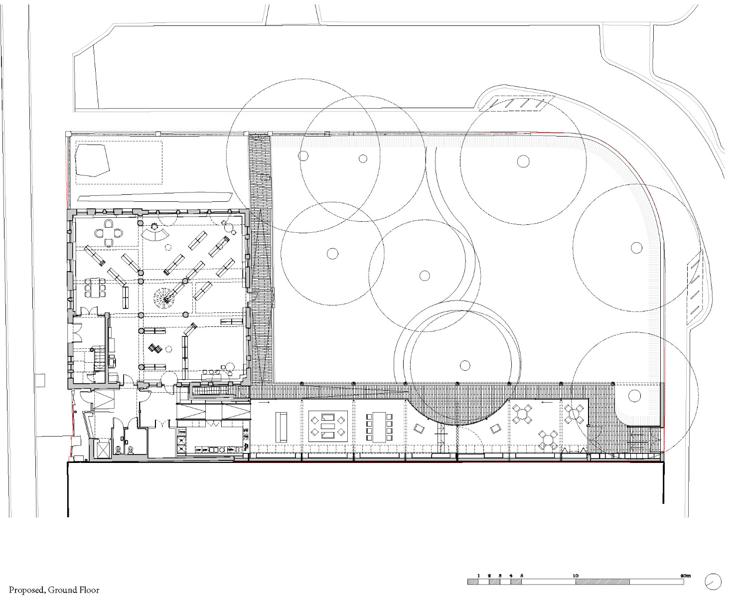
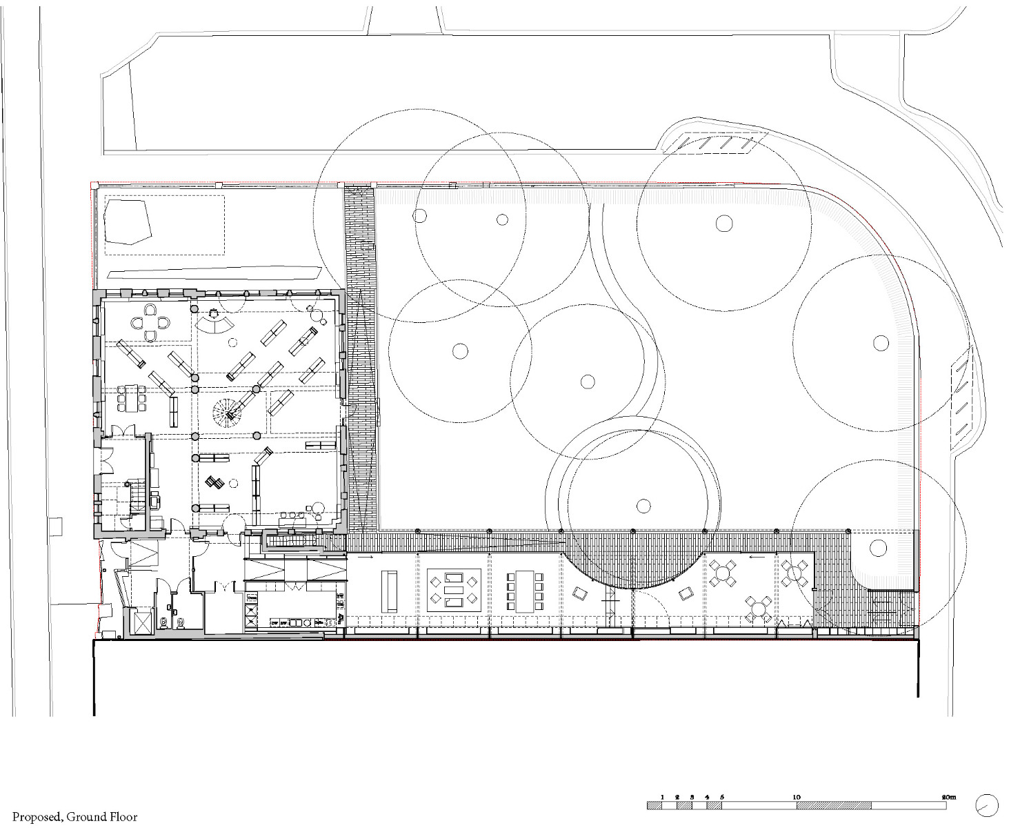
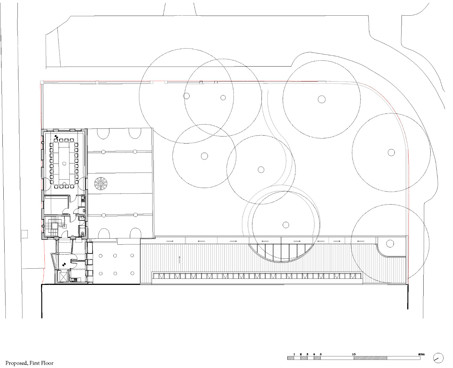
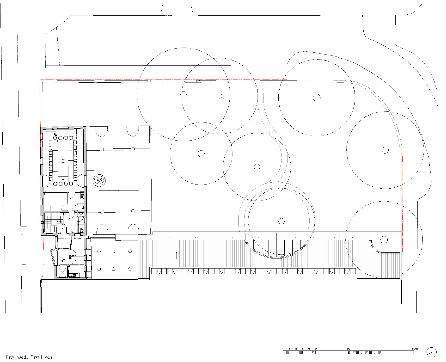
Als Erweiterung der Stadtteil-Bibliothek im Osten Londons entwarfen Studio Weave einen langgestreckten Flachbau mit Betonkolonnade und buntscheckigem Holz-Interieur.


© Jim Stephenson
Mit dem Anbau sollte die bestehende Bibliothek, ein Gebäude vom Beginn des 20. Jahrhunderts, zum sozialen Treffpunkt für das ganze Quartier erweitert werden. Ein Café mit weiteren informellen Leseplätzen sowie ein abtrenn- und vermietbarer Raum für private Anlässe waren Teil des Raumprogramms.
Durchgehendes Oberlicht
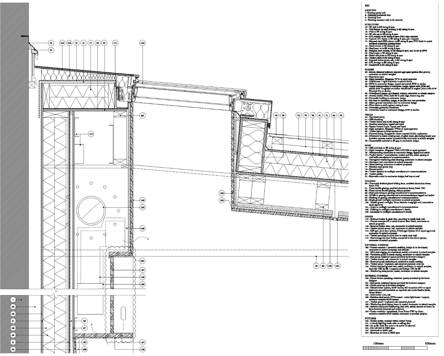
Der Neubau erstreckt sich entlang der gesamten Westseite des Gartengrundstücks, die bestehende Gartenmauer bildet seine Rückwand. Durch ein durchgehendes Oberlichtband im Pultdach fällt Licht auch in den hinteren Bereich des Raums. Für das Dachtragwerk wählten die Architekten Furnierschichtholz. Richtung Garten indes tritt der Holzbau hinter eine Kolonnade aus roten Sichtbeton-Fertigteilen zurück. Sie sollen den Neubau farblich an die Ziegelarchitektur des Bestandsgebäudes annähern.


Heimisches Holz dominiert im Innenraum. © Jim Stephenson
Raumhohe Glasscheiben
Die vollflächig verglaste Gartenfront weicht etwa in der Mitte halbkreisförmig zurück, um das Wurzelwerk einer großen Linde zu schonen. An dieser Stelle ist auch eine große Drehtür kaum sichtbar in die Holzvertäfelung an der Rückwand des Raums integriert. Damit lässt sich bei Bedarf der Nebenraum im hinteren Bereich des Gebäudes abtrennen.


© Jim Stephenson


© Jim Stephenson
Vielfältige Holzarten
Beim Blick auf den Innenausbau fällt vor allem die Vielfalt der Holzarten auf, die den Wandoberflächen und Einbaumöbeln eine etwas buntscheckige Ästhetik verleihen. Sie hatte ihre Gründe, wurden Verkleidungen und Mobiliar doch von einem örtlichen Schreiner aus Londoner Straßenbäumen gefertigt, die gefällt werden mussten. Er verwendete, was den Behörden unter die Säge kam: Pappel, Esche, Eiche, Sequoia, Rosskastanie und manches mehr. Entlang der Rückwand wechseln sich Regale mit Sitznischen und -bänken ab, die zusätzliche informelle Leseplätze für die Bibliotheksnutzer bereithalten.
Architektur, Landschaftsarchitektur: Studio Weave
Bauherr: London Borough of Waltham Forest
Standort: Lea Bridge Rd, London E10 7HU (GB)
Tragwerksplanung: Timberwright
TGA-Planung, Kostenkalkulation: NPS London




























