Leben auf Terrassen: Wohnhaus Portico von Ofis Arhitekti
Foto: Tomaz Gregoric
Bis zum Erdbeben 1895 interessierte sich niemand für das "Blumental" Rožna Dolina in Ljubljana. Danach wurde es als Standort für Arbeiterwohnungen unweit der Fabriken entdeckt. Zwischen die Arbeiterwohnungen mischten sich viele Vorkriegsvillen, die meist mit einem Hochparterre geplant wurden, zum Schutz vor Überschwemmungen. Eine Treppe führte außen zum höher gelegenen Eingang – wie eine Art Portikus mit Stützen gerahmt, um das Vordach zu tragen. Im oberen Geschoss war die Wohnfläche zugunsten einer Terrasse verkleinert, damit mehr Licht zu den Nachbarn und in den Garten fallen konnte.
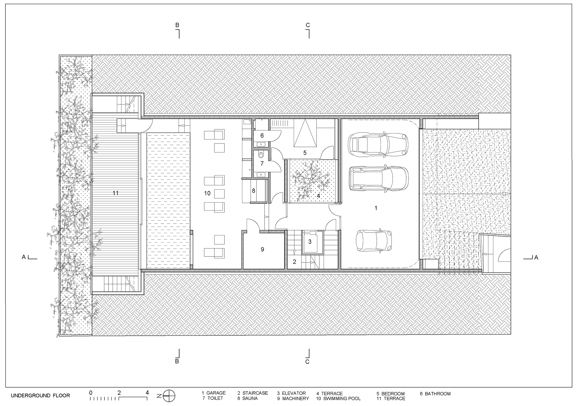
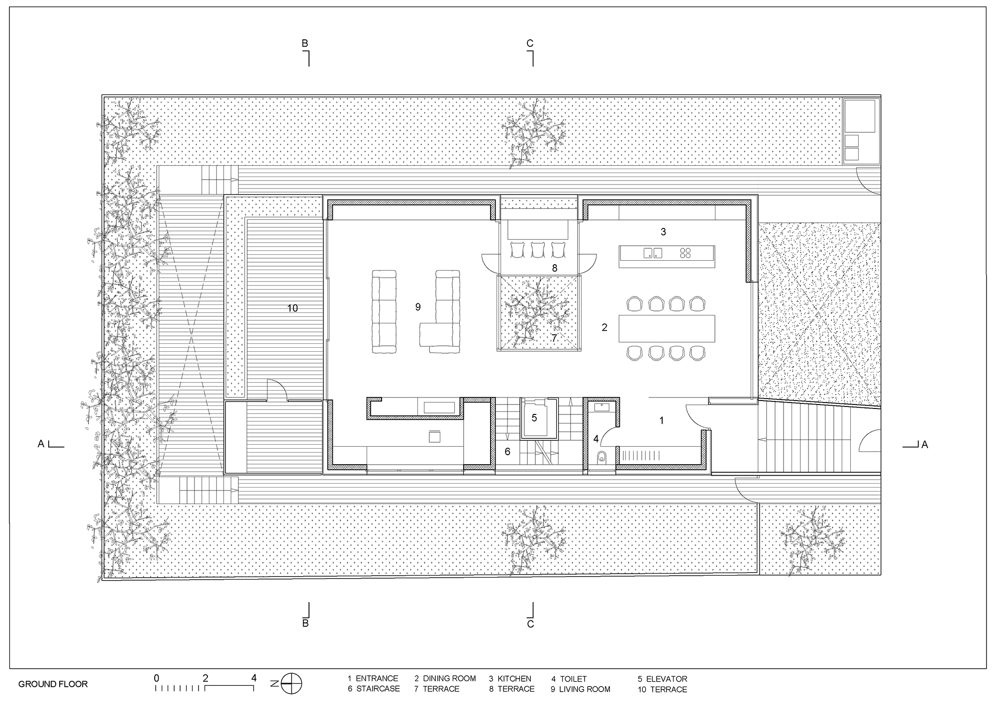
Inzwischen gilt Rožna Dolina mit Einfamilienhäusern und Gärten als das "Beverly Hills" der slowenischen Hauptstadt. Doch einige Grundstücke, so auch die beiden benachbarten, sind mit großen Mehrfamilienhäusern bis dicht an die Grundstücksgrenze bebaut. Ofis Arhitekti entlehnen ihr Konzept für das Familienwohnhaus jenen Terrassenhäusern aus der Vorkriegszeit und organisieren die Wohn- und Essräume im Hochparterre. Eine Treppe mit perforierter Hülle führt hinauf zum Eingang und gibt dem Haus seinen Namen, "Portico". An der Ostseite ist das Haus terrassiert, was auch einen Puffer zur dichten Nachbarschaft erzeugt. Die beiden Obergeschosse springen jeweils ein Stück zurück, sodass vor den Zimmern üppig bepflanzte Freiräume entstehen.
Zusätzlich bringt ein verglastes Atrium Licht in die großzügigen Wohnräume. Es entspringt im Souterrain wo es zwischen dem Eingang aus der Garage und dem Gästezimmer liegt. Ebenfalls im Souterrain befindet sich die tiefste Terrasse des Hauses als in den Boden eingelassener Außenraum vor dem Swimmingpool. Im ersten Obergeschoss belichtet das Atrium den Flur zwischen den Kinderzimmern, während die Räume der Eltern im zweiten Obergeschoss das Atrium schon gar nicht mehr umschließen.
Weitere Informationen:
Fläche: 228 m²
Team: Rok Oman, Spela Videcnik, Andrej Gregoric, Rok Gerbec, Janez Martincic, Katharina Felix, Sérgio Silva Santos, Sabrina Cep, Tanja Veselic, Lise Chemin, Galina Baleva, Jagoda Grzelak, Karolina Wocial, Kyle Zook, Marta Vela, Popa Vlad Andrei, Rita Dolmány, István Jenei
Statik: IB-Techno
Bauingenieur: ISP d.o.o.
Elektrotechnik: Enering d.o.o.











