Terraced Living: House Portico by Ofis Arhitekti
Foto: Tomaz Gregoric
Until the earthquake of 1895, no one showed any interest in the Rožna Dolina, or Flower Valley, district of Ljubljana. Afterwards, it was discovered as a location for workers’ apartments near the factories. Many pre-war villas stand among the workers’ housing; most were planned with a raised ground floor to provide flood protection. Outside, a stairway led to the higher entrance. Like a sort of portico, the stairway was framed with columns that bore a canopy. On the upper floor, the living space was made smaller in order to allow space for a terrace that let more light could fall towards the neighbours and the yard.
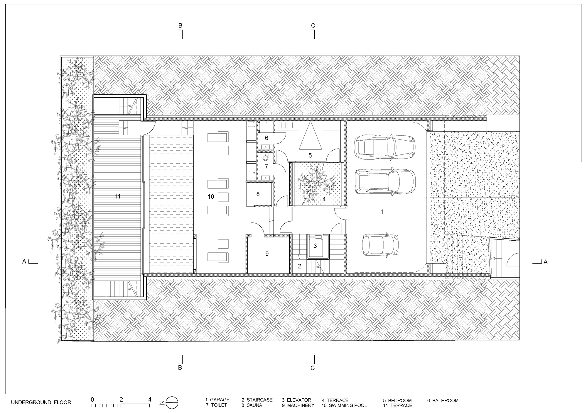
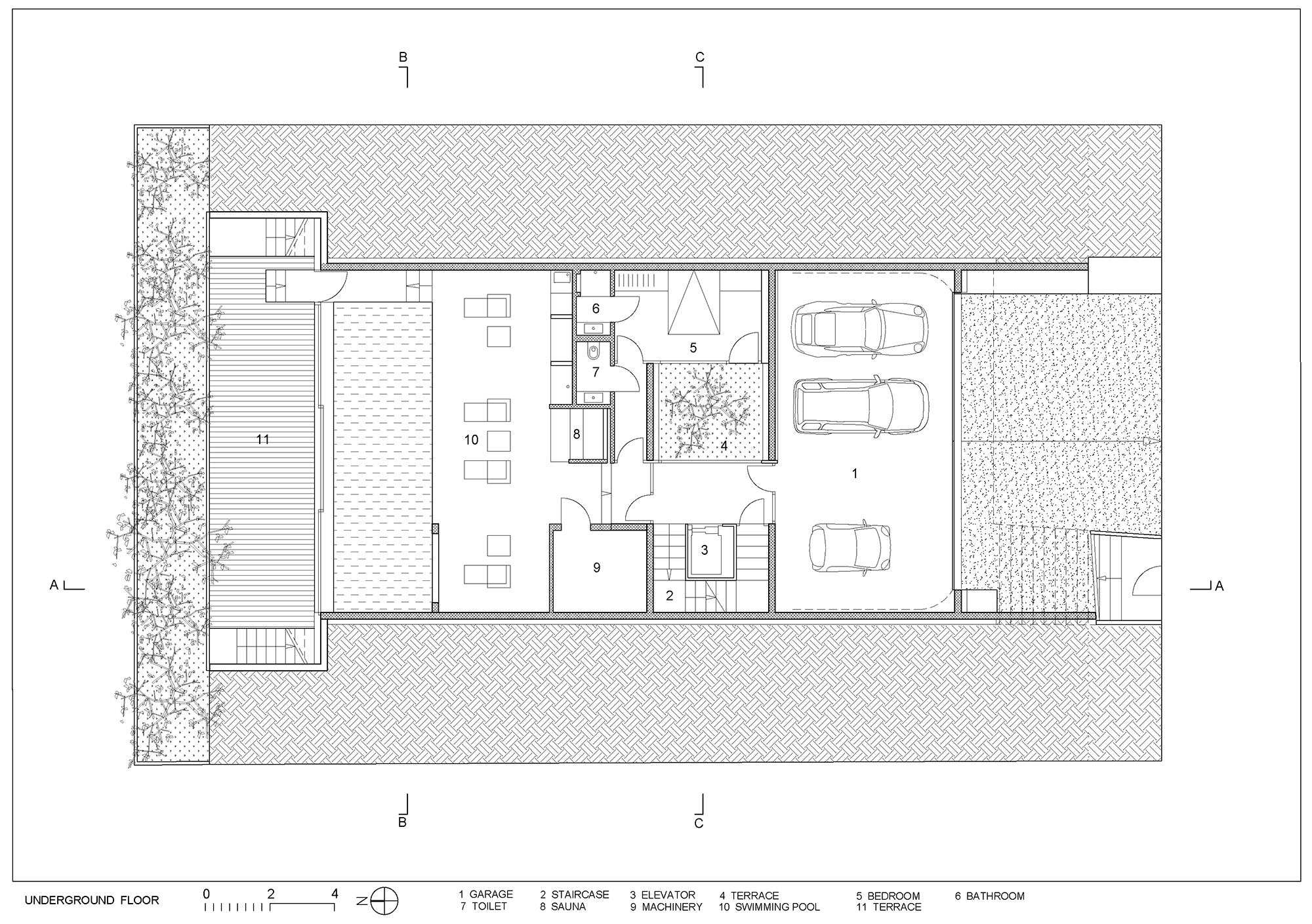
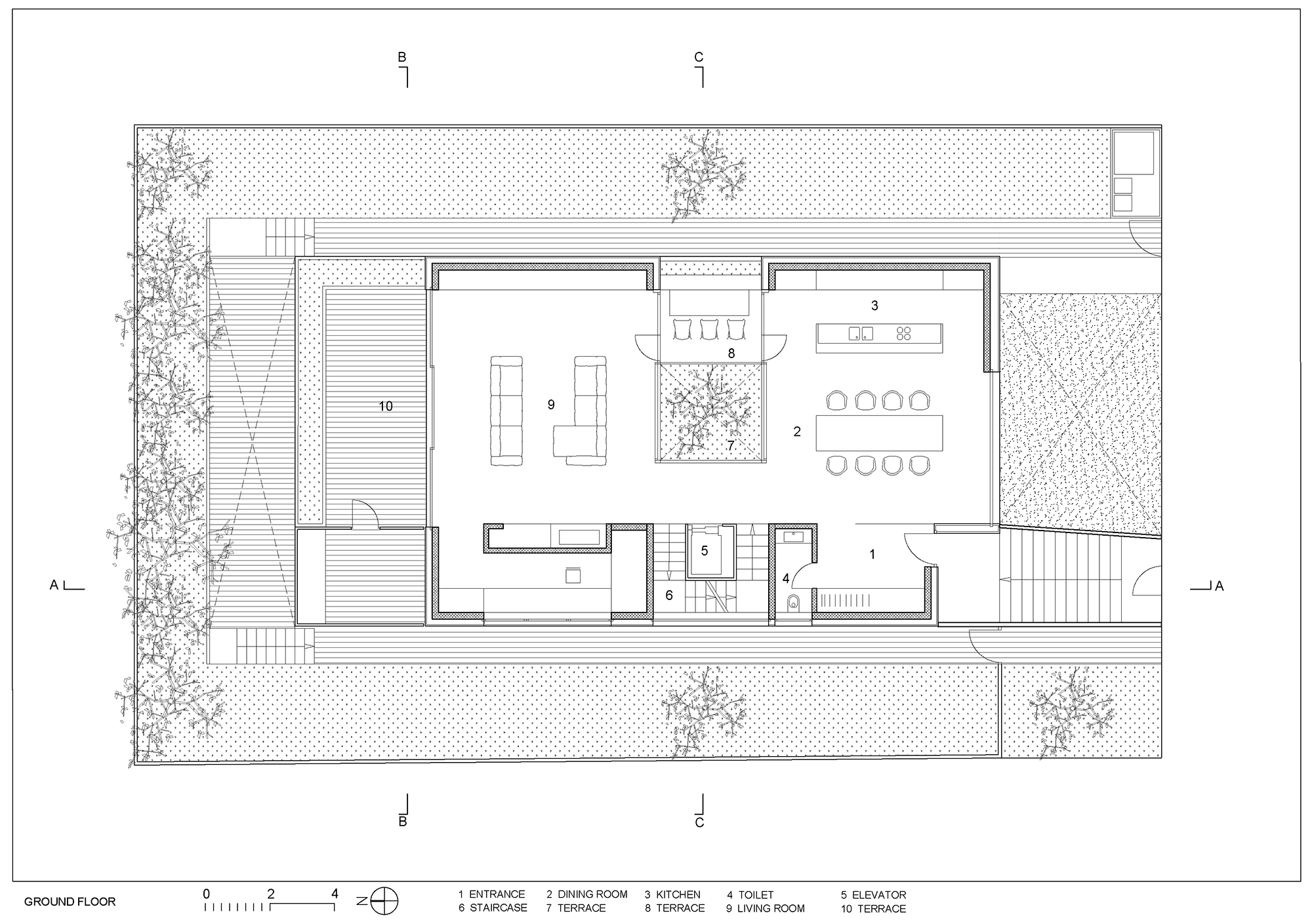
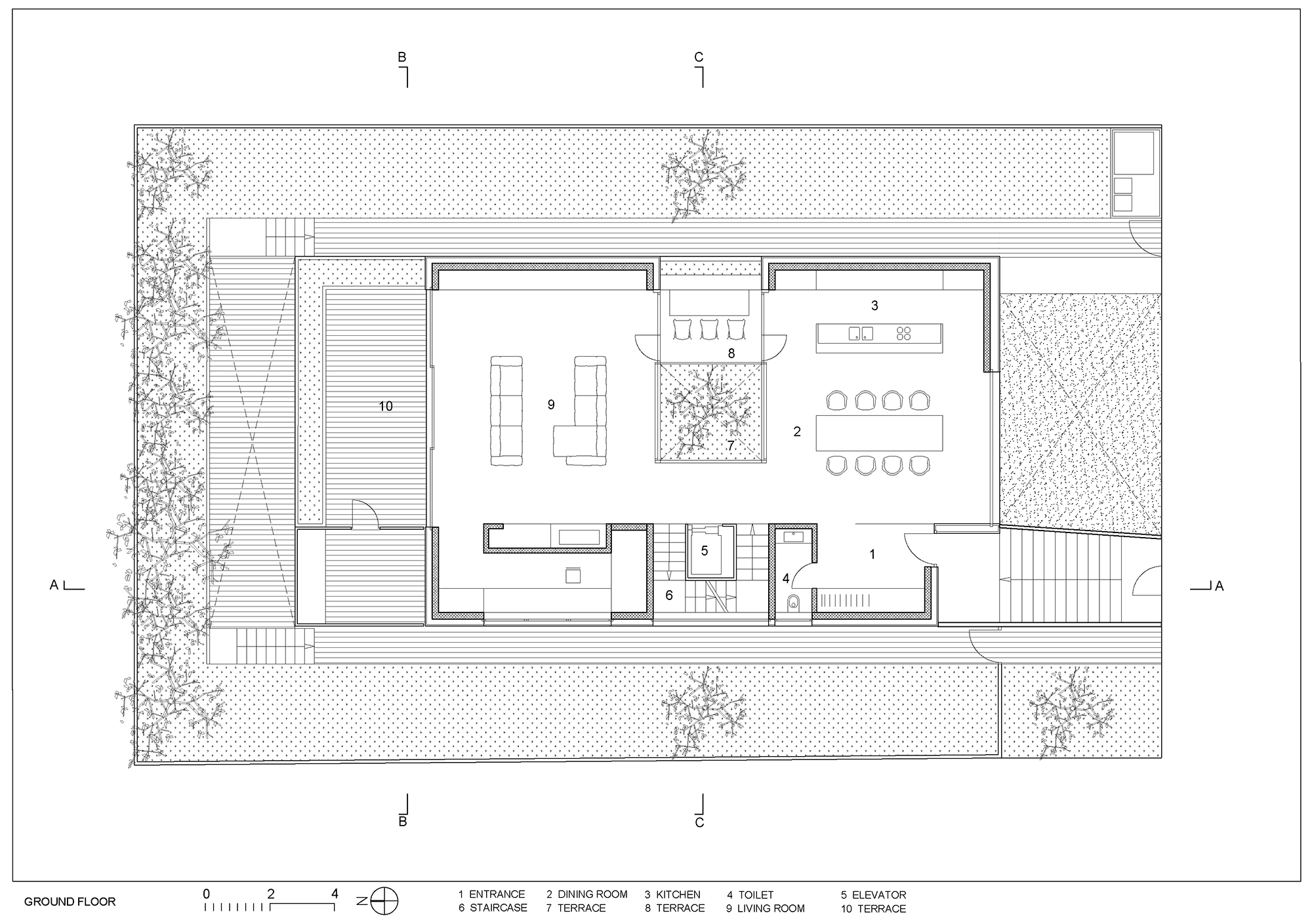
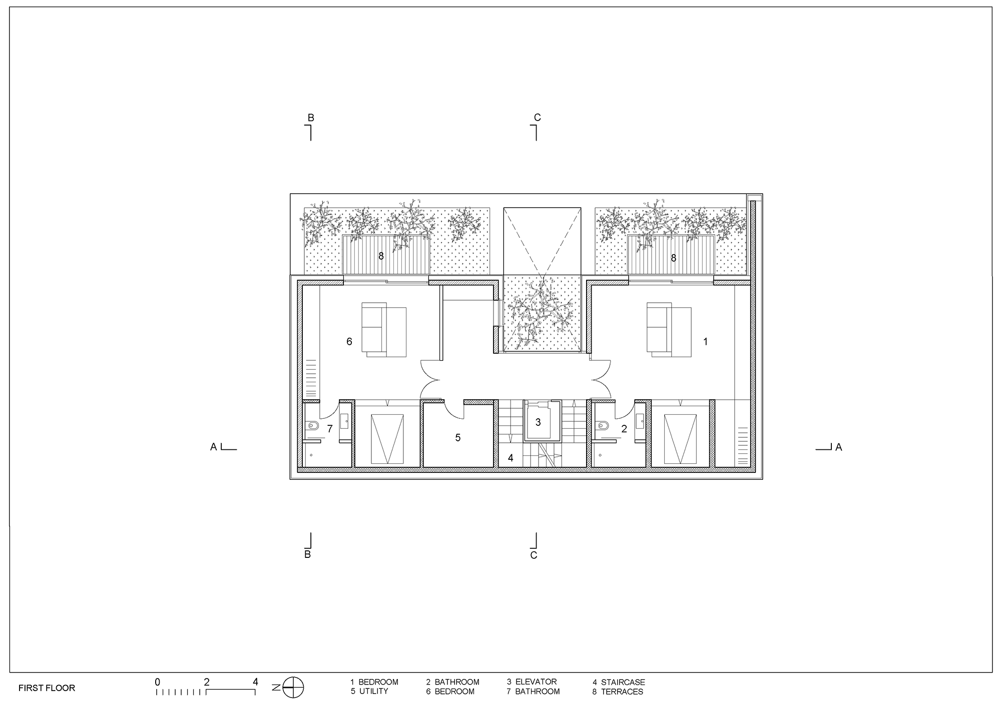
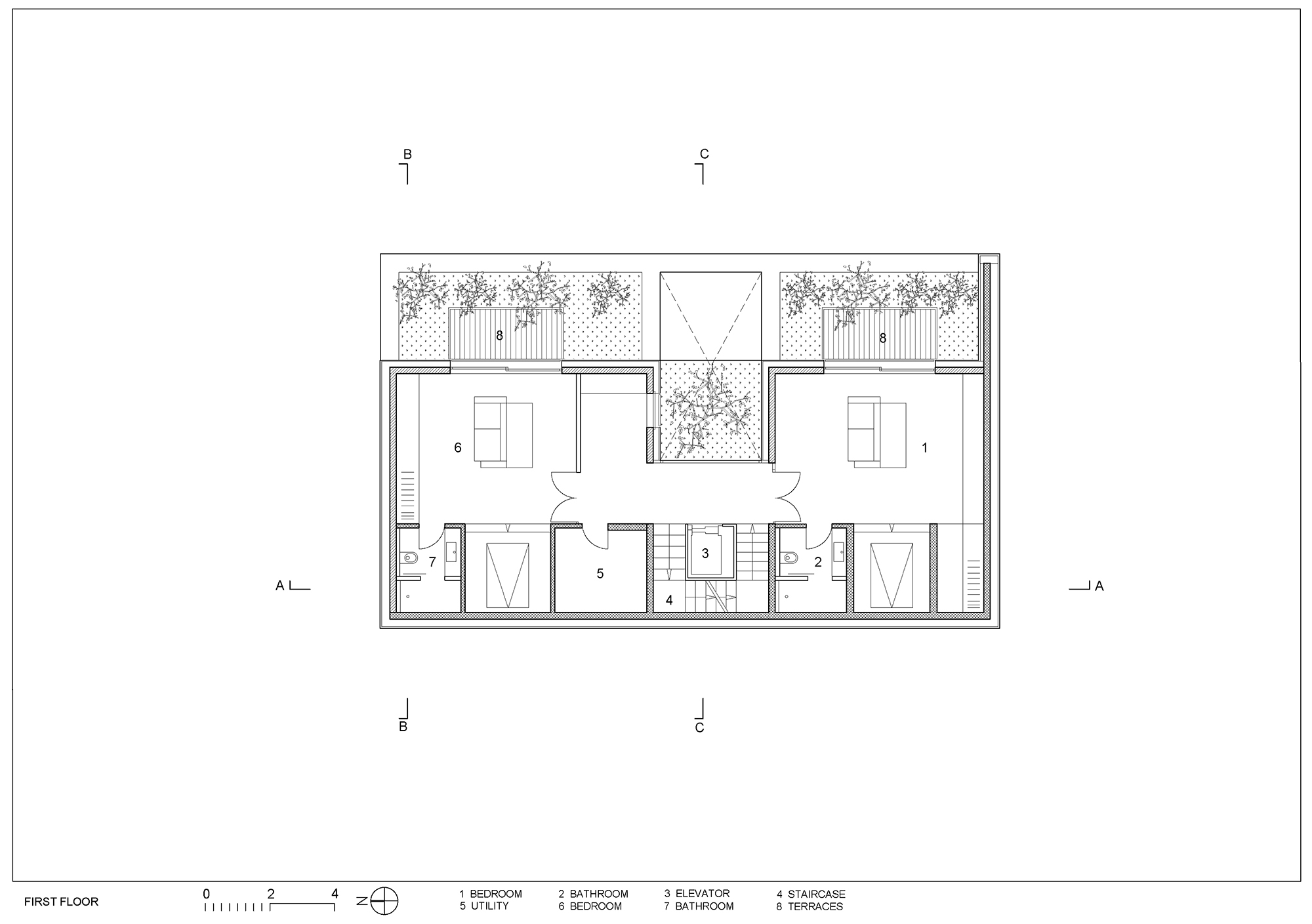
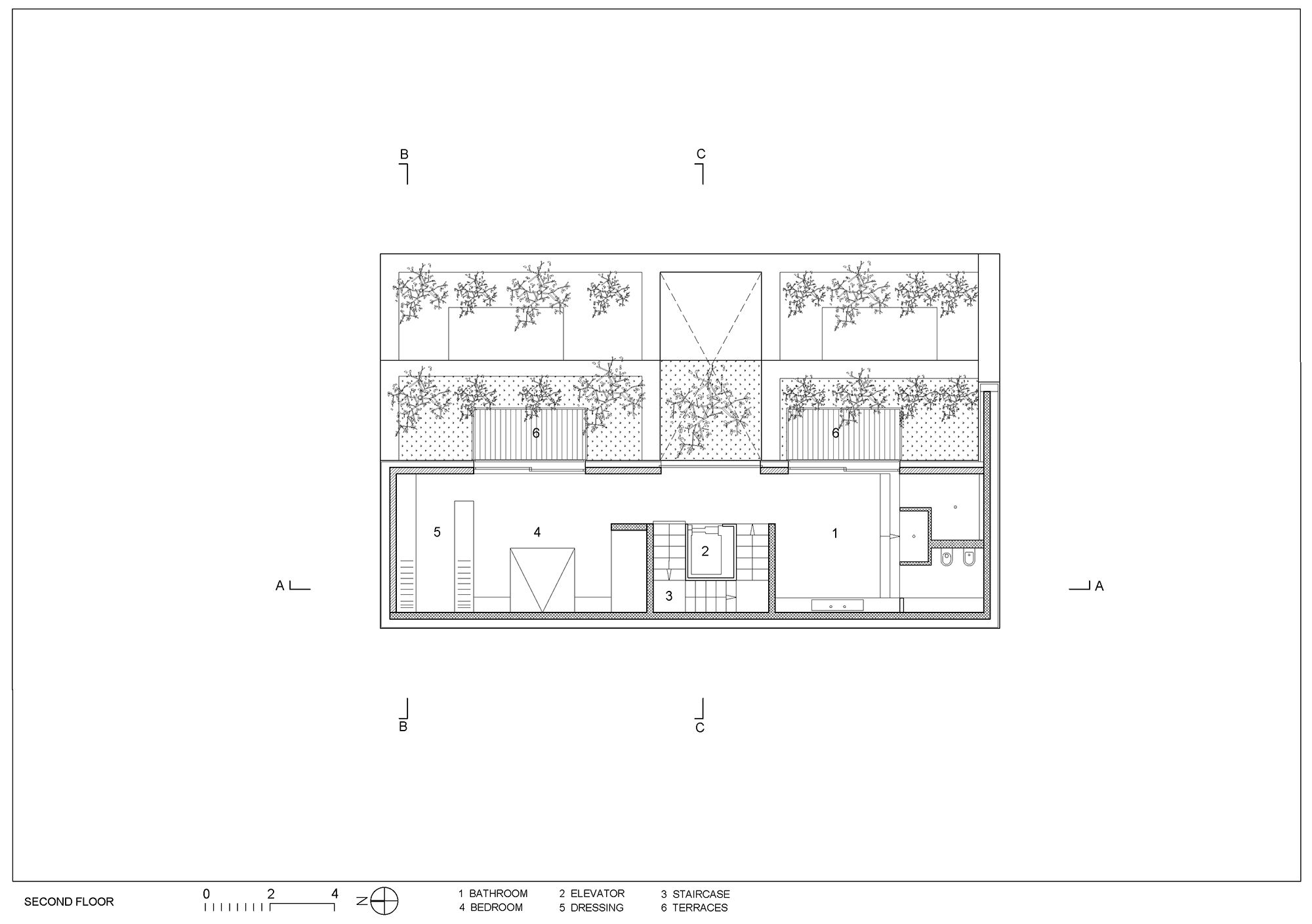
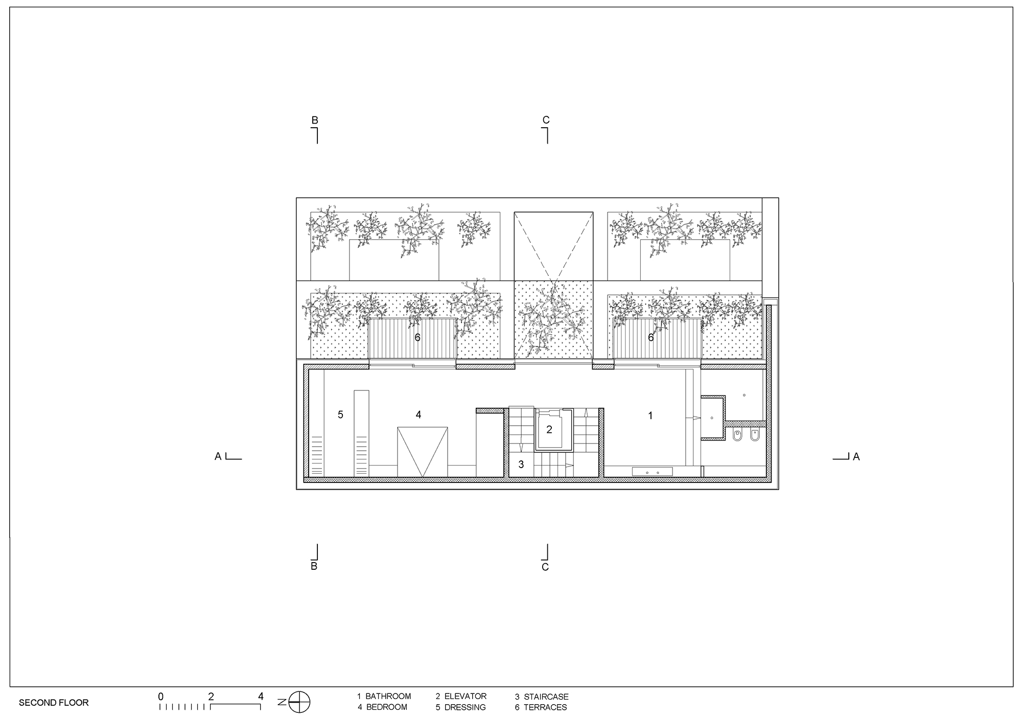
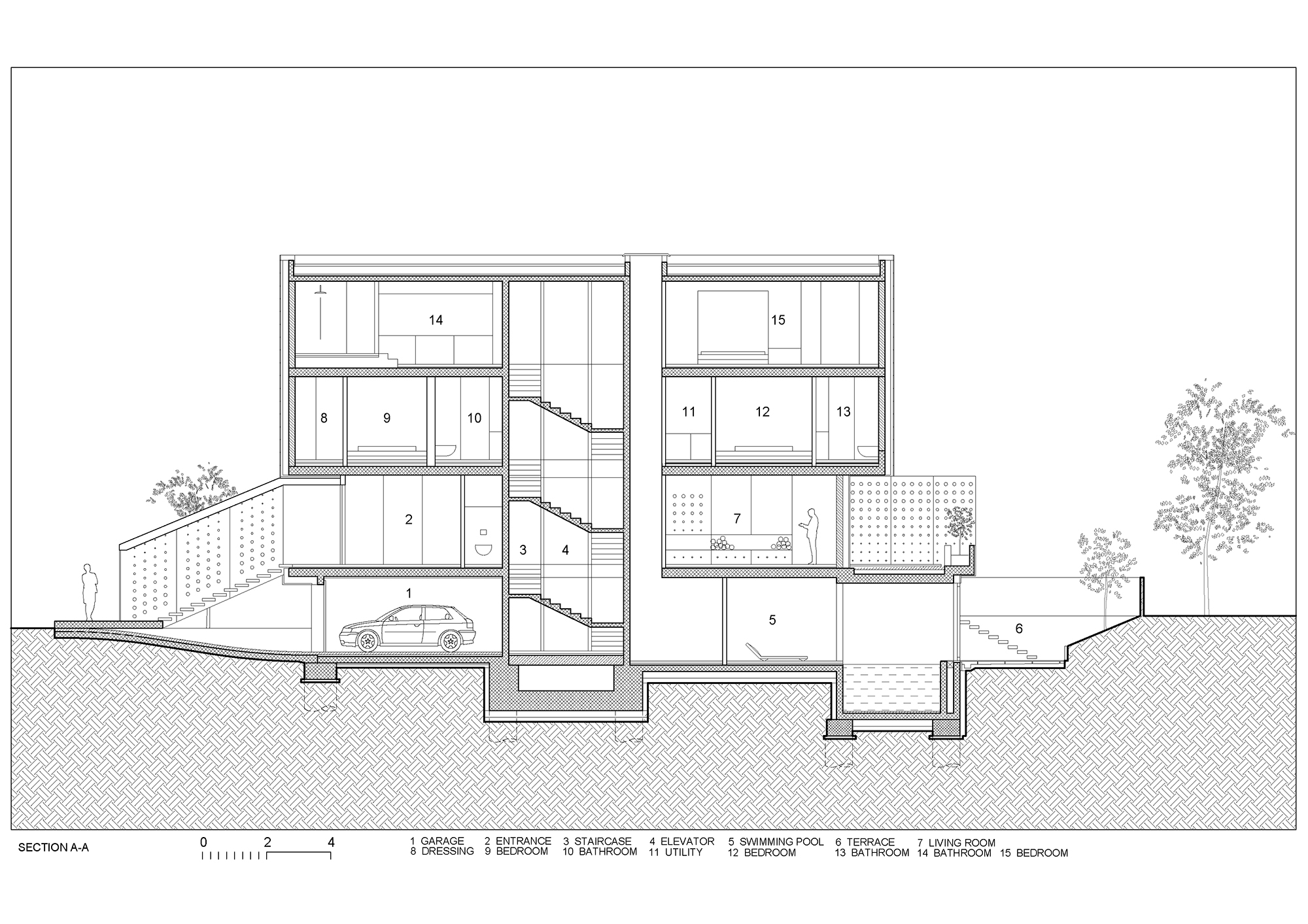
Nowadays Rožna Dolina, which features single-family homes with gardens, is considered the Beverly Hills of the Slovene capital. However, some lots have been developed with large multi-family buildings that extend right to the edge of the parcel. This is the case with the houses to either side of the one featured here. Ofis Arhitekti borrowed the concept for the house from that of the pre-war terraced homes and organized the living and dining areas on the raised ground floor. A stairway with a perforated shell leads up to the entrance and gives the house its name: Portico. The house is terraced on its east side, which also provides a buffer between the home and the densely built neighbourhood. Each of the two upper levels is successively set back, creating outdoor areas for lush planting in front of the interior.
In addition, a glazed atrium lets light into the roomy living spaces. It rises from the basement, where it is situated between the garage access and the guest room. Also in the basement, the lowest terrace is an outdoor space set into the earth just in front of the swimming pool. On the first upper storey, the atrium illuminates the hallway between the children’s rooms, while the parent’s rooms on the second upper level do not even enclose it.
Further information:
Area: 228 m²
Team: Rok Oman, Spela Videcnik, Andrej Gregoric, Rok Gerbec, Janez Martincic, Katharina Felix, Sérgio Silva Santos, Sabrina Cep, Tanja Veselic, Lise Chemin, Galina Baleva, Jagoda Grzelak, Karolina Wocial, Kyle Zook, Marta Vela, Popa Vlad Andrei, Rita Dolmány, István Jenei
Statics: IB-Techno
Engineer: ISP d.o.o.
Electrical engineering: Enering d.o.o.











