Gedübelt und verschraubt
Leimfreies Holzgebäude in der Schweiz
© Photo STUDIO NOUN x Zsigmond Toth
Die Gründer des Architekturbüros Studio Noun, Hendrik Steinigeweg und Philipp Schaefle hatten das ambitionierte Ziel das Wohnhaus in einer Streusiedlung in der Ostschweiz möglichst leimfrei komplett aus Holz zu errichten. Bis auf das große Giebeldach, das mit Faserzementplatten gedeckt ist und farblich mit der Schweizer Bergkulisse harmoniert, haben sie ihr Vorhaben sowohl bei den tragenden Massivholzelementen als auch im Innenausbau in die Tat umgesetzt.


© Photo STUDIO NOUN x Zsigmond Toth
Lorem Ipsum: Zwischenüberschrift
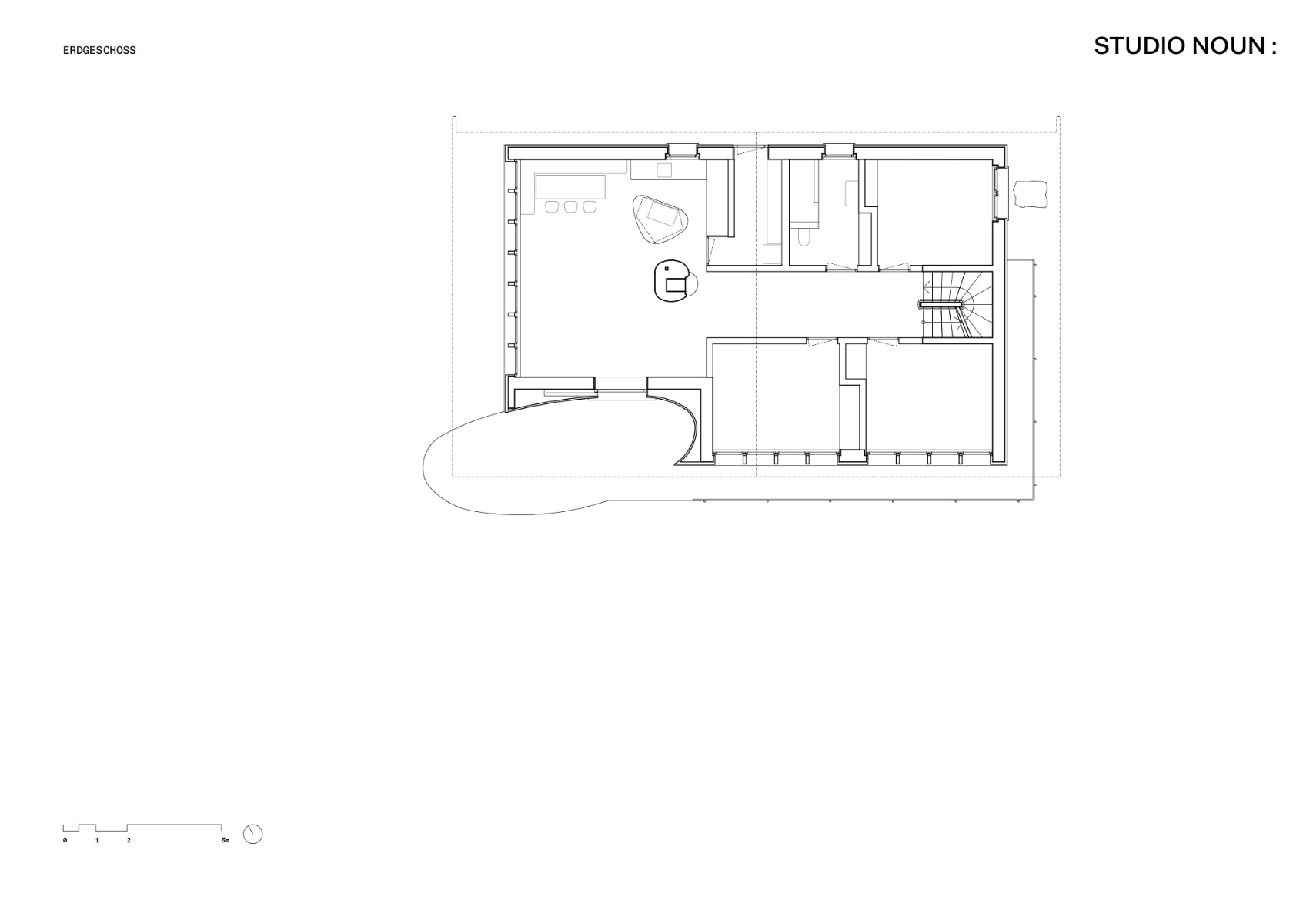
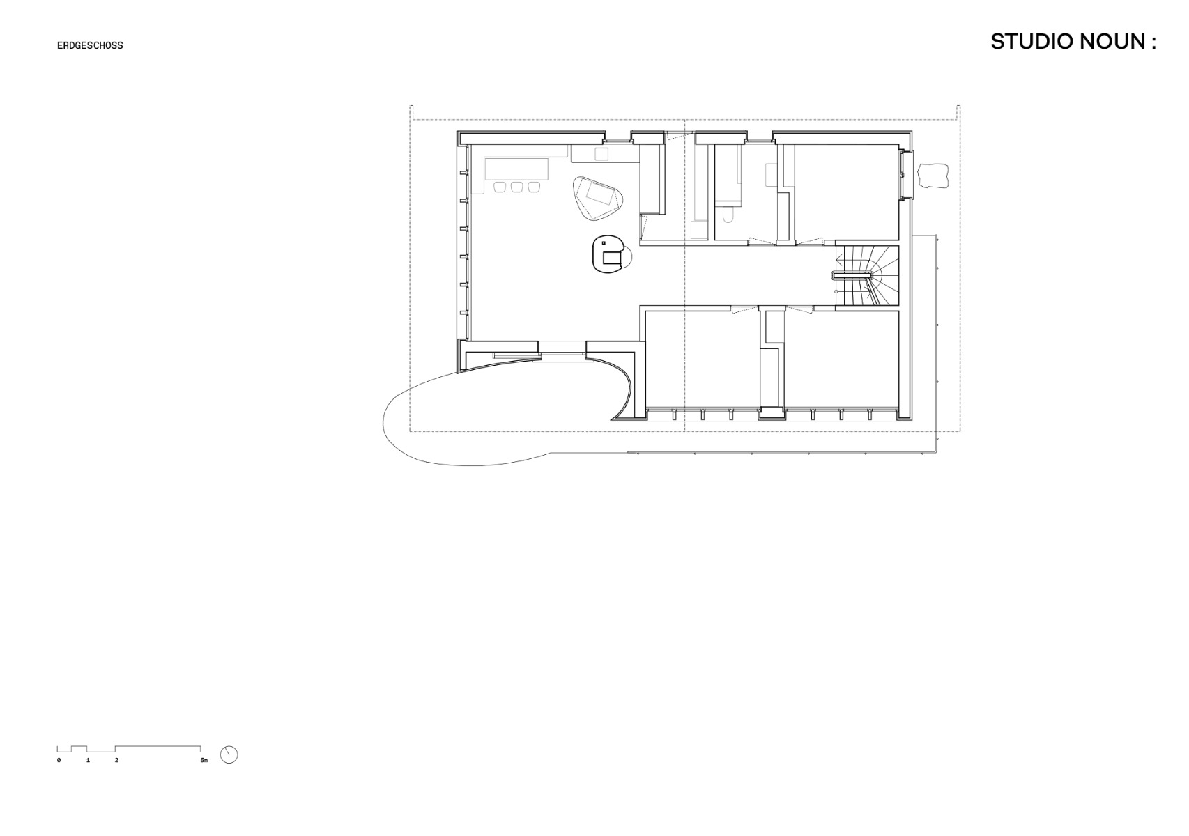
Eine junge Familie hatte das Ferienhaus aus den 1970er-Jahren gekauft und wollte es als Hauptwohnsitz ihren Bedürfnissen anpassen. Dafür setzten die Architekten den Holzbau auf die bestehenden Wände der beiden, in den Hang gesteckten Untergeschosse, die lediglich funktional angeglichen wurden.
Ein Einschnitt auf der Südwestseite schafft einen windgeschützten, überdachten Eingangsbereich. Im Erdgeschoss ermöglichen lange Bandfenster den Blick auf den Churfirsten und den Alpstein. Die Fassaden sind über diesem Bereich leicht nach außen geneigt, sodass auch an den Giebelseiten ein leichter Sonnen- und Wetterschutz gewährleistet ist.


© Photo STUDIO NOUN x Zsigmond Toth
Lorem Ipsum: Zwischenüberschrift
Sowohl der Rohbau als auch der Ausbau wurden in massivem Holz ausgeführt. Für den Innenausbau gestalteten die Architekten eigens ein gestecktes Regalsystem, das ebenfalls ohne Leim auskommt. Alle Wand-, Decken- und Dachelemente wurden mit CNC-Maschinen im Werk vorgefertigt und vor Ort zusammengefügt. Vor den ca. 40 cm starken tragenden Außenwänden sorgt eine hinterlüftete Holzschalung für den Wetterschutz, während innen die Massivholzelemente sichtbar bleiben.


© Photo STUDIO NOUN x Zsigmond Toth


© Photo STUDIO NOUN x Zsigmond Toth
Lorem Ipsum: Zwischenüberschrift
Die Fassadenverkleidung und die Bodenriemen stammen aus nahegelegenen Waldbeständen und wurden von der örtlichen Sägerei zugeschnitten. Decken- und Dachelemente sind aus verdübelten Brettstapelelementen gefertig. Außen wird die Verschalung mit der Zeit vergrauen, im Inneren dominiert allerorts das hellgelbe Nadelholz, selbst die Badewanne erhielt eine hölzerne Schale.
Architektur: Studio Noun
Bauherr: privat
Standort: Chüeboden, Unterwasser, 9657 Alt St. Johann (CH)
Holzbau: Nägeli
Massivbau: CWZ Casutt Wyrsch Zwicky
TGA-Planung: Tobler Haustechnik





















