Dowelled and screwed
Glueless Wooden Structure in Switzerland
© Photo STUDIO NOUN x Zsigmond Toth
The founders of the Studio Noun architecture office, Hendrik Steinigeweg and Philipp Schaefle, were driven not only by the ambitious aim of erecting the house in a scattered settlement in eastern Switzerland, but also by the desire to build the house completely of wood using as little glue as possible. Apart from the large gable roof, which is covered with fibre-cement panels and colour-coordinated with the Alpine backdrop, they have achieved their objectives both in the load-bearing, solid-wood elements as well as the interior work.


© Photo STUDIO NOUN x Zsigmond Toth
Lorem Ipsum: Zwischenüberschrift
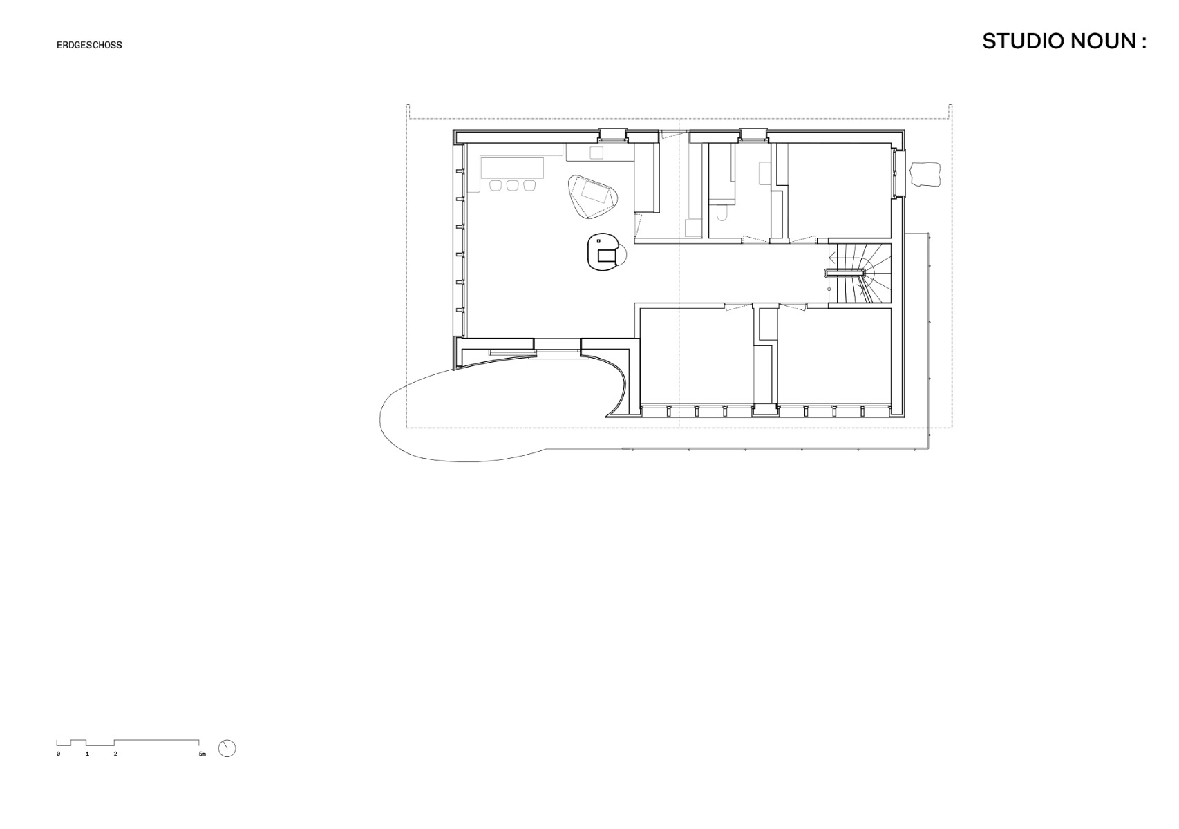
A young family bought the 1970s-era holiday home and wanted to adapt it to their needs as a primary residence. To this end, the architects set the wooden construction atop the existing walls of the two lower levels, which are recessed into the slope and have been adjusted only in terms of function.
A cut-in on the southwest side creates a wind-sheltered, roofed-in entrance. On the ground floor, long window bands allow a view of the Churfirsten and Alpstein mountains. Above this area, the façades have been inclined slightly outwards, which ensures some protection from the elements at the gable ends of the house as well.


© Photo STUDIO NOUN x Zsigmond Toth
Lorem Ipsum: Zwischenüberschrift
Both the shell and the new extension have been executed in solid wood. For the interior, the architects designed a plugged shelving system that is also glue-free. All the elements used for the walls, ceilings and roof elements were prefabricated with CNC machines in the workshop and joined on site. On the load-bearing exterior walls, which are approx. 40 cm thick, rear-ventilated wooden formwork provides protection from the weather; inside, the solid-wood elements remain visible.


© Photo STUDIO NOUN x Zsigmond Toth


© Photo STUDIO NOUN x Zsigmond Toth
Lorem Ipsum: Zwischenüberschrift
The façade cladding and floorboards come from nearby forests and were cut to fit by the local sawmill. The ceilings and roof are made of stacked board elements that have been dowelled. On the outside of the house, the cladding will grey over time. Inside, light-yellow softwood predominates: even the bathtub has been clad in wood.
Architecture: Studio Noun
Client: private
Location: Chüeboden, Unterwasser, 9657 Alt St. Johann (CH)
Timber construction: Nägeli
Solid construction: CWZ Casutt Wyrsch Zwicky
Building services engineering: Tobler Haustechnik





















