Lernscheune: Grundschule in Zarren
Foto: Stijn Bollaert
Die Unterschiede zwischen „Architecture without architects“ und „Architektur mit Architekten“ sind in Flandern wenig ausgeprägt. Viele Architekten der Region haben es sich zum Markenzeichen werden lassen, die Bauweise anonymer Wohnhäuser und Lagerschuppen in ihren Entwürfen zu veredeln und verfremden. Auch das Büro Felt bediente sich bei seiner Schulerweiterung im Zarren bei Brügge dieser Strategie.
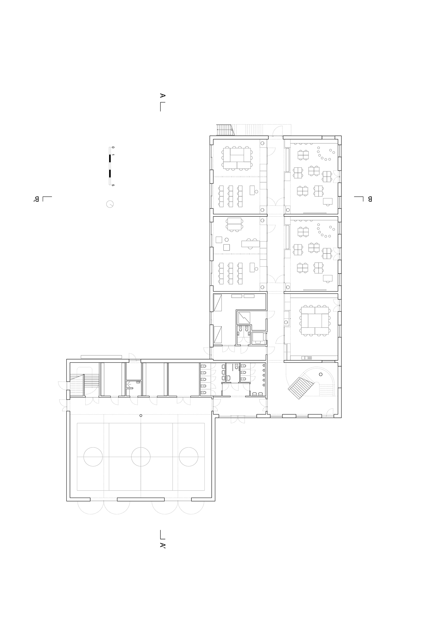
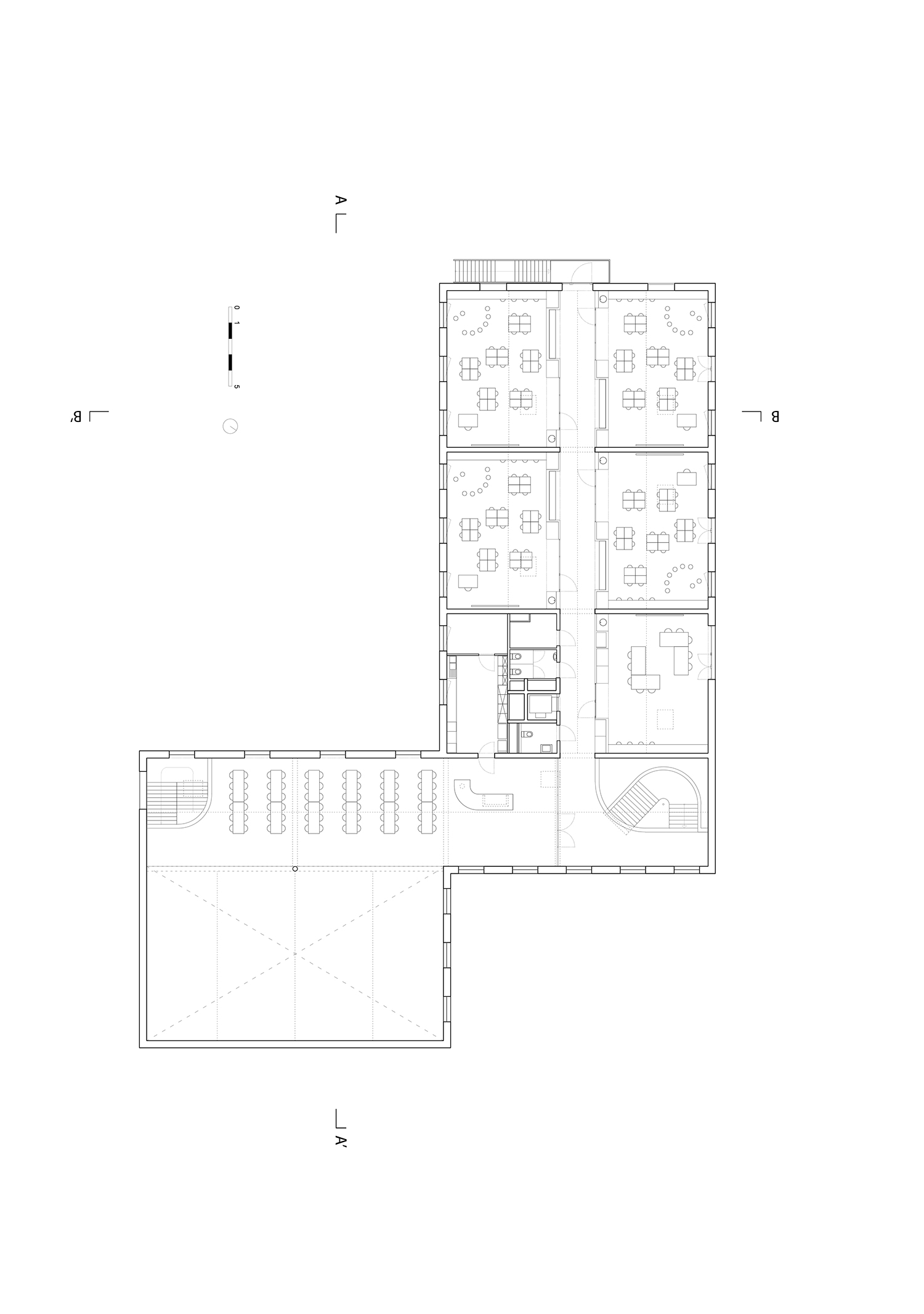
Der Neubau liegt mitten im Ortskern, aber abseits der Hauptstraße hinter dem alten Schulgebäude zwischen frei stehenden Einfamilienhäusern und Scheunen. Grauer und rosafarbener Sichtbeton, graue Faserzementschindeln und gelber Klinker ergänzen sich an den Fassaden zu einer pastellfarbigen Materialcollage. Breite, ziegelgedeckte Satteldächer binden den Neubau in den dörflichen Kontext ein.
Im Grundriss bildet die Schulerweiterung ein großes L mit einer zweigeschossigen Treppenhalle als verbindendem Gelenk. Auf der Ostseite bildet der Doppelgiebel der Turnhalle mit seinen großen Scheunentoren ein spannungsreiches Gegenüber zum alten Schulhaus. Die Satteldachform ist auch in den Innenräumen allenthalben spürbar, und auch die Materialpalette des Außenbaus – namentlich Sichtbeton in Grau und Rosa – setzt sich dort fort. Ergänzt wird sie durch helle Holzoberflächen, gelochte Gipskartondecken und Bodenbeläge in kräftigen Grün- und Blautönen.
Weitere Informationen:
Landschaftsarchitekten: Studio Basta





















