Nachhaltig und sortenrein
Londons höchster zirkulärer Bürobau aus Holz
© Jake Curtis
Waugh Thistleton bauen mit dem Black & White Building nicht nur das höchste Bürogebäude aus Massivholz in London, sondern leisten gleichzeitig einen Beitrag zur Kreislaufwirtschaft. Genutzt wird der Neubau von TOG (The Office Group) – das Unternehmen vermietet in mehreren britischen und deutschen Städten flexible Coworking Arbeitsplätze.


Das Black & White Building in London. © Jake Curtis
Cradle to Cradle
Das Black & White Building setzt mit Holz auf eine nachwachsende und langlebige Ressource. Neben einem minimalen CO2-Fußabdruck steht dabei ein zirkulärer Ansatz im Mittelpunkt: Daher lässt sich das Gebäude nicht nur bei Bedarf anpassen, sondern auch vollständig zerlegen und in Zukunft wiederverwenden. 13 % des Energiebedarfs des Gebäudes werden durch die Solarpaneele auf dem Dach gedeckt, der Rest wird aus erneuerbaren Energiequellen bezogen.
Die Balken aus Brettsperrholz (CLT) und Laubholz bilden den strukturellen Rahmen, während die CLT-Böden und -Wände die Sicherheit des Gebäudes erhöhen und die Ausbreitung von Feuer verhindern. Über dem Sockelbereich umhüllen die Glasfassaden filigrane Holzlamellen aus Tulipwood – dank thermischer Behandlung ist das amerikanische Hartholz besonders wetterresistent. Der zarte Vorhang reguliert Wärmeeintrag und Lichteinfall und optimiert so sowohl den Strom- als auch den Heizbedarf.


Interior, © Jake Curtis
Nachhaltigkeit
Insgesamt kamen 1330 m³ Holz zum Einsatz. Die Holzkonstruktion, die aus nachhaltig bewirtschafteten Wäldern in Deutschland stammt, wirkt als Kohlenstoffsenke. Das Black & White Building spart im Vergleich zu einer Betonkonstruktion 37 % der Kohlendioxidemissionen ein und der im gesamten Gebäude verfolgte Ansatz der Nachhaltigkeit wird dem Büro die Auszeichnung Breeam Excellent einbringen.


© Jake Curtis


© Jake Curtis
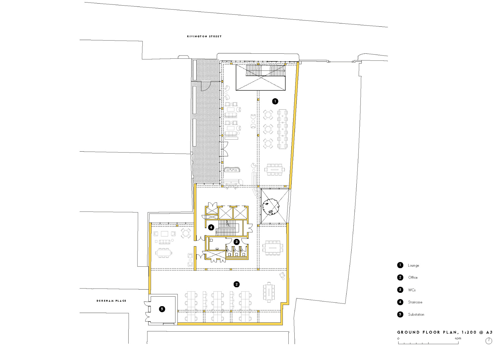
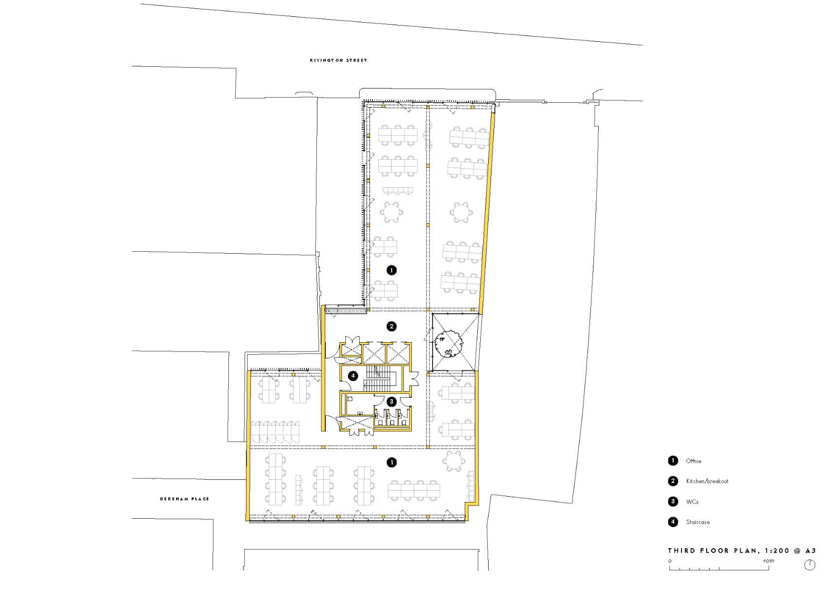
Raumprogramm
Im Inneren verteilen sich Büro- und Besprechungsräume sowie Coworking-Spaces auf sieben Etagen rund um einen Erschließungskern und einen Lichtschacht, der in einem begrünten Patio im Erdgeschoss endet. Es gibt private Offices, Besprechungs- und Meetingräume sowie Gemeinschaftsflächen, die Produktivität und soziale Interaktion der Nutzer fördern. Fahrradgarage, Yogastudio und Dachterrasse komplettieren das vielseitige Programm. Das warme und einladende Interior-Design des Black & White Building stammt von Daytrip Studio. Mit einem Mix aus Holzoberflächen, Einbauten und recycelten Materialien rundet es das nachhaltige Bürogebäude stimmig ab.
Architektur: Waugh Thistleton Architects
Bauherr: TOG (The Office Group)
Standort: London (UK)
Tragwerksplanung: Eckersley O’Callaghan
Tragwerk: Hybrid Structures
Fassadenplanung: Eckersley O'Callaghan
Lamellenfassade: AHEC
Mechanik-/Elektroplanung: EEP
Innenarchitektur: Daytrip
Brandschutz: Hoare Lea / Sweco
Landschaftsarchitektur: SpaceHub
Akustik: Paragon Acoustics / Sweco






















