Malerische Aussichten: Giebelhaus in Upstate New York
Foto: Anna Ritsch
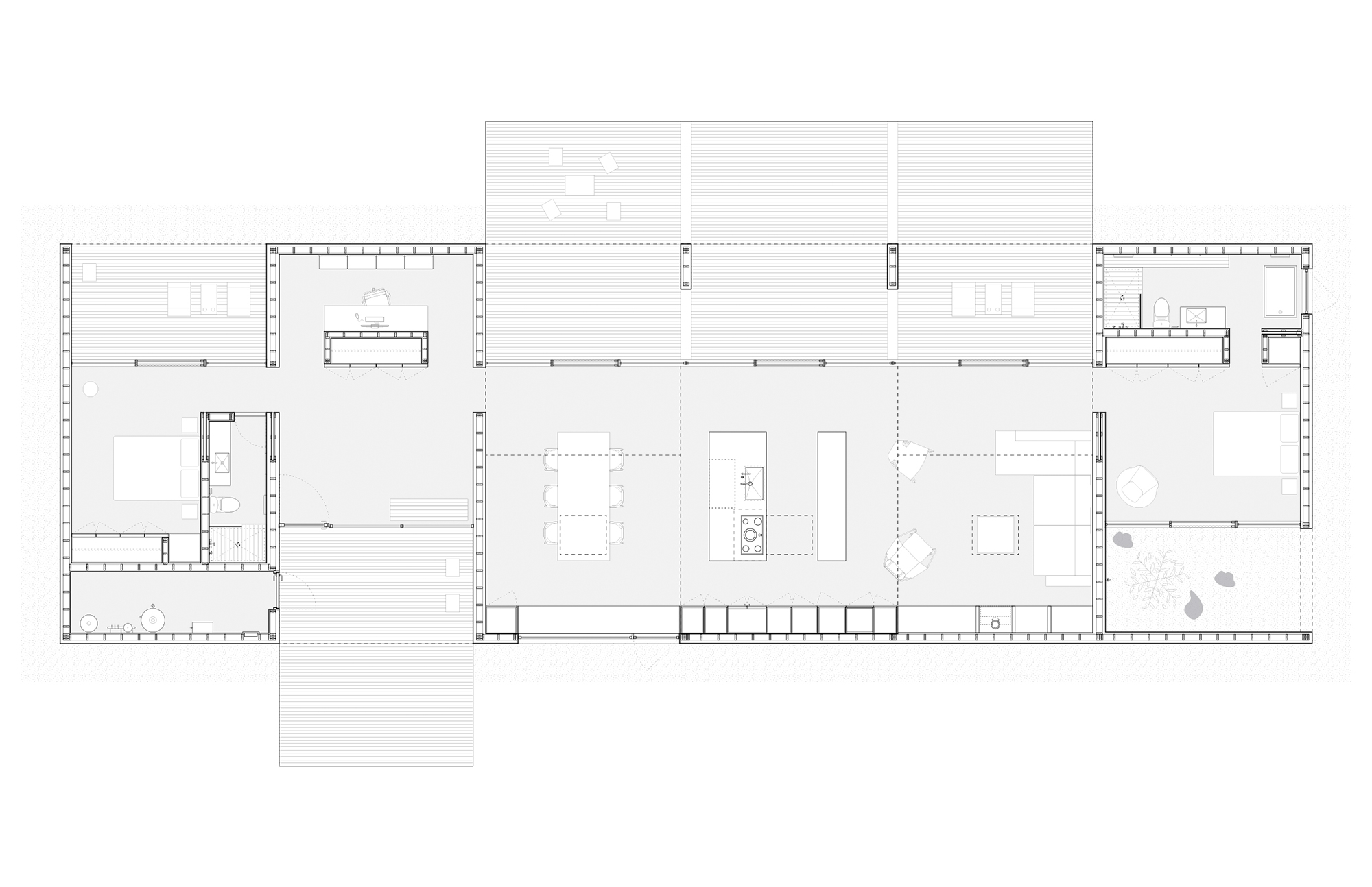
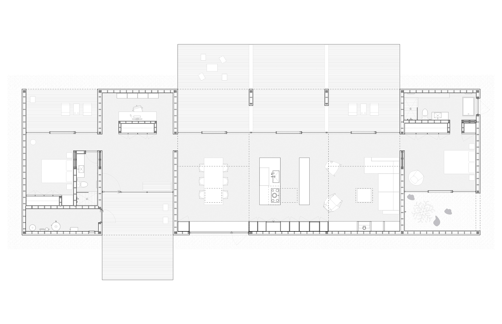
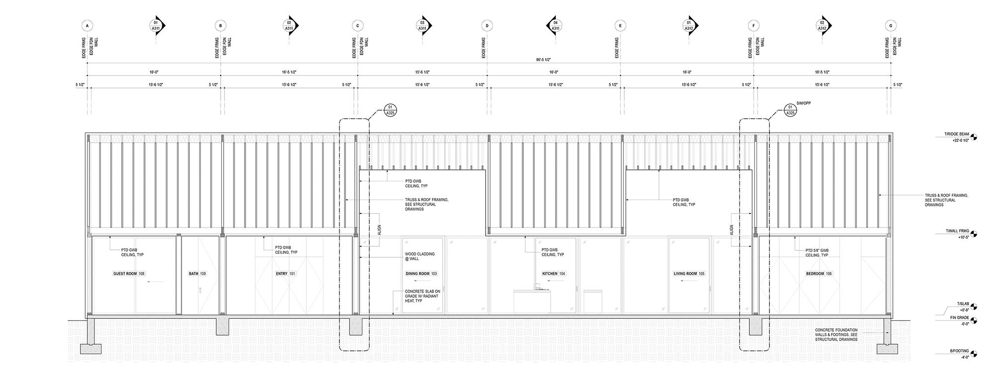
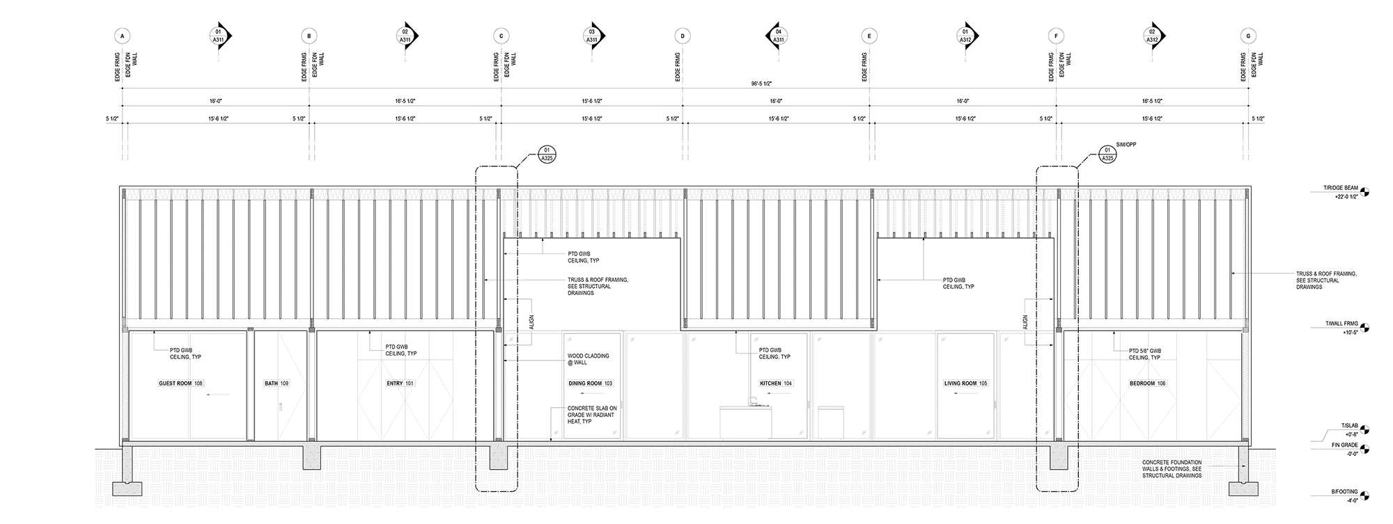
Das dunkle Hass House erstreckt sich linear entlang einer Nord-Süd Achse über den grünen Hügel, so dass die Hauptseite nach Süden blickt und von maximalem Lichteinfall profitiert. Der durchgehende Grundriss ist nach Funktionen in sechs gleichwertige Blöcke unterteilt: Gästezimmer, Eingangsbereich, Esszimmer, Küche, Wohnzimmer und Master Suite. Dabei versetzen die Architekten den Eingangsblock und die Master Suite leicht zu den übrigen Blöcken. So entsteht zwischen den Blöcken für jedes Zimmer ein überdachter Außenbereich, der durch raumhohe Glasschiebetüren zugänglich ist. Für ausreichend Privatsphäre ist die Master Suite von dem Gästezimmer durch die Gemeinschaftsräume getrennt. Esszimmer, Küche und Wohnzimmer öffnen sich mit 15 m langen Schiebetüren zu einer großen gemeinsamen Holzterrasse auf der Südseite. Das Gästezimmer hat einen privaten kleinen überdachten Zugang nach draußen. Die Master Suite ist auf der Westseite mit einem abgetrennten kleinen Garten verbunden, der den Blick in den Himmel und in den Sonnenuntergang freigibt.
Die Innenräume kontrastieren mit ihrer luftigen, lichtdurchfluteten Atmosphäre auch durch die Kombination aus Betonböden, weißen Wänden und Birkensperrholz mit der dunklen Fassade des Hauses. Die Wohnblöcke bilden einen großen zusammenhängenden Gemeinschaftsraum. Oberlichter sorgen hier zusätzlich für diffuses Tageslicht und für bessere Belüftungsmöglichkeiten in den wärmeren Monaten. Die Nordwand des Gemeinschaftsraums besteht aus hellen Holzeinbauschränken, einer Betonbank, einem Holzofen und einer kleinen Nische zur Lagerung von Brennholz. Das Wohnzimmer und der Essbereich werden von der Küche optisch jeweils durch eine Insel aus Beton und Birkenholz abgegrenzt.



























