Meer und mehr: Marine Education Center in Malmö von Nord Architects
Foto: Adam Mørk
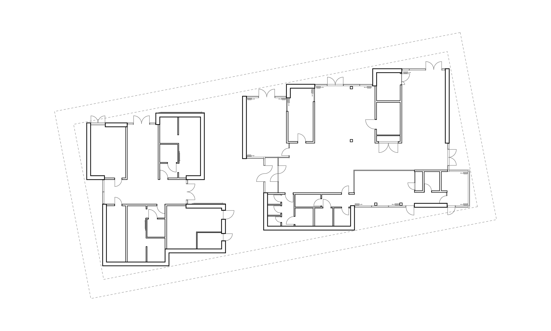
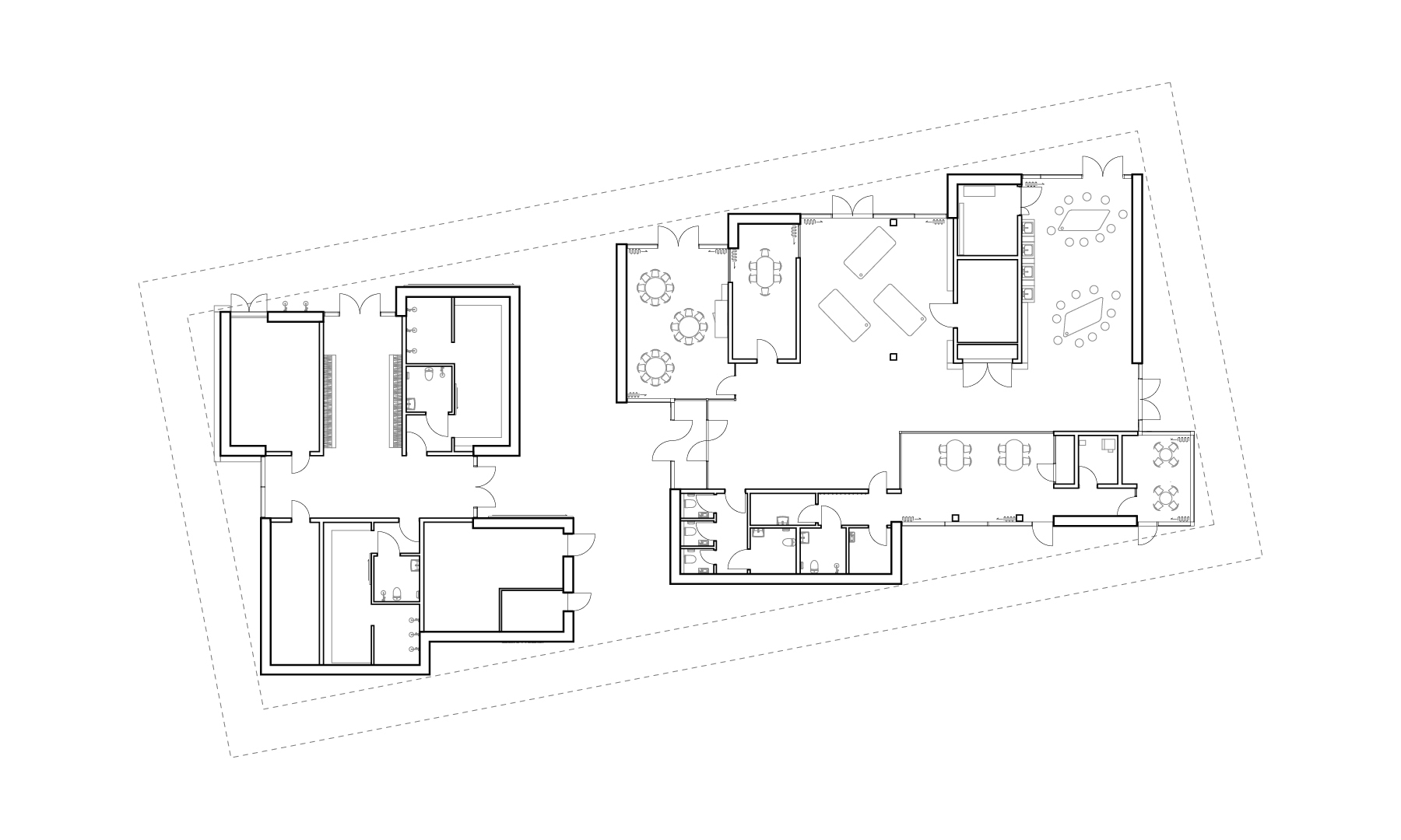
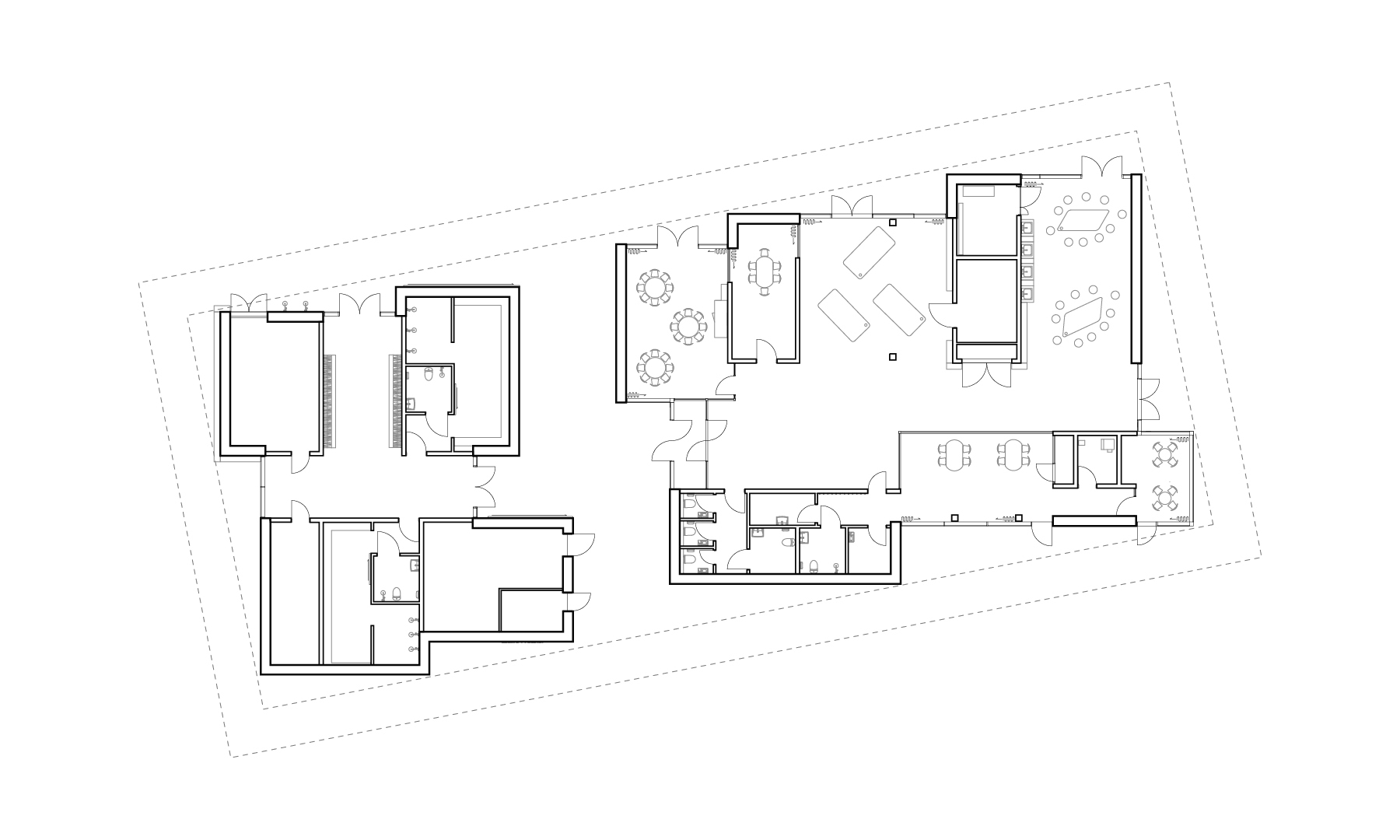
Das Marine Education Center befindet sich am Westrand Malmös, direkt am Öresund, der Meerenge zwischen Dänemark und Schweden. Nord Architects entwerfen ein flaches Gebäude, das sich in die Küstenlandschaft integriert. Das eingeschossige Bauwerk besteht aus mehreren Volumen unterschiedlicher Größe, die sich pavillonartig aneinanderfügen.
Zwischen geschlossenen Innenräumen entstehen so auch geschützte Außenbereiche. Die Ansichten sind rundherum in dunkel verputzte Oberflächen, raumhohe Verglasungen und Holzverkleidungen gehüllt. Ein großes Flachdach legt sich über die einzelnen Volumen und fasst sie zusammen. Es kragt nach allen Seiten aus und öffnet sich zum Himmel mit auffälligen Oberlichtern, die wie hohe Wellen auf einer glatten Meeresoberfläche wirken.
Die Dachgauben prägen auch das Innere des Lernzentrums. Sie bringen viel Licht in die Räume und sorgen, gemeinsam mit einem typisch nordischen Design, für ein freundliches Ambiente. Das Raumprogramm sieht unterschiedliche Aktivitäten vor, die allesamt im Zeichen der Meere stehen.
Neben Wissensvermittlung geht es vor allem um Forschung und Innovation. Mit dem Energiekonzept, das Solarenergie, Wasser- und Lüftungssystem umfasst, knüpfen die Architekten an die Inhalte des Marine Education Centers an: Nachhaltigkeit und Verantwortung, besonders der maritimen Umwelt gegenüber. Durch die Zusammenarbeit mit Universitäten und Bildungseinrichtungen entsteht ein lebendiger Ort des Wissensaustausches, an dem Schulklassen und Familien ebenso willkommen sind, wie Unternehmer und Forscher.















