Time for a sea change: Marine Education Center in Malmö by Nord Architects
Foto: Adam Mørk
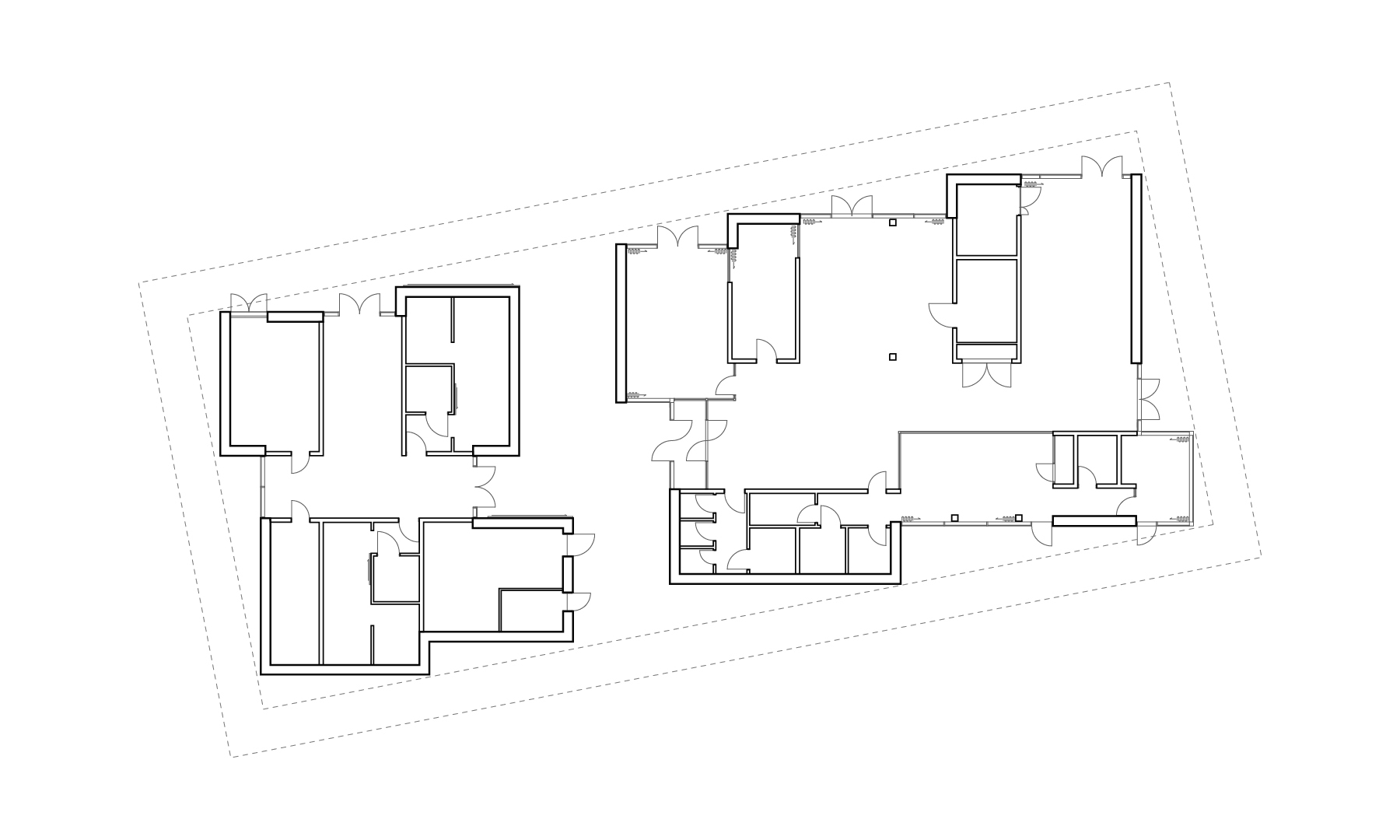
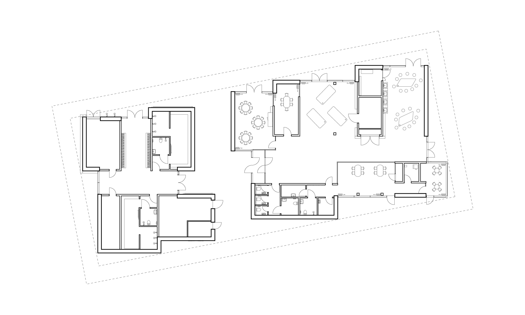
The Marine Education Center is located at the western edge of Malmö on the shore of the Öresund strait between Denmark and Sweden. Nord Architects has designed it as a low-slung building integrated into the coastal landscape. The single-storey structure offers a number of differently-sized volumes, strung together loosely to form sheltered outdoor areas between the mainly windowless pavilion-like structures.
The elevations are executed in dark plaster, all-round full-height glazing, and timber cladding. A roof cantilevered on all sides lies over the individual volume, unifying them and holding them together. At the top, conspicuous flat dormers reminiscent of high waves on a smooth sea open it up to the sky.
The dormers help determine the character of the interior of the education centre by letting in plenty of natural light into the rooms and ensuring, in tandem with the typically Nordic design, a welcoming ambience. The room programme envisages differing activities concerned with the sea in one way or the other, with the dissemination of knowledge as well as research and innovation being the main focus.
The energy concept devised by architects incorporates solar energy and includes the building’s water and ventilation system, thus placing it in line with the aim of the Marine Education Center, namely to promote sustainability and responsibility regarding the maritime environment in particular. A lively place for the exchange and sharing of knowledge has come about, thanks also to collaboration with universities and educational establishments, a place where school classes and families are as welcome as entrepreneurs and scientists.















