// Check if the article Layout ?>
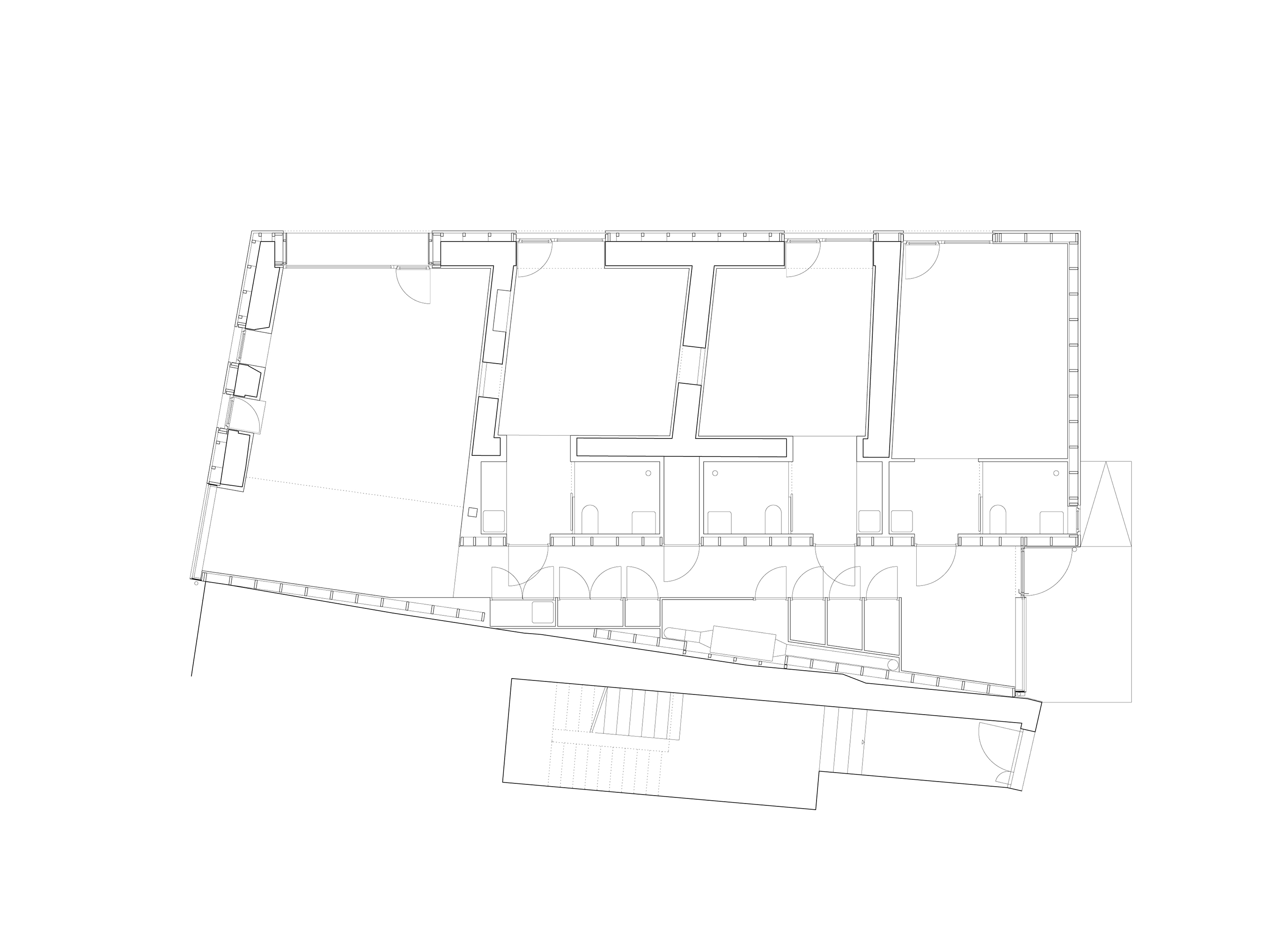
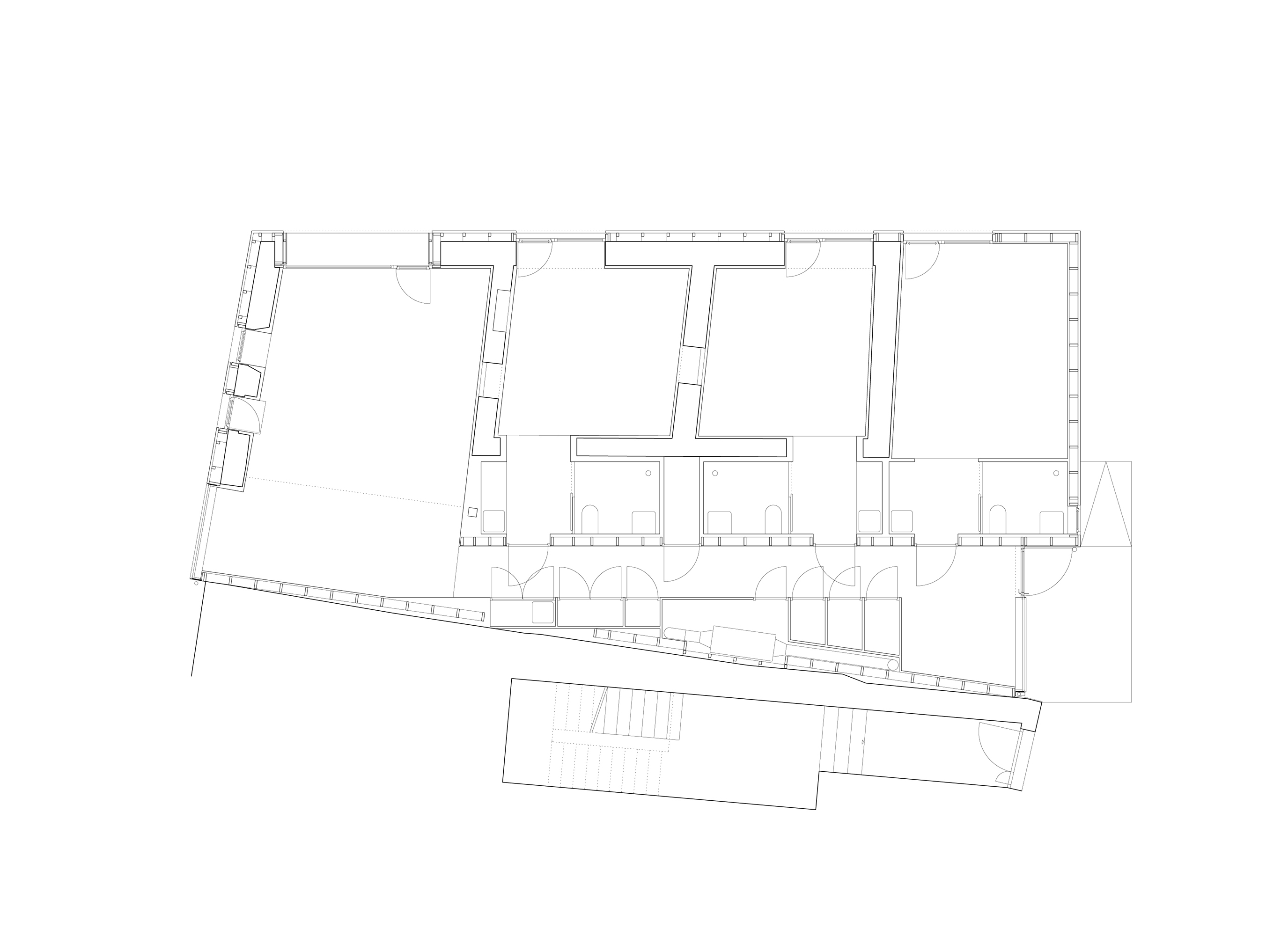
Mehrgenerationenwohnen auf dem Land
Foto: Ludmilla Cerveny
Ein französisches Dorf mit etwa 300 Einwohnern in der Nähe von Nancy beauftragt die Architekten mit einem zeitgenössischen Mehrgenerationenhaus. In einem ehemaligen Bauernhaus planen die Architekten von GENS drei Wohneinheiten für Senioren und zwei Familienwohnungen. Drei der vier Außenfassaden sind mit den ortsüblichen Faserzementschieferplatten verkleidet; die vierte – transluzente – Fassade zum Süden hin wird durch einen Einschnitt im Hausvolumen erst geschaffen. Dadurch erhalten einst dunkle Scheunenräume in den oberen Geschossen genügend natürliches Licht.
Der Mangel an Licht dient den Architekten als Einstieg: die Herausforderung bei der Projektplanung zum Lösungsansatz. Das Erscheinungsbild der ehemaligen Scheune ist an bestehende Dorfstrukturen angepasst; im Inneren eröffnet sich ein lichtdurchflutetes Universum. Auch eingesetzte Materialien und Details beziehen sich auf die ländliche Umgebung, wie die Holzschnitzereien an der Hausfassade oder die Motive der farbigen Flurgestaltung. Der Umbau ist einerseits eine einzigartige Struktur, die sich andererseits perfekt ins alltägliche Dorfbild integriert.















