Brasilianische Architekturikone
Metro Arquitetos erweitern Museu de Arte de São Paulo
Ansicht des ikonischen Museums von Lina Bo Bardi und des Gebäudes Pietro Maria Bardi, © Leonardo Finotti
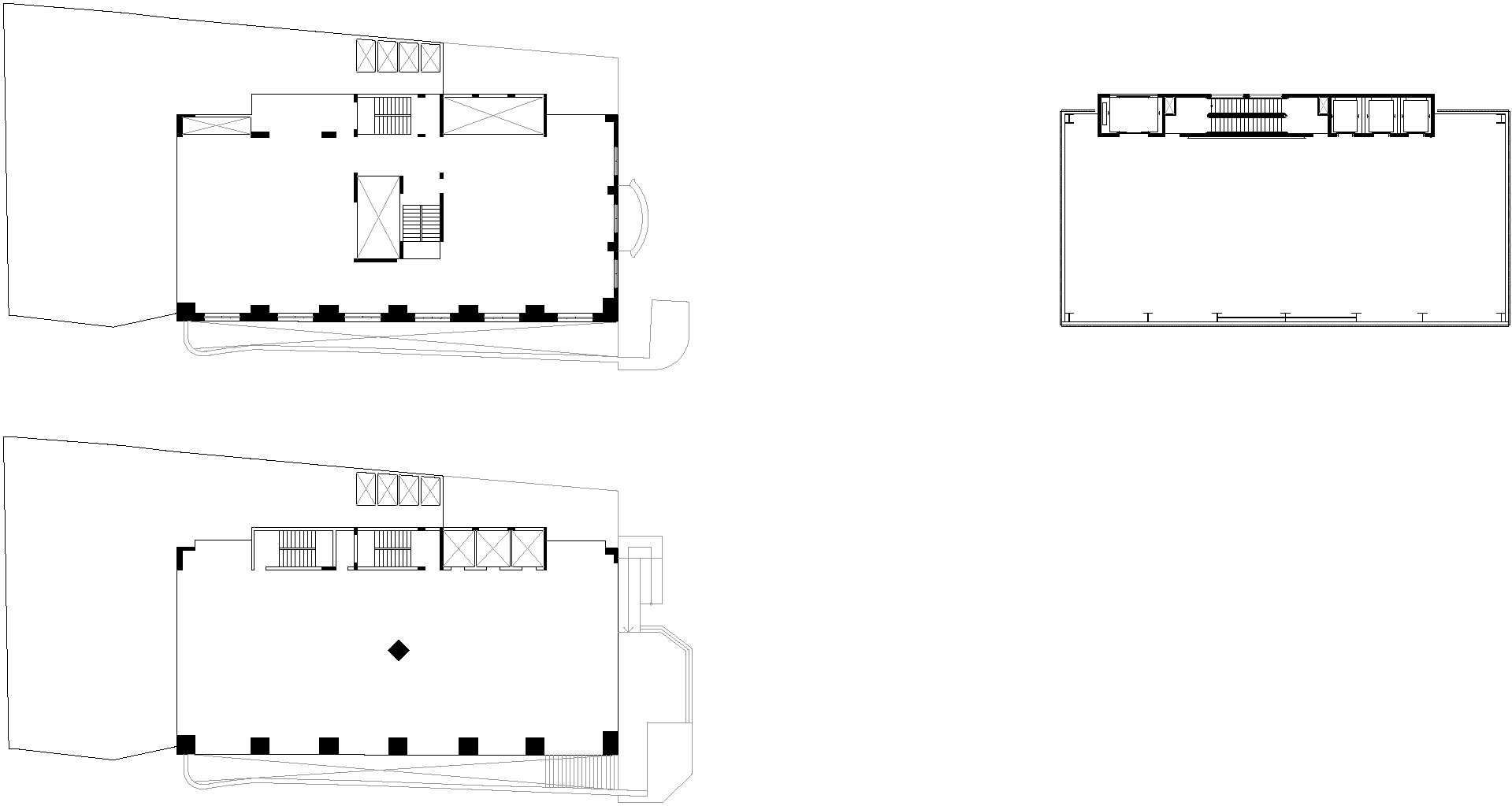
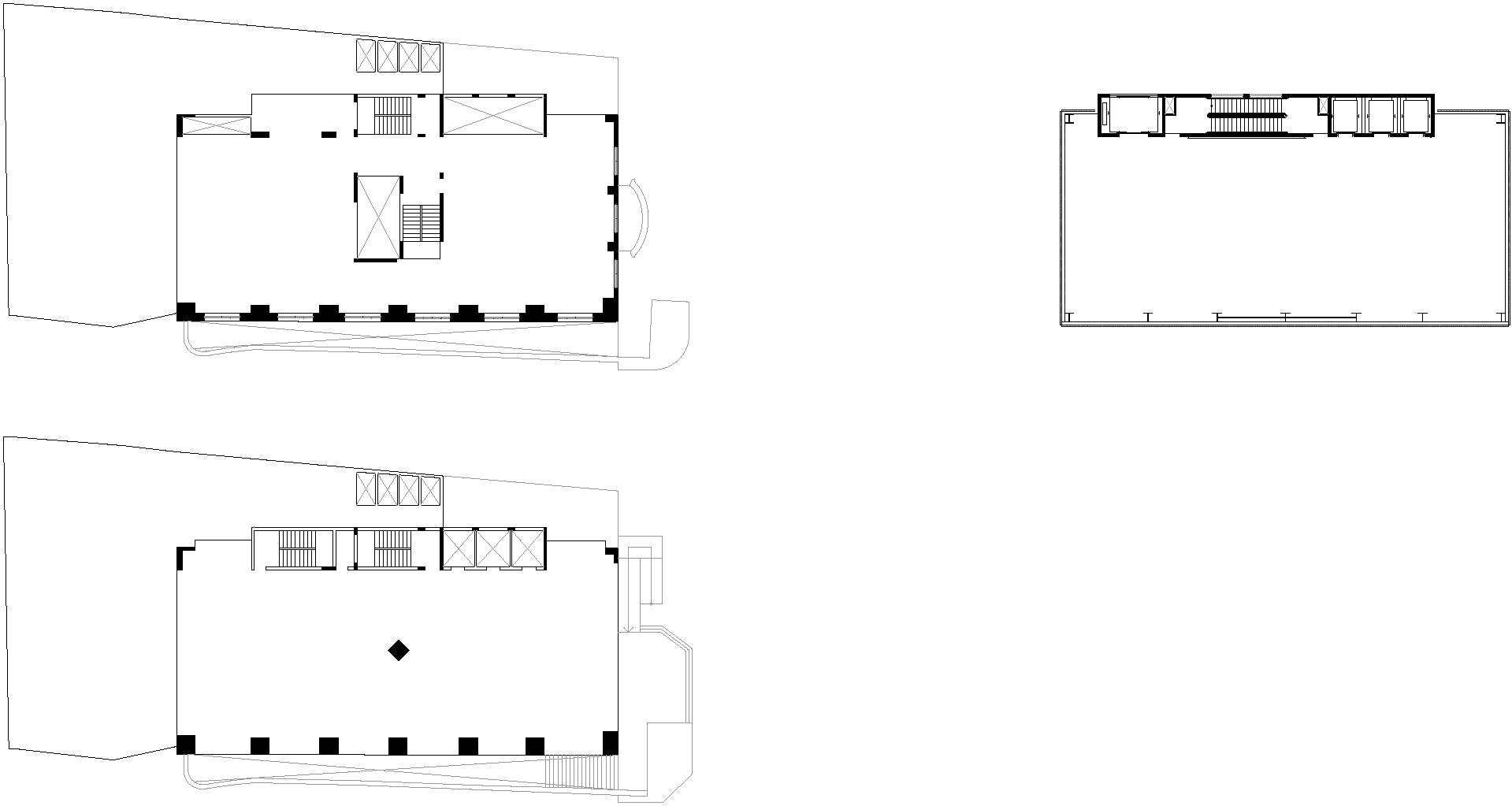
57 Jahre nach der Einweihung der brasilianischen Architekturikone Museo de Arte de São Paulo (MASP) von Lina Bo Bardi in São Paulo hat das Museum kürzlich seinen neuesten Anbau vorgestellt. Der schlichte Baukörper besteht aus einem 14-stöckigen Turm, der mit dunklen, perforierten und gefalteten Metallplatten aus Aluminium verkleidet ist. Die Erweiterung schafft über 7000 m² neue Fläche und umfasst fünf Ausstellungsgalerien, zwei Mehrzweck- sowie mehrere Unterrichtsräume und ein Labor. Im verglasten Sockel sind der Empfangsbereich sowie ein Museumsladen, ein Restaurant, ein Café und Lagerräume untergebracht. Der von Metro Arquitetos entworfene, schlicht gestaltete Turm hat eine Debatte über seine ästhetische Integration und den Materialkontrast ausgelöst. Welche Werte und Innovationen repräsentiert der zusätzliche Baukörper?


Das Museo de Arte de São Paulo (MASP) von Lina Bo Bardi mit der neuen Erweiterung, © Pedro Kok


© Pedro Kok
Nachbar der riesigen roten Säule
Das Museum an der Avenida Paulista befindet sich in der größten Metropole Südamerikas und ist hauptsächlich von Bürohochhäusern umgeben, die für die Moderne Brasiliens charakteristische eklektische Stile aufweisen. Ob aufgrund seines langgestreckten, hohen Volumens oder seiner ungewöhnlichen dunklen Fassade – das Gebäude sorgte bei den Betrachtern für Aufsehen. Das Pietro-Maria-Bardi-Gebäude entstand durch die Sanierung eines bereits bestehenden Bauwerks aus den 1940er-Jahren. Das Volumen wurde einer Teilabrissmaßnahme unterzogen, während gleichzeitig Anbauten im oberen Teil vorgenommen wurden. Die Architekten ließen sich von der zeitgenössischen vertikalen Museumstypologie inspirieren. Ihr Ziel war es, ein homogenes und zeitloses Design zu schaffen, das sowohl langlebig als auch wartungsfreundlich ist.


Gustavo Cedroni und Martin Corullon von Metro Arquitetos in der neuen Erweiterung des MASP-Museums in São Paulo, Brasilien. © Bob Wolfenson
Hinter der umstrittenen Fassade
Die neue doppelschichtige Metallfassade soll die Sonneneinstrahlung reduzieren und den thermischen Komfort verbessern, wodurch der Bedarf an Klimatisierung sinkt. Darüber hinaus gewährleisten die HLK- und LED-Systeme in Übereinstimmung mit internationalen Standards für die Konservierung von Museen den Erhalt der Kunstwerke. Die schwarzen Metallpaneele bedecken das gesamte bestehende Volumen mit Ausnahme des Erdgeschosses. Diese Designstrategie zielt darauf ab, das von Lina Bo Bardis hängender Struktur geschaffene Gefühl der Offenheit zu verstärken.


Erdgeschoss des Pietro Maria Bardi-Gebäudes und Blick auf das Lina Bo Bardi-Gebäude. © Leonardo Finotti
Pietro Maria Bardi – Erster Direktor des MASP
Eine Reihe bewusster Entscheidungen gewährleistet eine nahtlose Integration zwischen dem Neubau und dem weltweit berühmten Gebäude. „Das Erweiterungsprojekt wurde so konzipiert, dass es Linas Gebäude ergänzt und ein architektonisches Ensemble schafft, das als ein einziger Organismus funktioniert und nicht nur eine Hinzufügung von Flächen ist“, erklärt Martin Corullon von Metro Arquitetos. Eine solche Maßnahme war die Verlegung des Ticketschalters in das Untergeschoss des Pietro-Maria-Bardi-Gebäudes. Dadurch wurde das Erdgeschoss wieder in seinen ursprünglichen Zustand mit freier Spannweite versetzt – ein wesentliches Prinzip in Lina Bo Bardis Entwurf. Darüber hinaus verbindet nun eine unterirdische Passage die beiden Gebäude und optimiert so den Besucherverkehr und den Transport von Kunstwerken.
Architektur: METRO Arquitetos Associados und Neves Arquitetos
Bauherr: Museu de Arte de São Paulo Assis Chateaubriand (MASP)
Standort: São Paulo - SP 01310-200 (BR)
HVAC: Teknika
Stahl- und Betonkonstruktion: Cia. De Projetos
Abrissplanung: SOFT Projetos Estruturais
Fundamentkonstruktion: MG&A Consultores
Lichtplanung: Fernanda Carvalho and Paula Carnelós
Installationen: MHA Engenharia
Fassade: QMD Consultoria
Akustik: Harmonia Global
Landschaftsgestaltung: Ricardo Vianna



















