// Check if the article Layout ?>
Minimal Art zu bauen: Maison Gauthier von Atelier Barda
Foto: Juliette Busch
Das Maison Gauthier in der kanadischen Provinz Québec ist von einer dichten Waldfläche umgeben. Das Wohnhaus mit einer Pferdefarm liegt auf einem felsigen, mit Fichten und Birken bewachsenen Hügel. Gewünscht haben sich die Bauherren ein Haus, das vor allem auf den Pferdereitplatz ausgerichtet ist.
Eine bewaldete Böschung zwischen der Hauptstraße und dem Haus fungiert wie ein visueller Filter. Das Areal bleibt von der Straße aus unsichtbar. Bei einer allmählichen Annäherung an das Haus taucht zuerst eine geschlossene Fassade mit einem seitlich liegenden Bogen auf –, das ist der Haupteingang des Hauses. Die minimalistische Raumkomposition geht zurück auf das Interesse der Bauherren der Minimal Art gegenüber.
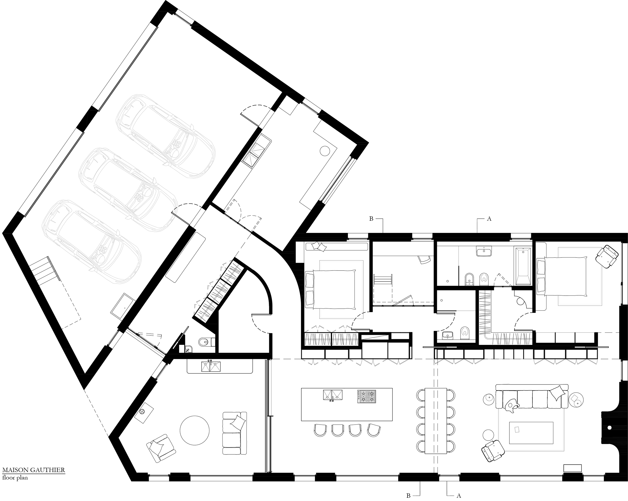
Das Haus mit einem asymmetrischen V-Grundriss besteht aus zwei Bereichen: Der kleinere Flügel mit einer Autogarage und einem Keramikstudio wird mit dem größeren Wohnflügel durch einen schmalen Gang verbunden. Atelier Barda entwickelt das Haus als eine Raumsequenz aus engen und weiten, niedrigen und hohen, dunklen und hellen Räumen: Ein gekrümmter Korridor führt von der dunklen Eingangshalle zum lichterfüllten Wohn- und Essraum, der durch vertikal angeordnete Blenden in unterschiedliche Nutzungsbereiche unterteilt ist. Unterschiedlich breite Fensteröffnungen in Richtung Pferdereitplatz erzeugen eine räumliche Spannung zwischen Innen und Außen.














