// Check if the article Layout ?>
Moderner Touch: Regierungssitz von Estudio Carme Pinós
Foto: Jesús Arenas Mesa
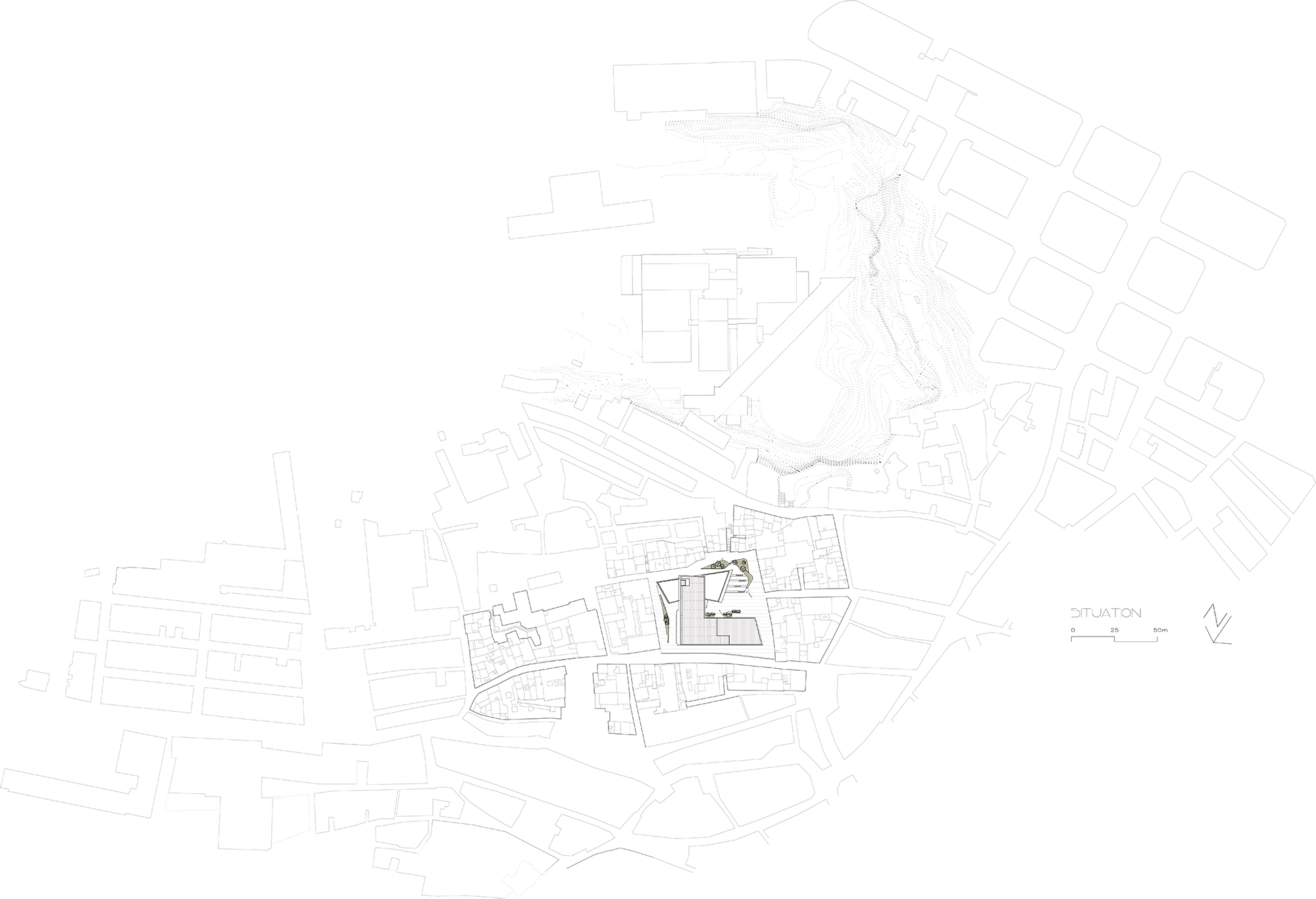
Der rechteckige Bauplatz befindet sich mitten in der dicht bebauten Altstadt Tarragonas. Umgeben von historischen Gebäuden positionieren Estudio Carme Pinós Architekten das Catalan Government Headquarter dort zentral auf dem Grundstück. Anstatt eines einzelnen Volumens entscheiden sie sich für ein Ensemble aus drei Baukörpern, die gleichzeitig den Außenraum strukturieren und attraktive Plätze aufspannen. Letztere besitzen einmal einen öffentlicheren, an anderer Stelle einen privateren Charakter, sind mit Bäumen bepflanzt und bereichern dadurch sowohl die Qualität der Arbeitsplätze im Inneren, als auch die Umgebung. Der Bau wirkt monolithisch und doch kleinteilig und fügt sich stimmig in das Stadtgefüge ein. Die zwei größeren Gebäudeteile orientieren sich an den Straßenfluchten, ein kleinerer Zwischentrakt verbindet die beiden und dient der Haupterschließung.
Die Außenansichten folgen einer klar geometrischen und trotzdem lebendigen Linie. Schräg abfallende Fassaden, spitz zulaufende Wände und abgeschnittene Kanten schaffen ein abwechslungsreiches Bild. Sie kragen über den Haupteingang des Gebäudes aus, schaffen geschützte Bereiche und bilden kleine Schlupflöcher. Während die Sockelzone in Grau gehalten ist, erscheinen die Fassen darüber komplett in Weiß. Die Fenster werden mit ihren schwarzen Rahmen und unterschiedlichen Sonnenschutzelementen zum besonderen Hingucker. Sie sind in den nach außen gewandten Ansichten als schmale Schlitze, zu den Plätzen hin als großflächige Verglasungen ausgeführt.
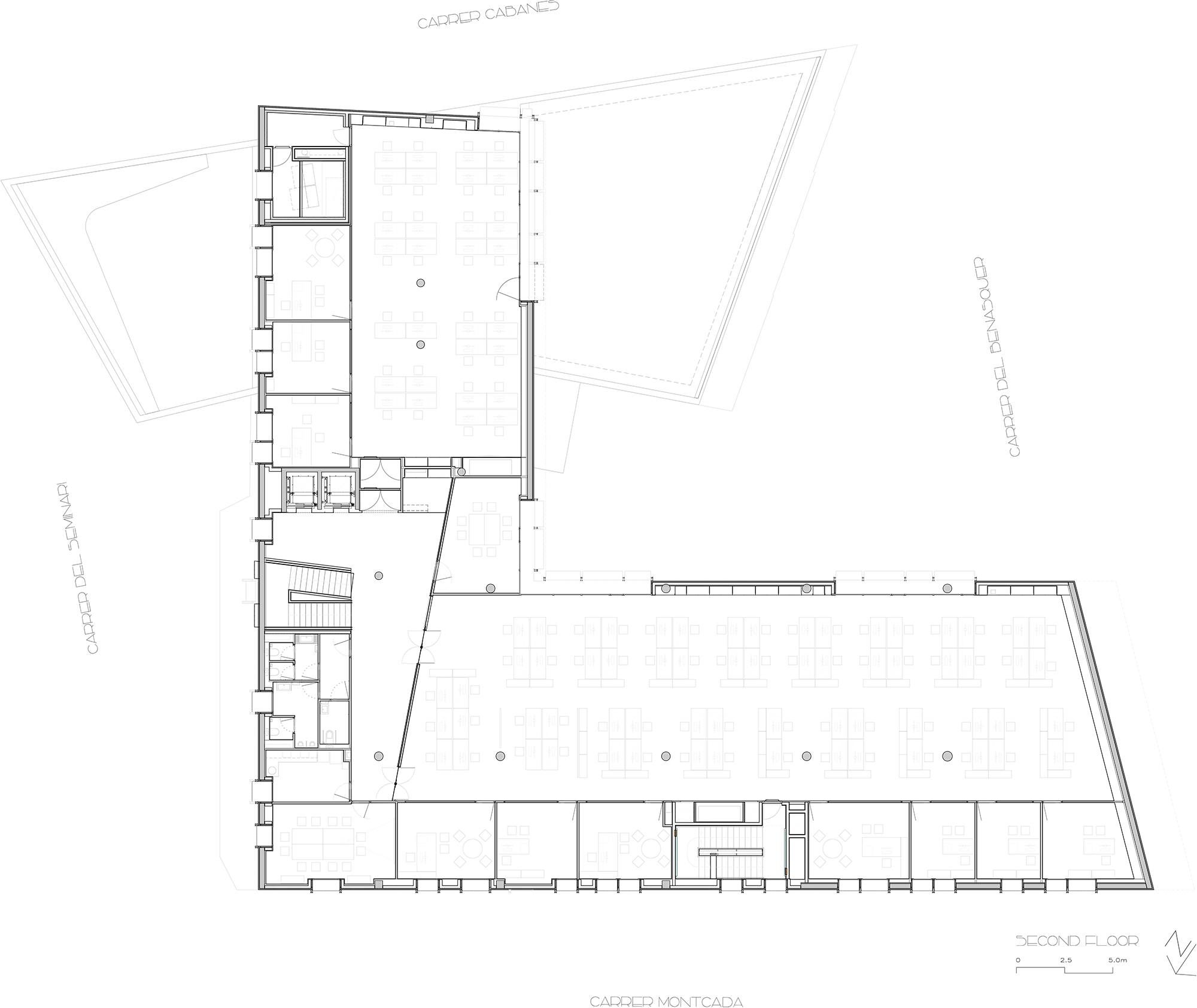
Auch das Raumprogramm nimmt diese Gliederung wieder auf. Straßenseitig sind kleine Büros angeordnet, ansonsten gibt es offene, gemeinschaftliche Arbeitsbereiche. Ein schlichtes Farbkonzept rundet das Catalan Government Headquarter ab. Graue Böden und Sichtbetonoberflächen, Holzeinbauten und rote Akzente komplettieren das Design.















