// Check if the article Layout ?>
Modern touch: Government building by Estudio Carme Pinós
Foto: Jesús Arenas Mesa
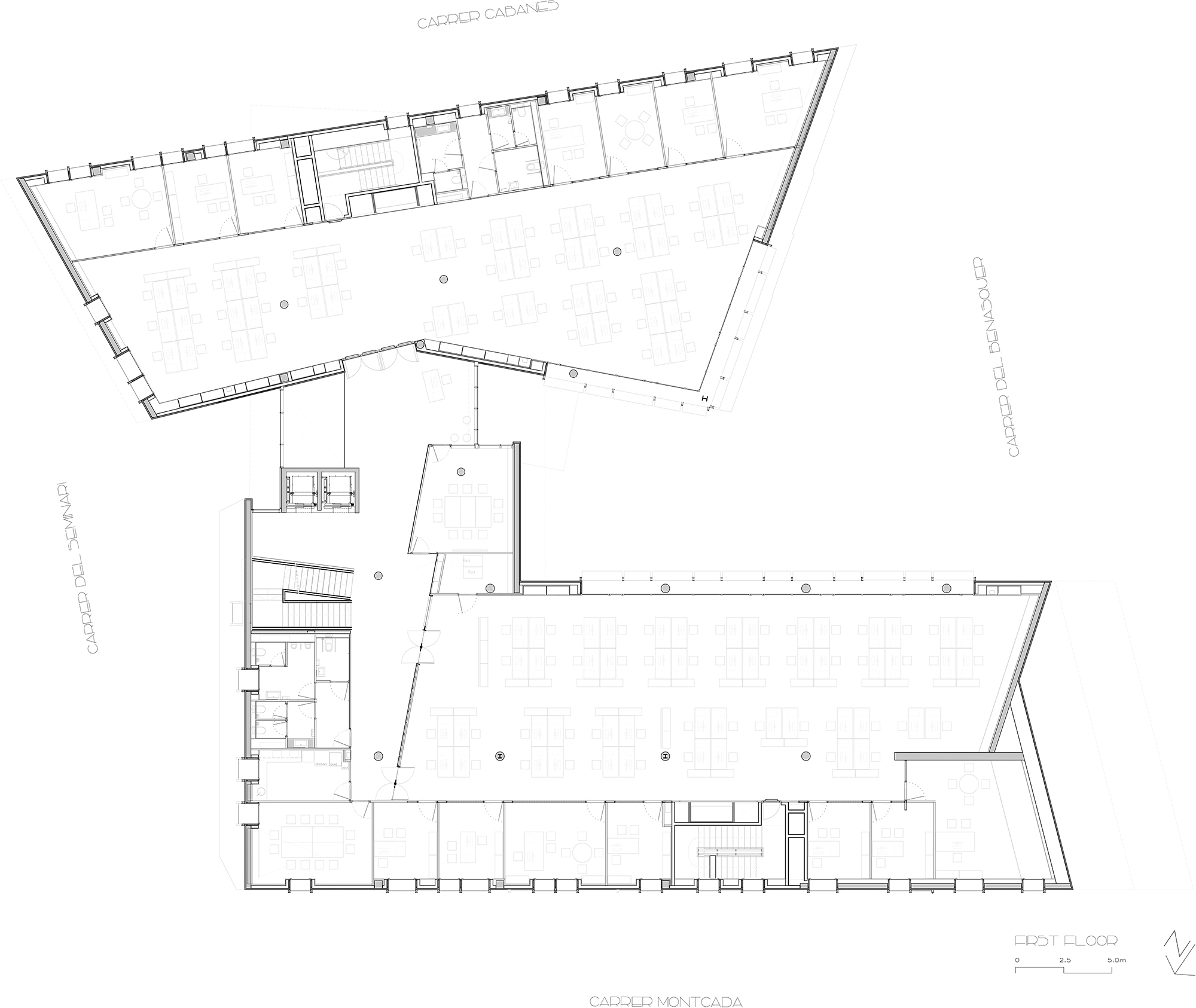
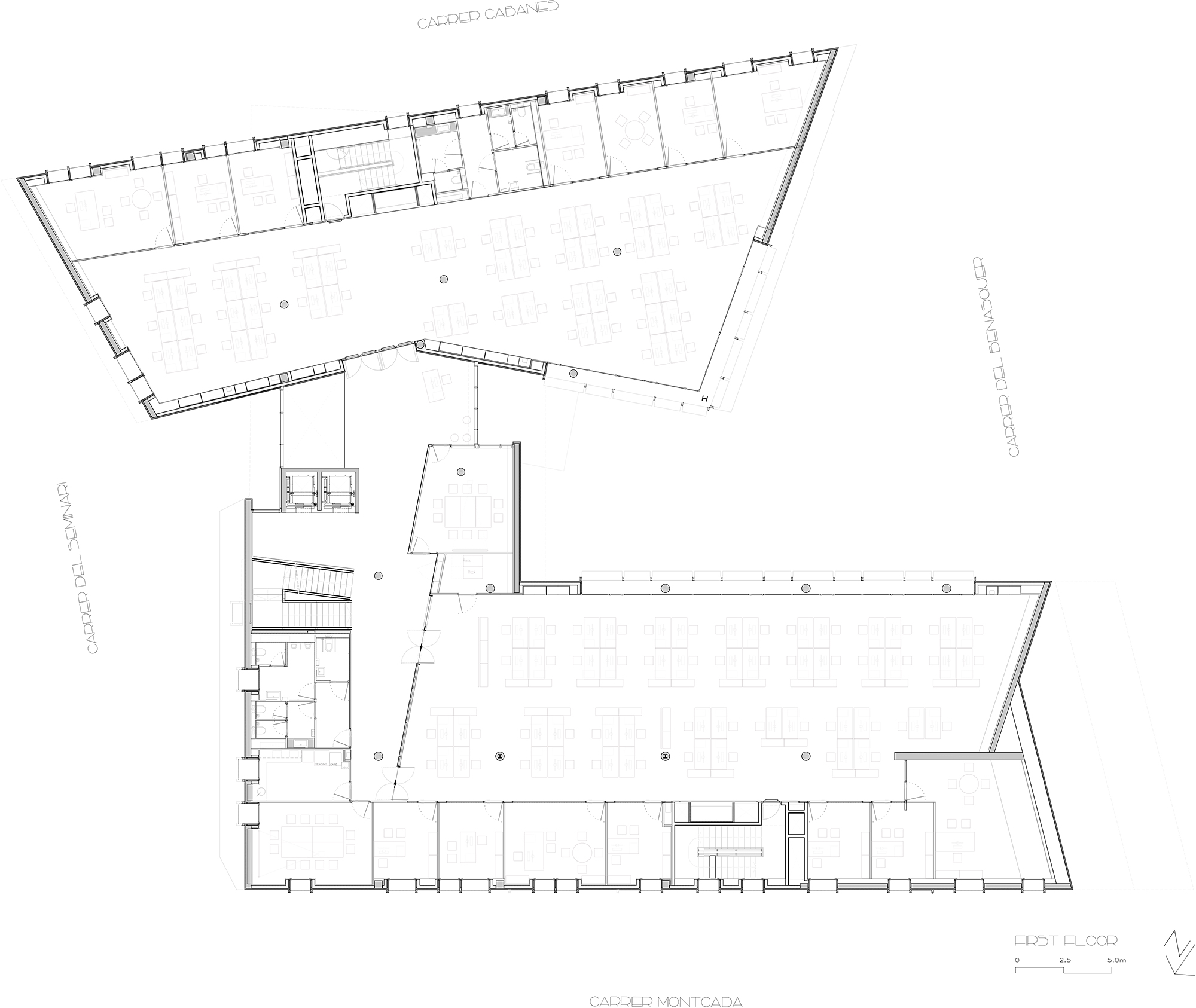
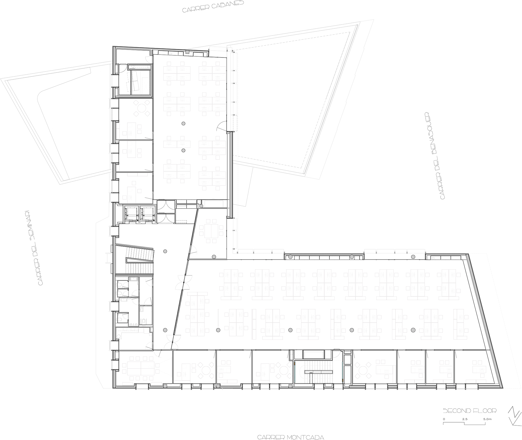
The rectangular site is located in the midst of Tarragona's densely-packed old quarter. The Estudio Carme Pinós architects have positioned the Catalan Government Headquarters at the centre of the plot, which is surrounded by historical buildings, and instead of creating a single building decided in favour of an ensemble of three segments that simultaneously organise the outdoor area and establish attractive plazas. The latter, ranging from public to more private in character, are planted with trees, thus enriching the quality of both indoor workplaces as well as the surroundings. The building makes a monolithic and yet also fragmented impression, and thus fits in congruently with the surrounding urban structure. The two larger segments are aligned to the frontage of streets, while a smaller intermediate segment links the two and serves as the building's main access point.
The exterior elevations follow clearly geometric and yet also lively lines. Cutaway corners, slanting facades and walls angled to a sharp edge create a varied look, one that also includes cantilevering above the main entrance, the creation of sheltered areas and the formation of little niches. The facades have a plinth course in grey but are otherwise solely in white. The windows with their black frames and differing solar shading elements are a particular eye-catcher, and are executed either as narrow slits in the outward-looking elevations or as larger areas of glazing on walls facing the plazas.
The room programme reflects the building modulation, with small offices organised along the street facades and collective open-plan work areas located in the other areas. A simple colour concept rounds off the Catalan Government Headquarters, with grey floors, exposed concrete surfaces and red accentuation completing the design.
The exterior elevations follow clearly geometric and yet also lively lines. Cutaway corners, slanting facades and walls angled to a sharp edge create a varied look, one that also includes cantilevering above the main entrance, the creation of sheltered areas and the formation of little niches. The facades have a plinth course in grey but are otherwise solely in white. The windows with their black frames and differing solar shading elements are a particular eye-catcher, and are executed either as narrow slits in the outward-looking elevations or as larger areas of glazing on walls facing the plazas.
The room programme reflects the building modulation, with small offices organised along the street facades and collective open-plan work areas located in the other areas. A simple colour concept rounds off the Catalan Government Headquarters, with grey floors, exposed concrete surfaces and red accentuation completing the design.















