Ferienhäuser von der Stange
Modulbau von Bio Architects
© Arseniy Rossikhin
Lorem Ipsum: Zwischenüberschrift
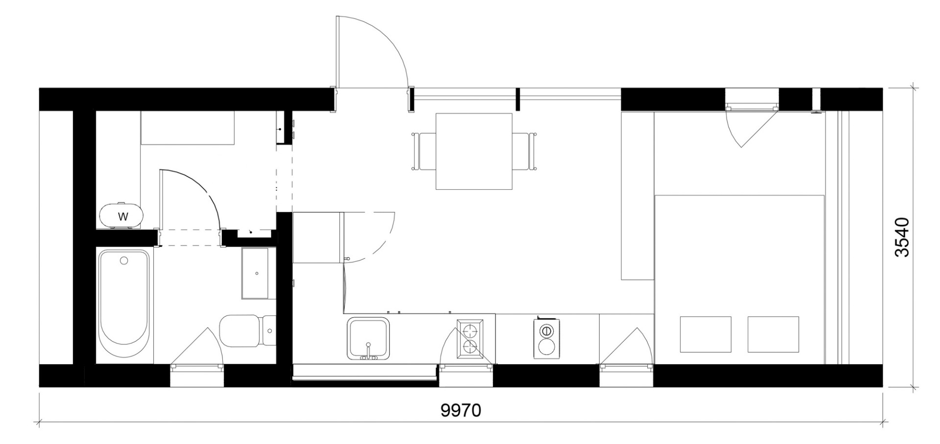
Beim neuesten Modell handelt es sich um ein Tiny House, das den Namen auch verdient – nur 27 m² ist es groß und enthält doch alle Funktionen, die man so braucht: Eine verhältnismäßig großzügige Küche in der Mitte des Hauses bildet das Zentrum. Es wird flankiert von einem Schlafpodest mit großem Panoramafester und den Nebennutzungen wie Boilerraum und Bad an der geschlossenen Giebelseite.


© Arseniy Rossikhin
Lorem Ipsum: Zwischenüberschrift
Das hier abgebildete Haus gehört zum Pine River County Hotel am Ufer des Protva-Flusses. Die große Glasfront lässt Innen- und Außenraum verschwimmen. Gemütliche Wärme erzeugt ein Kaminofen, der mit Holz befeuert wird und auch zum Kochen benutzt werden kann.
Lorem Ipsum: Zwischenüberschrift
Archaischer Hüttenzauber ist hier kombiniert mit Designkomfort: Holzoberflächen aus Eiche, eine Küchenarbeitsplatte aus Naturstein, Glas und schwarz lackiertes Metall bestimmen den Innenraum. Die Konstruktion des Hauses beruht auf einem vorgefertigten Holzständerbau, der mit einer Metallfassade bekleidet ist. Die Fertigung in der Fabrik dauert nur 6-7 Tage.


© Arseniy Rossikhin
Lorem Ipsum: Zwischenüberschrift
Die Idee hinter dem Entwurf war es, ein Haus zu schaffen, das der Käufer selbst in der Lagerhalle abholen, selbst aufbauen und sofort benutzen kann – ohne sich Gedanken über die Möbel, Teppiche, Wandoberflächen und Armaturen machen zu müssen. Denn all diese Dinge werden mitgeliefert.


© Arseniy Rossikhin
Lorem Ipsum: Zwischenüberschrift
Das modulare Ferienhaus wird in Russland gefertigt und in ganz Europa verkauft. Vertragspartner gibt es in Finnland, Polen, Österreich und auch in Deutschland. Aus der Serie der DublDom-Modulhäuser wurden bereits über 1000 Stück europaweit errichtet. Wie sich der Konflikt mit Russland auf das Exportprodukt auswirken wird, bleibt abzuwarten.
Architektur: Ivan Ovchinnikov, Olga Sandakova, Kirill Kazakov
Innenarchitektur: Anna Kandybovich
Hersteller/Fabrikat: DublDom TOPOL 27
















