Treffpunkt für die Gemeinde
Monolithische Kirche auf Teneriffa von Menis Arquitectos
© Simona Rota
Nach 15 Jahren Planung und Bauzeit ist die Kirche Santísimo Redentor auf Teneriffa fertig. Der Entwurf des monolithischen Gotteshauses aus Beton und Stein stammt vom lokalen Büro Menis Arquitectos. Im Zuge diverser Um- und Neubauprojekte in Las Chumberas, einem Stadtteil von La Laguna, sollte die Kirche zum urbanen und sozialen Katalysator werden.


© Patri Cámpora
Das kanarische Planerteam rund um Fernando Menis lässt sich von der vulkanischen Landschaft der Insel inspirieren und entwickelt einen massiven Sakralbau aus Sichtbeton. Damit fällt die Wahl auf ein regional verfügbares Material ohne lange Transportwege. Dank seiner thermischen Masse unterstützt es einen energieeffizienten Low-Tech-Ansatz.
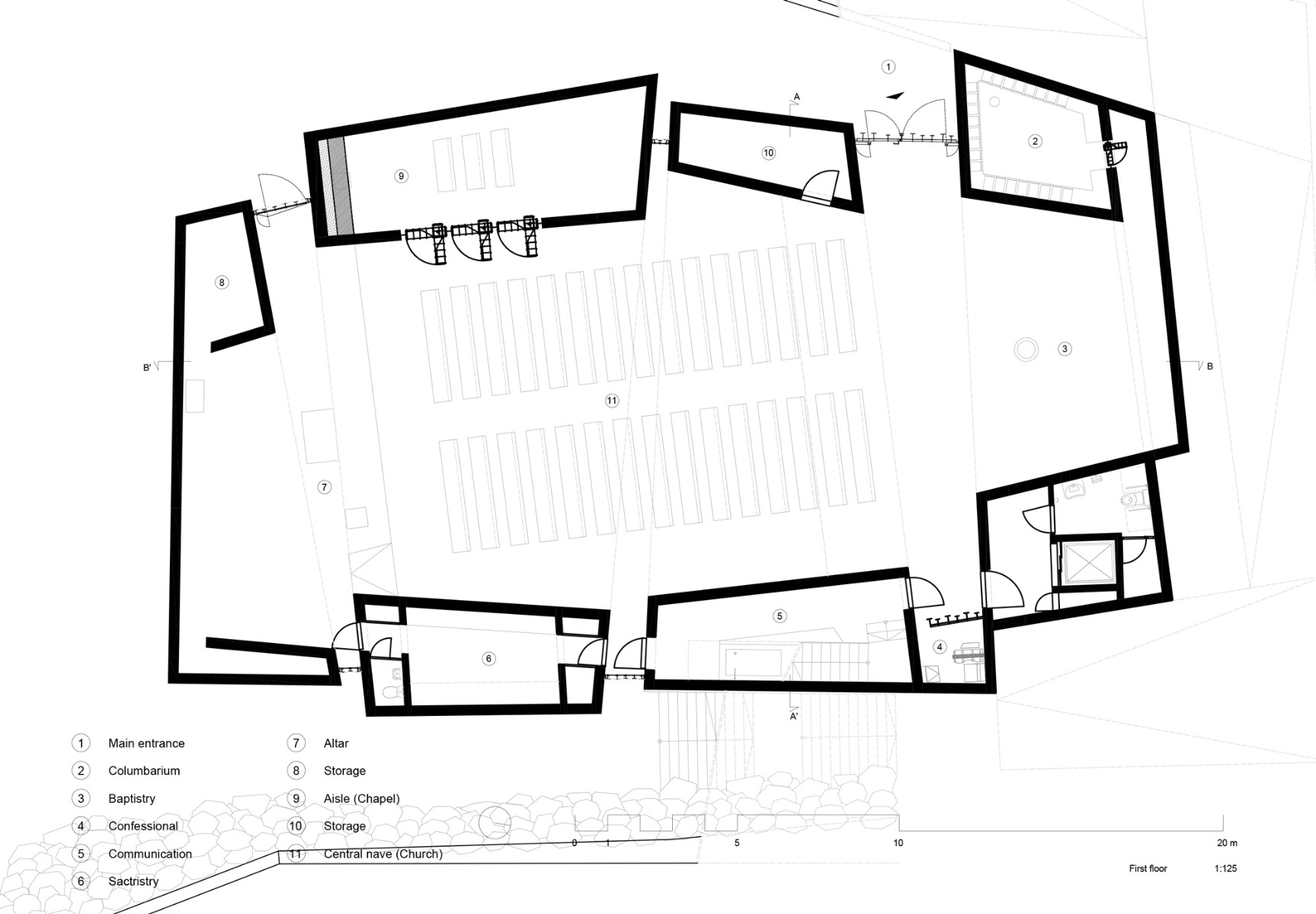
Die Kirche setzt sich aus vier Volumen zusammen, die mitten im Wohngebiet wie kantige Felsen in die Höhe ragen. Tiefe Zäsuren trennen die einzelnen Körper, die in mehreren Bauphasen errichtet wurden.


© Simona Rota
Skulpturale Metall- und Glaselemente füllen die Bereiche zwischen den vier Blöcken der Kirche. An der nach Osten gerichteten Hauptfassade markiert ein stilisiertes Kreuz das Gebetshaus. Durch die Einschnitte fallen die ersten Sonnenstrahlen hinter dem Altar ins Innere. Auch in die übrigen Räume dringt das Licht je nach Tageszeit direkt oder diffus ein und sorgt für eine stimmungsvolle Atmosphäre. Sämtliche Oberflächen sind auch hier von Beton geprägt. Die Architekten spielen mit unterschiedlichen Texturen und beeinflussen so die Akustik: Neben glatten Sichtbetonwänden verleihen sie dem Werkstoff mit Vulkangestein ein poröses Finish, welches ungewollte Geräusche absorbiert.


© Patri Cámpora


© Patri Cámpora
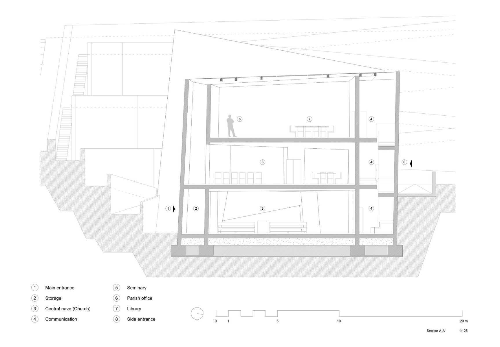
Während sich der Hauptraum der Kirche nach vorne hin imposant über die gesamte Höhe öffnet, ist der hintere Gebäudeteil in mehrere Geschosse unterteilt. In den oberen Etagen befinden sich ein Gemeindezentrum sowie eine Bibliothek. Sie komplettieren die Pfarrkirche Santísimo Redentor auf Teneriffa und verwandeln sie in einen öffentlichen Treffpunkt, der nicht nur Gläubige, sondern auch alle anderen Bewohner des Viertels einlädt.
Architektur: Menis Arquitectos
Bauherr: Kirche Santísimo Redentor – Diözese Teneriffa, Stadt La Laguna
Standort: C. Volcán Estromboli 3, 38108 La Laguna (ES)
Tragwerksplanung: Juan José Gallardo






















