A community meeting place
Monolithic Church on Tenerife by Menis Arquitectos
© Simona Rota
After 15 years of planning and construction, Tenerife’s Santísimo Redentor church is complete. The design for this monolithic, concrete-and-stone house of worship is the brainchild of local studio Menis Arquitectos. The church is set to become an urban and social catalyst in the face of various renovation and new-building projects in Las Chumberas, a district of La Laguna.


© Patri Cámpora
The Canarian planning team surrounding Fernando Menis were inspired by the islands’ volcanic landscape in developing an imposing sacred building of exposed concrete. This choice represents a regionally available material without long transport routes.
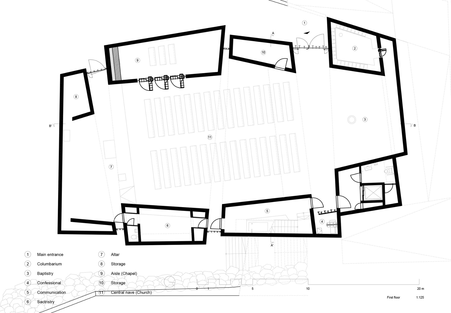
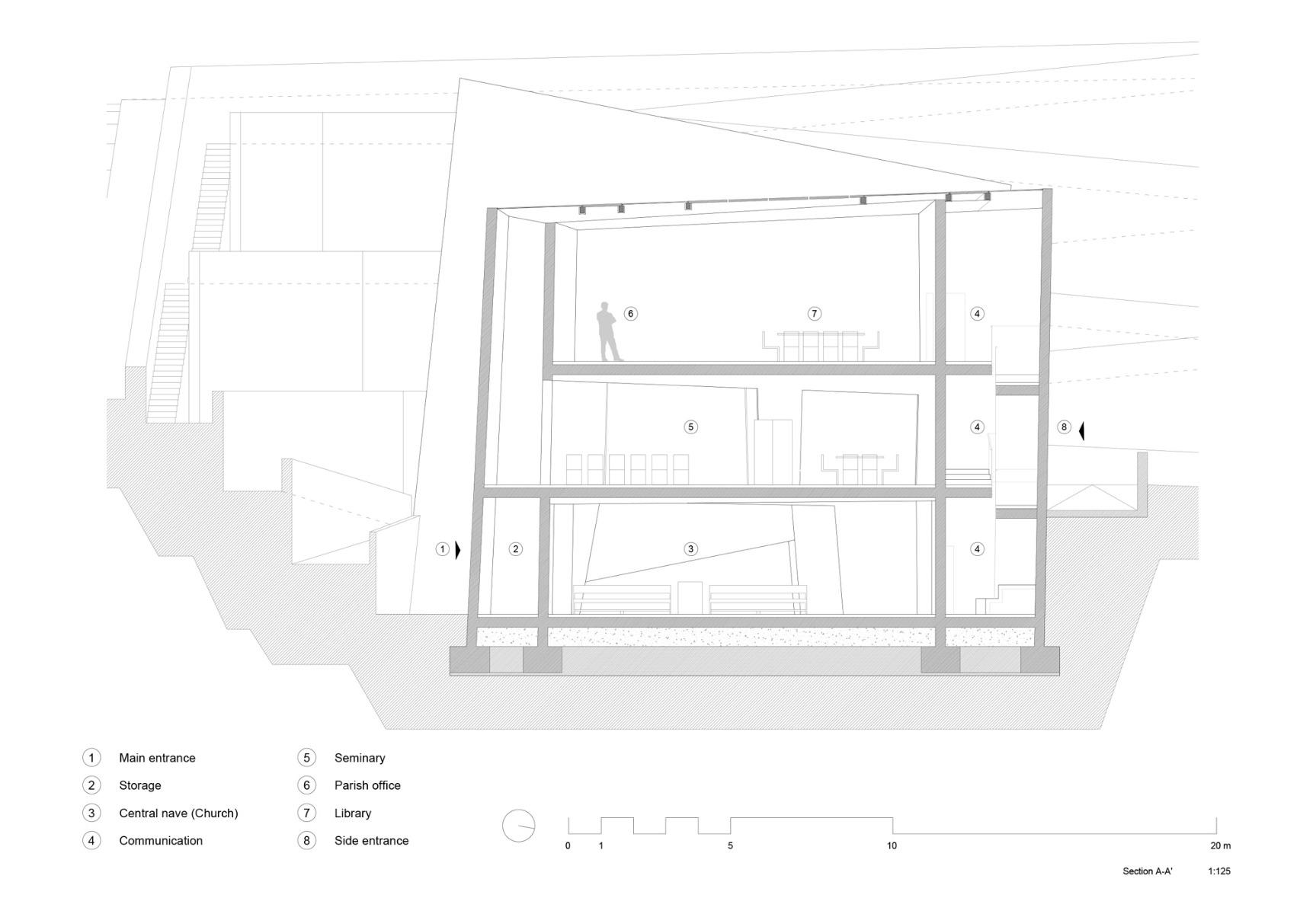
Thanks to its thermal mass, the concrete supports an energy-efficient, low-tech overall approach. The church comprises four volumes that rise like craggy cliffs in the middle of a residential area. Deep caesurae separate the individual bodies that were created over several building phases.


© Simona Rota
Sculptural elements of metal and glass fill the areas between the four blocks of the church. A stylized cross marks the house of worship on its east-facing main facade. Early-morning sunbeams shine in through the cut-outs behind the altar. Depending on the time of day, direct or diffuse light penetrates the other spaces and creates an evocative ambience. Here as well, all the surfaces are characterized by concrete. The architects play with diverse textures to influence the acoustics: apart from the smooth walls of exposed concrete, they have also employed volcanic stone, whose porous finish will absorb undesired sounds.


© Patri Cámpora


© Patri Cámpora
While the main space of the church opens impressively towards the front over its entire height, the rear part of the building is divided into several levels. The upper floors are home to a community centre and library. These complete Tenerife’s Santísimo Redentor parish church and transform it into a public meeting place that is inviting not only to believers, but to all residents of the neighbourhood.
Architecture: Menis Arquitectos
Client: Kirche Santísimo Redentor – Diözese Teneriffa, Stadt La Laguna
Location: C. Volcán Estromboli 3, 38108 La Laguna (ES)
Structural engineering: Juan José Gallardo






















