// Check if the article Layout ?>
Monumentale Einfachheit: Haus mit Giebel von Mia2
Foto: Kurt Hörbst
Das Wohnhaus für eine junge Familie liegt am Rand einer Einfamilienhaussiedlung mit Blick in die Berge der Pyhrn-Priel-Region. Die Bauherrschaft wünschte sich ein Haus, das einerseits mit der Umgebung harmoniert und, andererseits die spektakuläre Aussicht in die Weite erleben lässt.
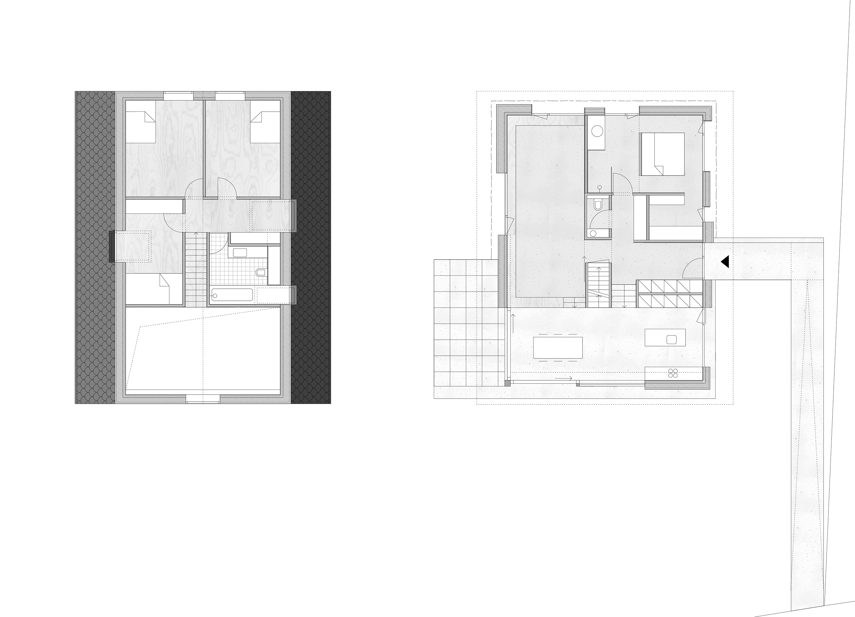
Das Haus mit Giebel von mia2 stellt ein Volumen dar, das aus archetypischen, präzise gesetzten Elementen besteht: Auf einem hohen Betonsockel befindet sich der weitgehende transparente Wohnraum, der von einem monumentalen, schwarz gefärbten Giebeldach gekrönt wird. Die beinahe klassische Dreiteilung in eine Sockel-, eine Mittelzone und den Dachaufbau kontrastiert mit den schlichten Formen des Wohnhauses.
Hangseitig verschwindet das Erdgeschoß des Massivholzhauses etwa einen halben Meter tief im Gelände; dadurch scheint sich der niedrigere Wohnraum mit der umgebenden Natur zu verbinden. Die Küche und der Essraum liegen vier Stufen über dem Wohnbereich; eine Holztreppe führt von hier aus zu den Schlafräumen im Obergeschoss. Die klaren Formen sind mit bewusst reduziertem Repertoire an Materialien ergänzt: Holz, Beton und Glas dominieren das Äußere und Innere des Wohnhauses.












