Handwerkstradition fortgeführt
Museum Bezau von Innauer Matt
Der Anbau von Innauer Matt stellt die ursprünglichen Proportionen des Museums wieder her, die durch den Abriss des Stallgebäudes vor rund 100 Jahren verloren gegangen waren. © Dominic Kummer
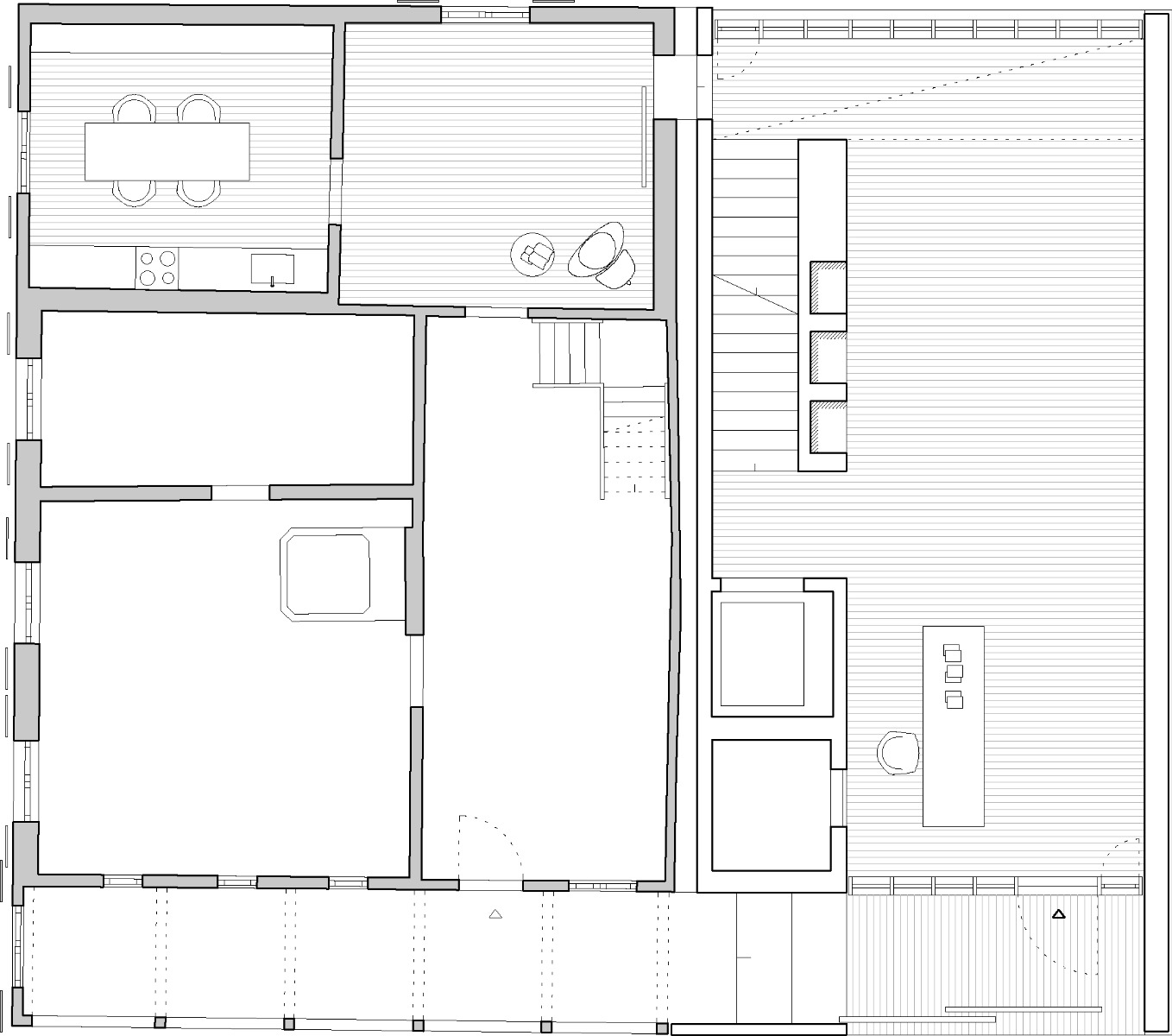
Schon seit über 100 Jahren hat das Heimatmuseum in Bezau seinen Sitz in einem typischen Bregenzerwaldhaus mit schindelverkleideten Fassaden und breit gelagertem Giebel. Der quadratische Kern des Gebäudes entstand bereits im 16. Jahrhundert und wurde in der Folgezeit immer wieder erweitert und aufgestockt. Nun haben Innauer Matt das Gebäude um einen dreigeschossigen Anbau ergänzt, der die Grundfläche des ehemaligen Stalls einnimmt und damit die ursprüngliche Proportion des Hauses wiederherstellt. In dessen Innerem entfaltet sich ein kunstvoll in Szene gesetztes Wechselspiel dunkler und heller Räume mit hohen und niedrigen Decken, in die Licht abwechselnd von oben und von der Seite einfällt.


Das Licht der sechs Dachfenster im ersten Obergeschoss wird durch abgehängte Holzgitter entblendet. © Dominic Kummer


© Dominic Kummer
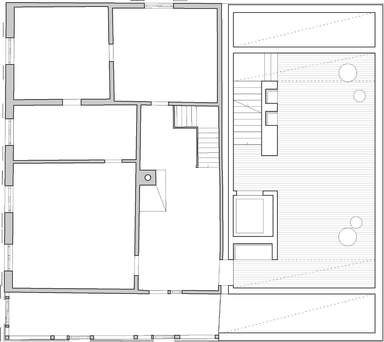
Raumschachtelung auf drei Ebenen
Die vergleichsweise dunklen Stuben und die Flurküche des Altbaus wurden im Original erhalten. Im Anbau liegen nun der Kassenbereich, weitere Ausstellungsräume sowie WC- und Lagerräume. Auch hier hat der zentrale Bereich relativ niedrige Decken, aber dank weiß gekalkter Fichtenholzdecken und –wände einen ganz anderen Charakter als der Altbau. In zwei seitliche, vertikale Raumaufweitungen fällt Licht von oben durch Dachfenster ein und beleuchtet, durch Holzroste blendfrei gefiltert, auch die Ausstellung. Überdies sind die hoch gelegenen, motorisch gesteuerten Dachfenster essenziel für die Durchlüftungs- und Kühlung der Ausstellungsräume. Im obersten Geschoss verbinden zwei hohe, lediglich von den Giebelseiten her belichtete Ausstellungsräume Alt und Neu miteinander.


Die weiß gekalkten Wände und Decken lenken das Tageslicht tief ins Rauminnere. © Dominic Kummer


© Dominic Kummer
Musikalische Raum- und Lichtkomposition
Mit dem Projekt gewannen Innauer Matt Architekten den diesjährigen Velux Architektur-Wettbewerb. Die Jury urteilte: „Durch zeitgemäße Interpretation von traditionellem Handwerk und Materialität verweben Alt und Neu im Museum Bezau miteinander. Während im bestehenden Vorderhaus Licht durch kleine Fenster in die niedrige Stube tritt, eröffnet sich im Hinterhaus eine beinahe musikalische Raum- Lichtkomposition, die man von außen nicht erwarten würde. Abgesehen vom lichtdurchfluteten Foyer wirken die Räume eher introvertiert, doch die Ausstellungs- und Treppenräume werden fast feierlich ins Licht getaucht. Holzlamellen streuen das durch Dachfenster eintretende Tageslicht, helle Holzoberflächen reflektieren und leiten es weiter in den Raum, tauchen das Innere wie durch einen Schleier in angenehm diffuses Licht und lassen Raumschichten miteinander verschmelzen.“
Mehr über die Siegerprojekte sowie ein Interview mit Sven Matt sind in der Wettbewerbsdokumentation zu finden.
Architektur: Innauer Matt Architekten
Bauherr: Museumsverein Bezau
Standort: Ellenbogen 161, Bezau (AT)
Tragwerksplanung: Merz Kley Partner
Bauphysik: Günter Meusburger
Brandschutzplanung: K&M Brandschutztechnik
Ausstellungsgestaltung: Robert Rüf Design










