Ergänzung eines Industriedenkmals
Musikbox am Gaswerk von Zimmererarchitekten
Musikbox am Gaswerk, © Sebastian Schels
Zimmererarchitekten ergänzen zusammen mit Johannes Eck das Industriedenkmal des ehemaligen Gaswerkgeländes in Augsburg um einen Neubau für Band- und Musikproben. Die Planer schließen die, durch den Abbruch des Vorgängerbaus erstandene, Lücke in der Blockrandbebauung mit einem fünfgeschossigen Holzbau.


Fünfgeschossiger Holzbau für Band- und Musikproben, © Sebastian Schels
Das historische Ensemble umschließt zusammen mit dem Neubau einen zentralen Innenhof, wobei der Bau zusammen mit dem Neubau der Theaterwerkstätten eine prägnante Ecke des Blocks formiert. Der Holzbau vermittelt in seiner Höhe durch das Zurückspringen des obersten Geschosses zwischen dem Neuen und dem Bestand. Zudem bewirkt der Rücksprung eine horizontale Wahrnehmung des Baukörpers vom Innenhof.
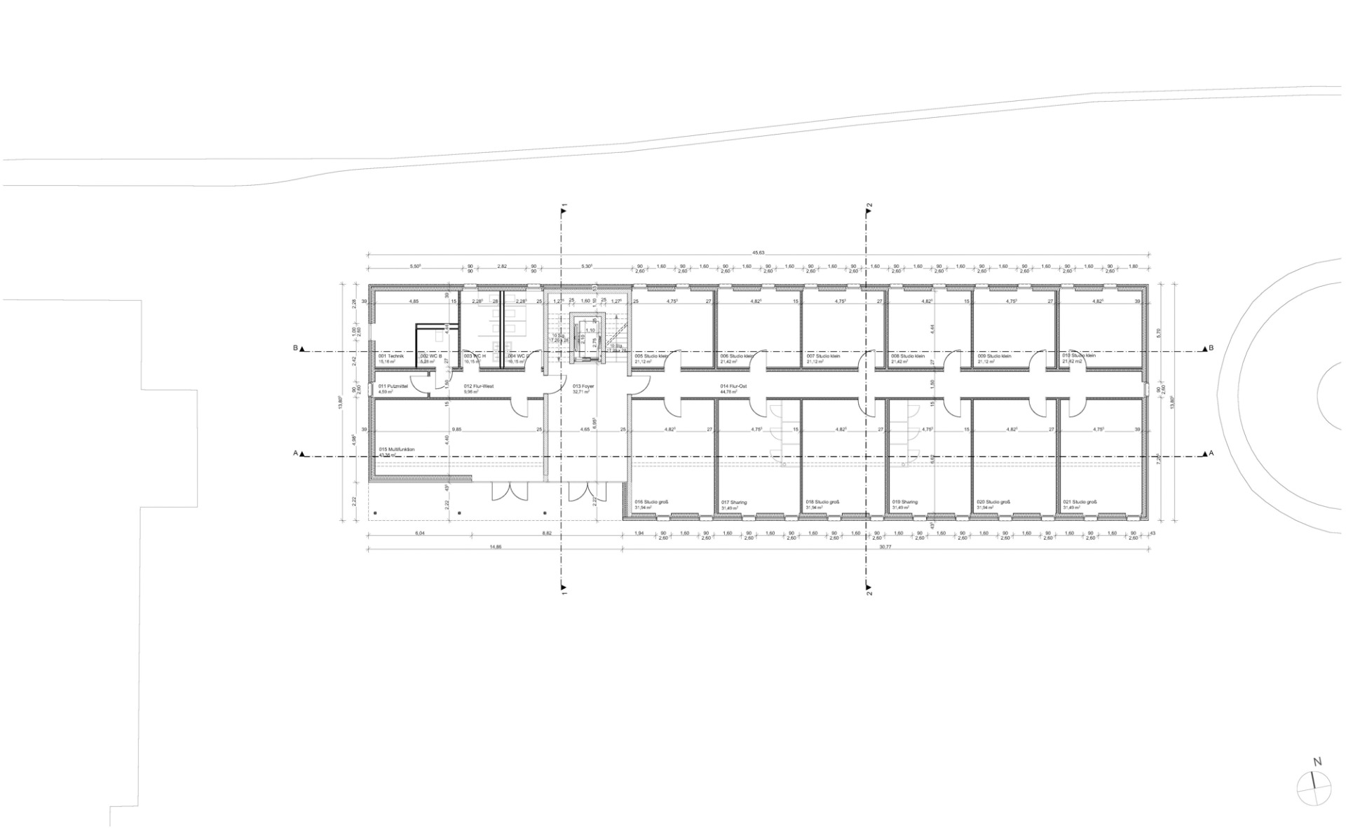
Raumkonzept
Der Eingang in die Musikbox wird durch einen Rücksprung im Erdgeschoss markiert, wodurch eine geschützte Eingangssituation entsteht. Im Inneren gliedert sich an das Foyer sowohl die vertikale Erschließung in Form eines Treppenhauses als auch die horizontale Erschließung, die einen Stichflur bildet. Die Proberäume gliedern sich linear an den natürlich belichteten Flur. Ihre Dimension beruht auf einem Planungsraster für Konstruktion und Ausbau in vorgefertigter Holzbauweise. Ein Multifunktionsraum mit Bezug zur Eingangssituation bietet die Möglichkeit ein erweitertes Foyer für Empfänge zu schaffen.


Treppenhaus, © Sebastian Schels
Die Besonderheit des Holzbaus bildet die Loggia, welche sich von dem ersten Obergeschoss über das zweite Obergeschoss ausdehnt. Der überdachte Außenraum ist dreiseitig trichterförmig zugeschnitten und trägt so, durch die Anmutung eines Lautsprechers, die Innere Funktion des Gebäudes nach außen. Die Loggia findet Verwendung bei Aufführungen und Events sowie als lebendiger Treffpunkt für die Nutzer.


Loggia, © Sebastian Schels


Die Holzfassade besteht aus lasierten Fichtenbrettern. © Sebastian Schels
Die vorgefertigte Holzfassade besteht aus lasierten Nut und Feder Fichtenbrettern. Die schwarze Farbe der Lasur erinnert an die in der Gasproduktion verwendete Kohle und integriert damit die Geschichte des historischen Ensembles in den Neubau. Das hohe Maß an Vorfertigung ermöglichte zudem die schnelle und wirtschaftliche Errichtung in nur neun Monaten.
Architektur: Zimmererarchitekten und Johannes Eck, Pletschacher Projects
Bauherr: Stadtwerke Augsburg
Standort: Augsburg (DE)
















