Mut zur Lücke: Grundschule von sga-studio
Foto: Andre J. Fanthome
Das Grundstück der Taksila Roots Primary School schließt direkt an die Hauptstraße Akbarpurs an. Auf dem nördlichen Teil der Parzelle positioniert, orientiert sich das Gebäude mit seiner Längsseite nach Südwesten und zur Freifläche hin. Hier befinden sich neben dem Eingang außerdem ein Reifenpark und viel Platz zum Spielen und Toben.
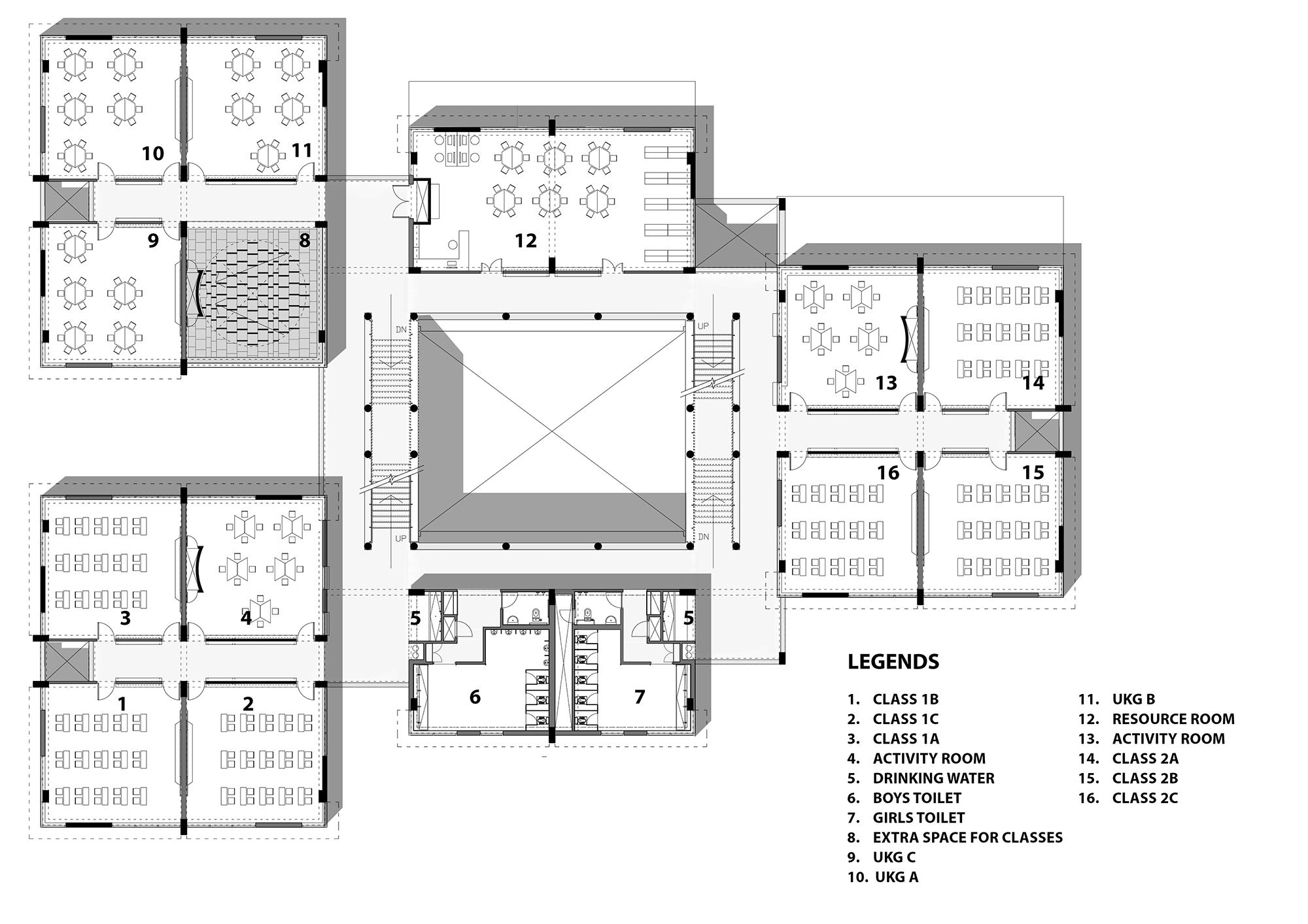
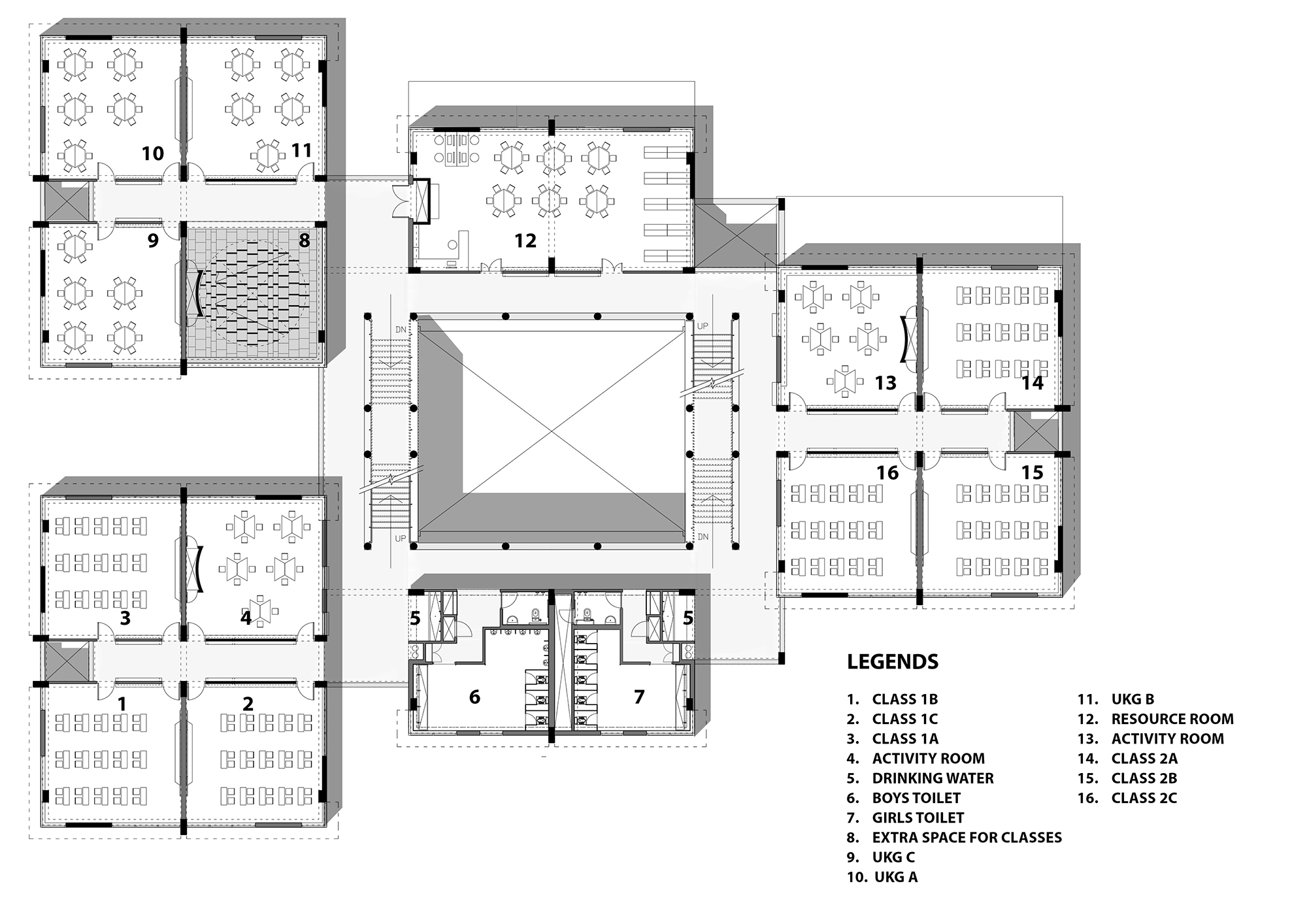
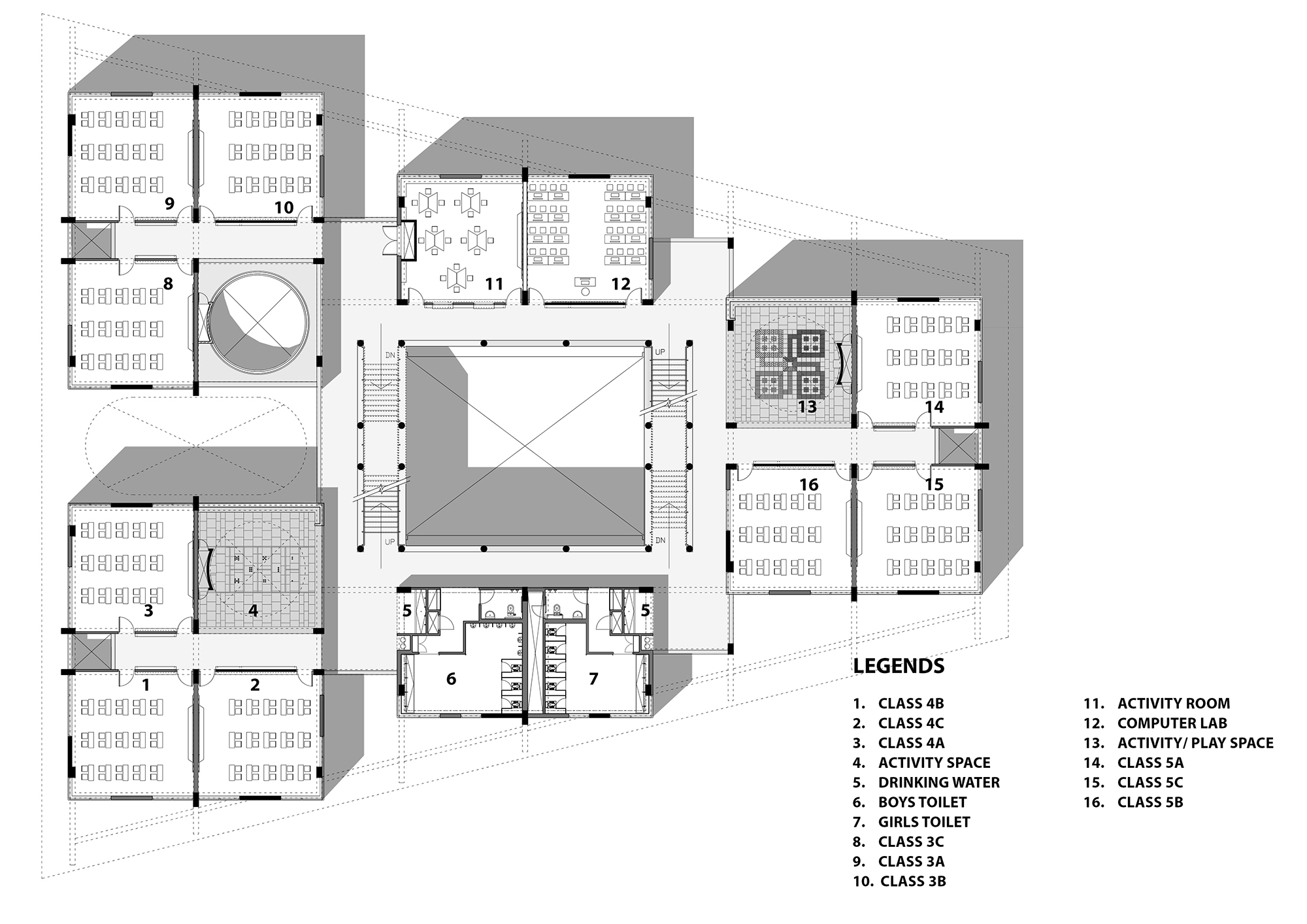
Die 4.500 Quadratmeter große Grundschule setzt sich aus drei clusterförmig angeordneten Trakten zusammen. Diese bestehen wiederum aus jeweils drei Klassenzimmern mit vorgelagerten Spielflächen auf allen drei Ebenen und einem Patio. Ein zentraler Innenhof, den zwei gegenläufige Treppen, sowie zwei kleinere Volumen mit Nasszellen und Computerraum flankieren sowie ein trapezförmiges Dach, fassen das bauliche Trio zusammen. Das begehbare Flachdach wird als weitere Gemeinschaftszone genutzt und weist verschieden geformte Aussparungen auf. Sie belichten die darunter liegenden Atrien und verstärken – gemeinsam mit Auskragungen, Säulen und einer offenen Erschließung – den luftigen Charakter der Schule. Unter dem Motto BaLA – Building as a Learning Aid – machen die Architekten von sga-studio die Taksila Roots Primary School selbst zum Lehrmittel. Bodenmuster und Puzzle-Wände stimulieren die Kinder auf spielerische Weise.
Intelligente Planung, in Form von thermischer Masse und Ausrichtung regeln das Raumklima auf natürliche Weise. Bei der Konstruktion handelt es sich um eine Kombination aus Ziegel und Beton. Fehlende technologische Hilfsmittel bei der Umsetzung machen die am Bau Beteiligten durch Einsatz wett. Das Ergebnis ist ein modernes, qualitativ hochwertiges Schulgebäude.
























