Making Do: Primary School by SGA-Studio
Foto: Andre J. Fanthome
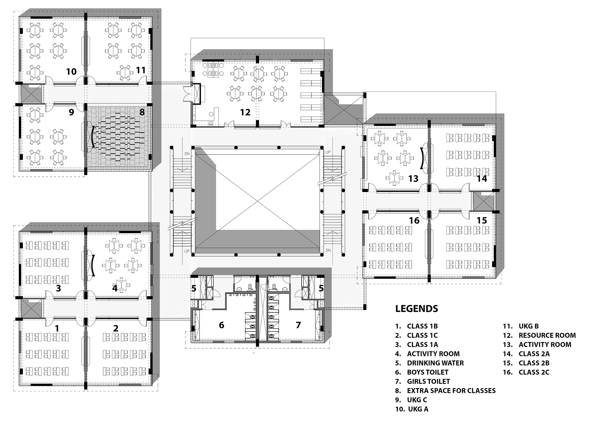
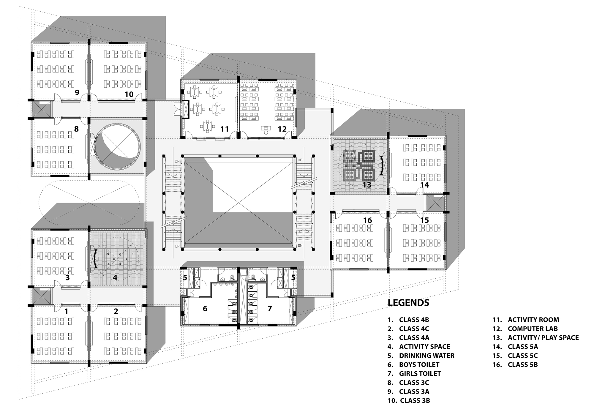
The land devoted to the Taksila Roots Primary School has direct access to Akbarpur’s main road. Situated at the northern part of the lot, the building’s longitudinal side faces southwest and an open area which, apart from the entrance to the school, is home to a tire park and extensive space for playing and frolicking.
The primary school, which measures 4,500 square metres, comprises three tracts arranged as a cluster. In turn, each of these consists of three classrooms with associated play areas plus a patio on every floor. A central courtyard flanked by two opposing stairways, as well as two smaller volumes housing the sanitary facilities and computer rooms, encompass the trio of buildings, which features a trapezoidal roof. The walkable roof is used as a further communal area and is characterized by variously shaped openings. These allow light into the atria below and - in conjunction with overhangs, columns and an open axis - accentuate the school’s airy character. Working by the motto BaLA - Building as a Learning Aid - the architects from SGA-Studio have made the Taksila Roots Primary School a teaching tool in its own right. Floor patterns and puzzles on the walls stimulate the children’s minds in a playful way.
Intelligent planning in the form of thermal mass and orientation offer natural regulation of the indoor climate. The school is made of a combination of bricks and concrete. Hard work on the part of those involved made up for the lack of technological resources in the building process. The result is a modern, high-quality school building.
























