Neue Kunst in Milton Keynes: MK Gallery von 6a Architects
Foto: Johan Dehlin
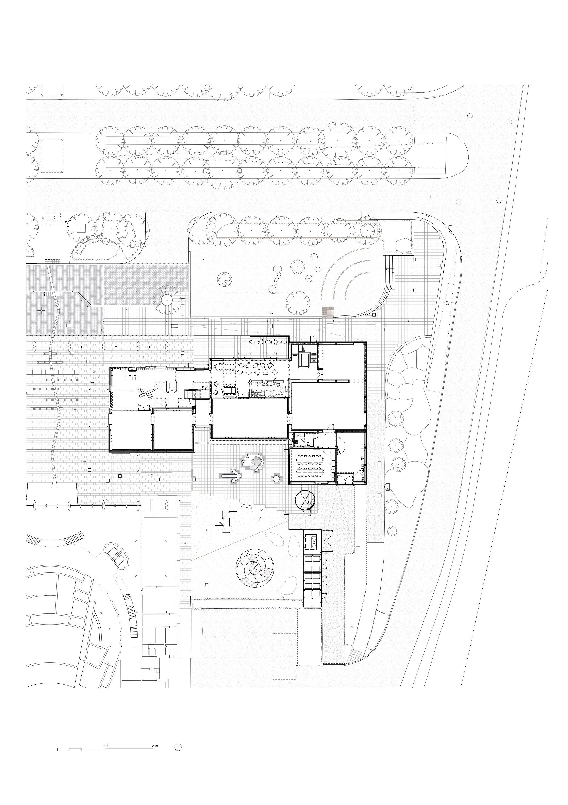
Auf dem einstigen »Spielplatz britischer Modernisten« in Milton Keynes hat 6a Architects die neue »MK Gallery« fertiggestellt. Das neue Gebäude am oberen Ende des Midsummer Boulevard umfasst nun fünf Ausstellungsflächen, ein Auditorium im Obergeschoss und mehrere Lernräume.
Ein neuer rechteckiger Flügel, in gewelltem Edelstahl eingehüllt, erinnert an das strenge Raster, das dem Grundriss der Planstadt zugrunde liegt. Die Gestaltung der polierten Fassade wechselt spielerisch zwischen reflektierenden und opaken Oberflächen, während ein rundes Fenster die umliegenden geometrischen Formen des Campbell Parks umrahmt. Mit ihren Außenflächen knüpft die »MK Gallery« ganz bewusst an die architektonischen Nachbarn an – Anlehnungen an das denkmalgeschützte Shopping Centre und dem Station Square in Milton Keynes sind unverkennbar.
Anthony Spira, Direktor der MK Gallery, sagt: »Wir wollten ein Gebäude erschaffen, in dem sich Kunst und Öffentlichkeit in einer kollektiven Autorschaft über Disziplinen hinweg trifft«. Ikonische Referenzen, als Hommage an die ersten Jahre der Planstadt, zieren den räumlichen Auftakt der »MK Gallery«, die mit der Ausstellung »The Lie of the Land« eröffnet.
Weitere Informationen:
Contractors: Bowmer & Kirkland
Project management and contract administration: Jackson Coles Structural Engineer: Momentum
Environmental Engineer: Max Fordham LLP
Quantity Surveyor: Gleeds
Artists: Gareth Jones & Nils Norman


























