Schauspiel für die ganze Stadt
Nouvelle Comédie de Genève von Fres Architectes
© Yves André
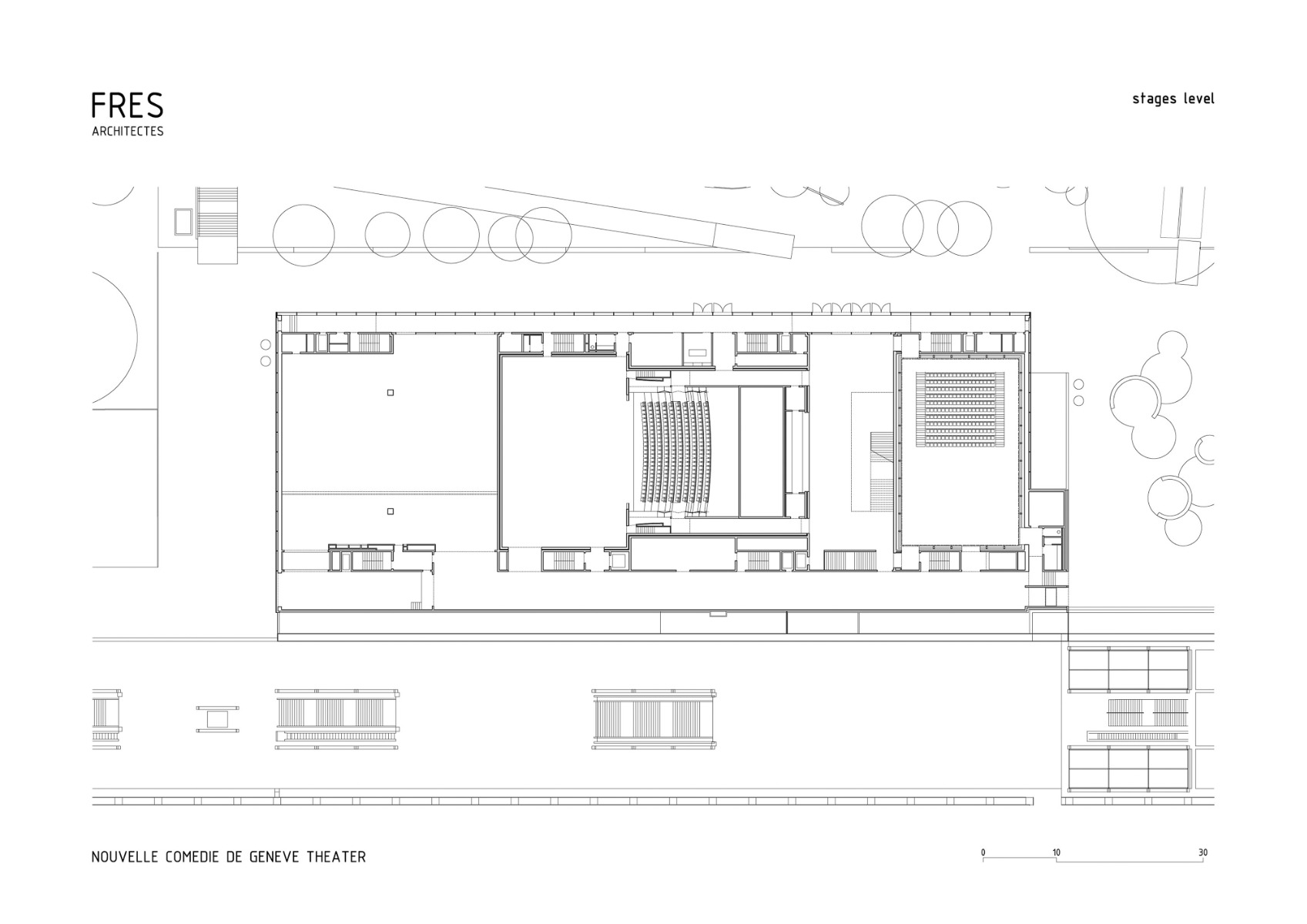
An vielen Orten verschwinden derzeit Bahnhöfe unter der Erde – auch im Genfer Stadtteil Eaux-Vives, wo ein unterirdischer Durchgangsbahnhof den alten Haltepunkt an der Bahnstrecke Genf-Annemasse ersetzt hat. Auf der dadurch freiwerdenden Fläche ließ die Stadt die Esplanade Alice Bailly anlegen und beschloss, hier der Comédie de Genève ein neue Spielstätte zu errichten. Den 2009 ausgelobten Wettbewerb gewannen Fres Architectes mit einem theateruntypischen Gebäuderiegel, der sich an seiner südöstlichen Längsfassade voll verglast zur Esplanade hin öffnet.


© Yves André
Vier Hochpunkte dominieren seine gezackte Silhouette. Die Reihe beginnt im Westen mit dem Werkstattgebäude, das insgesamt 2400 m² Kulissen- und Kostümwerkstätten umfasst. Es folgen der Bühnenturm des großen Saals sowie der Verwaltungstrakt, der dem Zuschauerraum des Saals auf unkonventionelle Weise aufgesattelt wurde, und schließlich, am östlichen Ende, der kleine Saal. Er fasst mit seiner flexiblen Bestuhlung zwischen 250 und 500 Personen.
Dunkle Wandpaneele aus Faserbeton unterstreichen den Black-Box-Charakter dieser Experimentierbühne. Demgegenüber folgt der 500 Zuschauer fassende große Saal der klassischen Theatertypologie mit fester Bühne und festen Rängen. Hier sind Wände und Decken in goldgelbe Lochbleche gehüllt.
Wie jedes Theater ist auch dieses ein Ort des Sehens und Gesehenwerdens. Dafür schufen die Architekten eine Art gebäudeinterne Flaniermeile, die den Neubau unmittelbar hinter der Glasfassade der Länge nach durchmisst. Die internen Erschließungsflure für Personal und Schauspieler verlaufen symmetrisch dazu entlang der Gebäuderückseite; der Transportkorridor für Kulissen und Requisiten befindet sich im Kellergeschoss unter der langgestreckten Eingangshalle.


© Yves André
Die Tag- und Nachtansicht des Theaters unterscheiden sich frappierend voneinander: Tags fällt der Blick durch die im Einheitsmaß von 110 x 270 cm gerasterte Glasfront auf die dahinter liegenden Sichtbetonwände. Nachts ist die große Halle – und damit das ganze Haus – in rotes Licht getaucht. Die Stirnseiten der Baukörper sind in Aluminium-Lochblech gehüllt, was sie zwar homogen erscheinen lässt, aber die dahinter liegenden Räume dennoch mit natürlichem Licht versorgt. Vor den Bürofenstern erlauben Klappläden aus Alu-Lochblech auch den direkten Blick ins Freie.
BLINDTEXT Mehr dazu in Detail 3.2022 und in unserer Datenbank Detail Inspiration.


© Yves André


© Yves André
Architektur: FRES Architectes
Bauherr: Stadt Genf
Standort: Esplanade Alice Bailly 1, Genève (CH)
Tragwerksplanung: T Ingénierie, Batiserf, Brasey
Szenografie: Changement a Vue
Akustik: Kahle Acoustics
Fassadenplanung: Emmer Pfenninger & Partner
Lichtplanung: 8‘18‘
Generalunternehmer: Maulini
Bruttogrundfläche: 16 060 m²
Baukosten: 65 Mio. CHF
































