Theatre for the entire city
Nouvelle Comédie de Genève by Fres Architectes
© Yves André
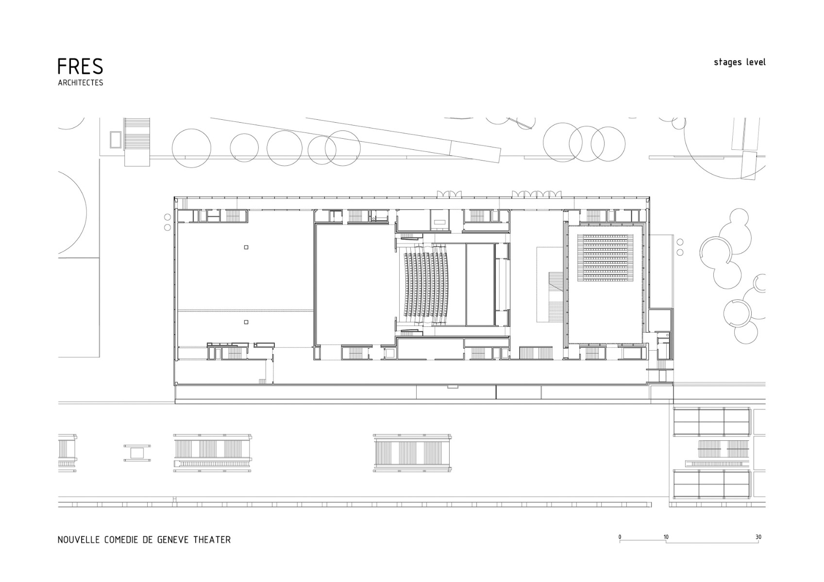
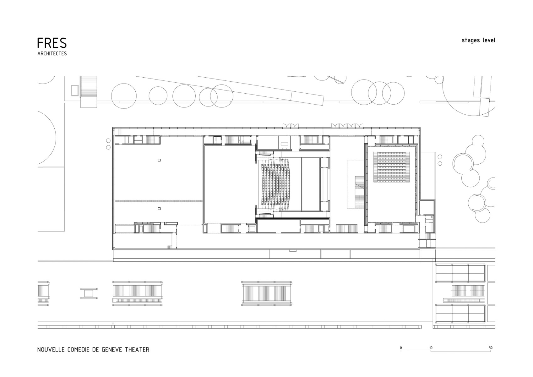
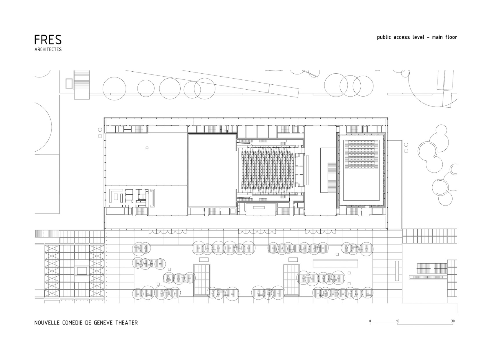
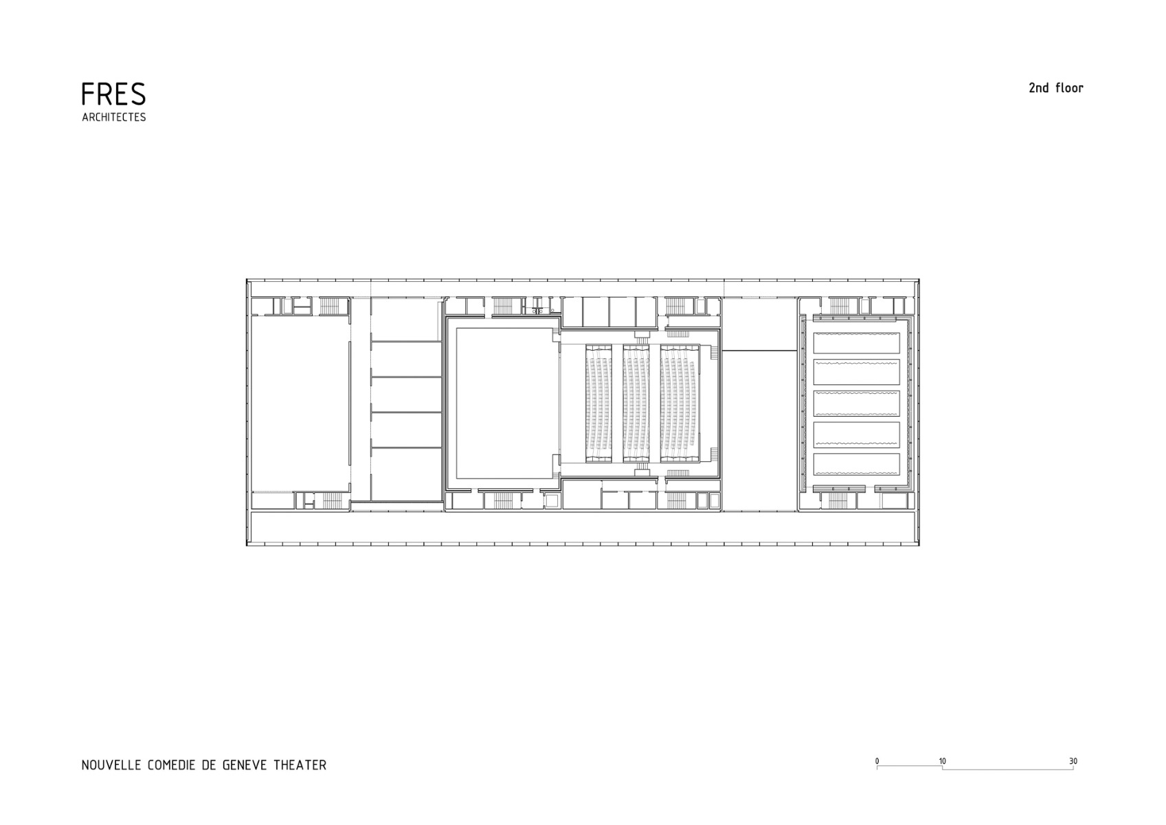
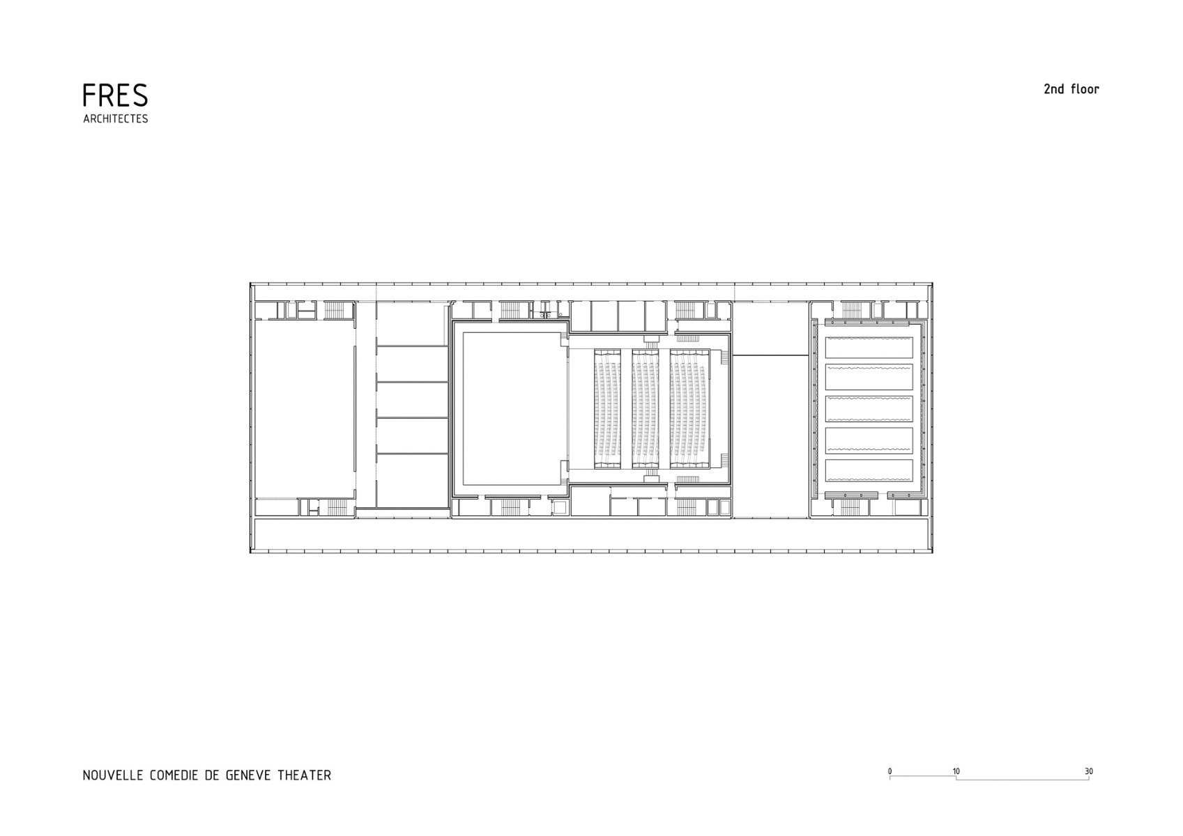
Nowadays, in many places railway stations are disappearing below ground. The same can be said for Geneva's Eaux-Vives district, where a subterranean through station has replaced the old stop on the Geneva-Annemasse line. On the spot freed up by this change, the city created the Alice Bailly Esplanade and decided to build a new theatre for the Comédie de Genève. Fres Architectes won the design competition, which had been announced in 2009, with a rather atypical theatre structure whose southeast longitudinal façade is fully glazed and opens onto the esplanade. Four highlights dominate the silhouette. The suite begins to the west with the workshop building, which encompasses 2400 m² of scenery and costume workshops.


© Yves André
Next come the fly tower of the large auditorium and the administrative wing, which has unconventionally been positioned above the seating area of the large auditorium, and finally, at the east end, the small auditorium. This space features flexible seating and can hold from 250 to 500 spectators. Dark wall panels of fibre-reinforced concrete accentuate the black-box character of this experimental stage. Opposite this area there is the large auditorium, which has a classic theatre typology with a fixed stage and seating rows; it holds 500 spectators. Here, the walls and ceilings have been clad with golden-yellow perforated metal sheeting.
Like any theatre, this is a place to see and be seen. To this end, the architects created a sort of interior promenade that extends the length of the building directly behind the glass façade. The interior access corridors for staff and performers run symmetrically to the promenade along the rear side of the building, while the transport corridor for scenery and props is located in the cellar beneath the long lobby.


© Yves André
The diurnal and nocturnal appearances of the theatre differ significantly. By day, the view reaches through the glass front, which has a uniform grid of 110 x 270 cm, to the exposed-concrete wall behind it. By night, the large auditorium – and thus the whole building – is bathed in red light. The front sides of the structures are covered in perforated aluminum sheeting, which gives them a homogeneous look while allowing light into the spaces located behind it. On the office windows, folding shutters of perforated aluminum sheeting allow direct views of the outdoors.
BLINDTEXT Mehr dazu in Detail 3.2022 und in unserer Datenbank Detail Inspiration.


© Yves André


© Yves André
Architecture: FRES Architectes
Client: Stadt Genf
Location: Esplanade Alice Bailly 1, Genève (CH)
Structural engineering: T Ingénierie, Batiserf, Brasey
Scenography: Changement a Vue
Acoustics: Kahle Acoustics
Facade planning: Emmer Pfenninger & Partner
Lighting design: 8'18
General contractor: Maulini
Gross floor area: 16 060 m²
Construction costs: CHF 65 million
































