Für Tageslicht und Frischluft
Oberlichtbänder für Bildungszentrum
In den sheddachähnlichen Aufbauten auf dem Dach des Bildungszentrums Lans sorgen Velux Modular Skylights für Tageslicht in den Atrien. © W9 Studios/Velux Commercial
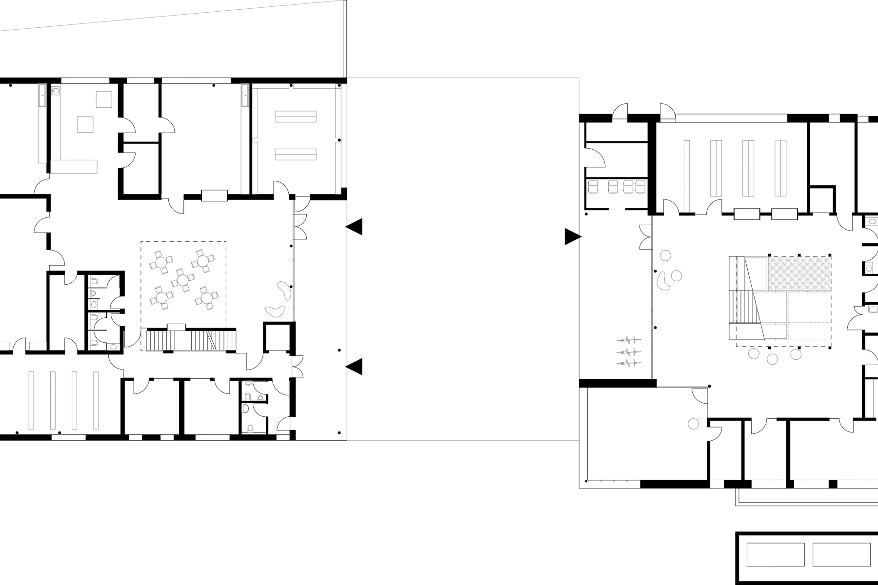
Dachaufbauten mit Velux Modular Skylights bringen Tageslicht in die Atrien des Bildungszentrum Lans. Die von Schwärzler Architekten in der kleinen Gemeinde bei Innsbruck geplante Einrichtung besteht aus zwei kompakten, zweigeschossigen Baukörpern an einem Hang im Zentrum des Dorfes. Sie beherbergen ein sogenanntes Kinderhaus mit Kindergarten und Kinderkrippe sowie ein Schulhaus mit Grund- und Musikschule, Bibliothek, Räumen für die Nachmittagsbetreuung und – unterirdisch – einer Multifunktionshalle.


Das Kinderhaus orientiert sich zum Hang hin, das Schulhaus liegt näher am Dorf. © W9 Studios/Velux Commercial
Rund ums Dach
Um das hybride Tragwerk aus Beton und Stahl legt sich bei beiden Bauten eine Hülle in Holzelementbauweise. Bekleidet sind die Gebäude mit einer Holzlattung, die beim Kinderhaus horizontal und beim Schulhaus vertikal ausgeführt wurde. Die Dächer sind begrünt und über den zentralen Atrien mit je drei sheddachähnlichen Aufsätzen bestückt.
In ihren nach Norden orientierten Öffnungen sitzen die Oberlichtbänder mit dem Produkt von Velux Commercial. Durch die Ausrichtung fällt homogenes Tageslicht in die durchgesteckten zentralen Bereiche der Bauten. Auf den nach Süden orientierten Pultdächern sorgen Photovoltaikmodule für solare Energiegewinne, die etwa zum Betrieb der Wärmepumpe und der Lüftungsanlage mit Wärmerückgewinnung verwendet werden können.


Blick in das Atrium des Schulhauses: Durch den Luftraum gelangt das Tageslicht bis ins Erdgeschoss des Gebäudes. © W9 Studios/Velux Commercial
Lernen und Spielen
Die sechs Oberlichtbänder bestehen aus insgesamt 75 modularen Elementen. Diese sind in einem Winkel von 65 Grad angeordnet. Die Verglasung weist einen Ug-Wert 0,7 W/(m2K) auf. Zwölf der Modular Skylights lassen sich öffnen, was eine natürliche Querlüftung ermöglicht. Die darunter liegenden Atrien sind die zentralen Zonen, um die sich alle Nutzungen gruppieren. Sie sorgen für Offenheit und Orientierung und bieten gleichzeitig Raum zur Entfaltung. Im Kindergarten ist der Bereich rund um die Haupttreppe als innenliegender Spielplatz mit Rutsche und Kletterrampe gestaltet, im Schulhaus bietet die Gebäudemitte Raum für das gemeinsame Mittagessen, freies Arbeiten und Gruppenaktivitäten.


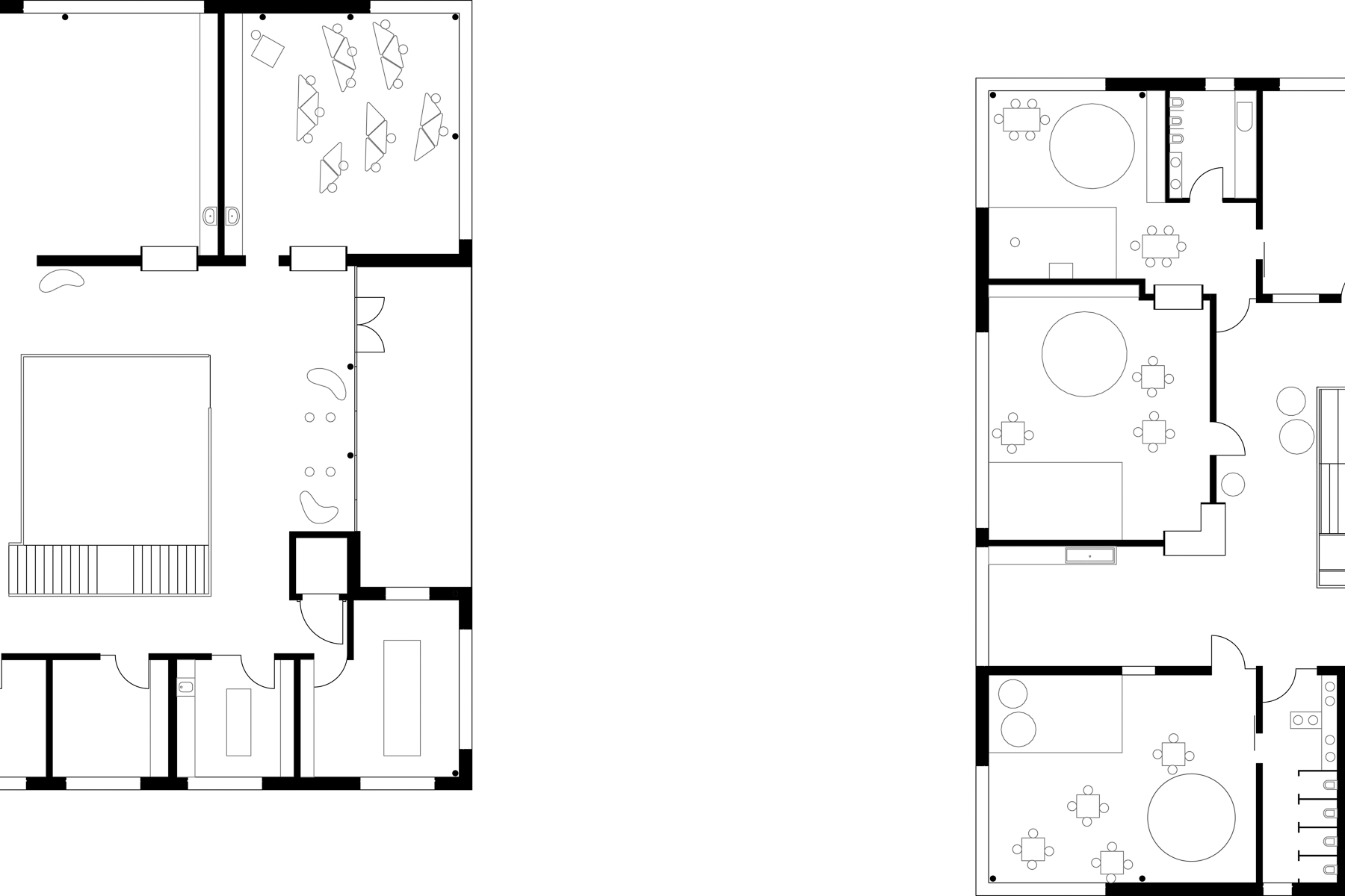
Als Marktplätze bezeichnen die Architekten die Galeriebereiche im Kinderhaus (links) und im Schulhaus (rechts).
© W9 Studios/Velux Commercial


Als Marktplätze bezeichnen die Architekten die Galeriebereiche im Kinderhaus (links) und im Schulhaus (rechts).
© W9 Studios/Velux Commercial
Simulation als Grundlage
Bereits im Vorfeld hatte Velux Commercial anhand des digitalen 3D-Modells eine Tageslichtevaluierung durchgeführt. Dabei ermittelte das Unternehmen unter anderem die Auswirkung verschiedener Verglasungen mit unterschiedlichen Lichttransmissionsgraden. Laut dem Unternehmen überzeugte letztlich diese Simulation den Gemeinderat von Lans vom Einsatz der Lichtbänder. CHI
Architektur: Schwärzler Architekten
Bauherr: Gemeinde Lans
Standort: Scheibeweg 277, AU-6071 Lans
Kategorie: Dächer
Hersteller: Velux Commercial
Produkt: Velux Modular Skylights











