// Check if the article Layout ?>
Offene Vielfalt: Post am Rochus von Schenker Salvi Weber und feld 72
Foto: Lukas Schaller
Neben Arbeitsplätzen für rund 1000 Mitarbeiter forderte der bereits 2013 ausgelobte Wettbewerb zusätzliche Dienstleistungs- und Handelsflächen. Der siegreiche gemeinsame Entwurf von Schenker Salvi Weber mit feld 72 Architekten entwickelt eine städtebauliche Gesamtkomposition, die den Dialog mit der unmittelbaren Umgebung sucht.
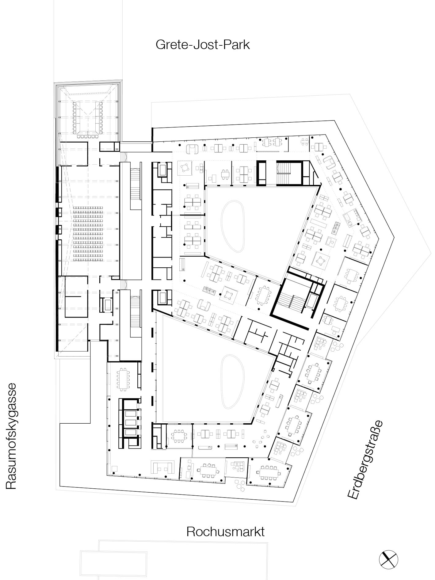
Das geschäftige Treiben auf dem Rochusmarkt setzt sich im Gebäude in der Shoppingmall fort. Dadurch entsteht eine Verbindung zum rückseitig liegenden Grete-Jost-Park. Beidseits der Passage befinden sich insgesamt rund 5000 m² Ladenflächen. Die Mall ist als dreigeschossiger, zentral belichteter und großzügiger Galerieraum konzipiert. Die einheitlich gestalteten Auslagen sind über zwei großzügig dimensionierte ovale Oberlichter natürlich beleuchtet. Streifenförmiges Kunstlicht und dunkle Holzhandläufe akzentuieren die Brüstungen der ovalen Galerien und Oberlichter. Ein heller Terrazzobelag und eine weiße und geschwungene Lichtdecke ergänzen die eleganten Glasportalfronten.
Ein zweigeschossiges Foyer an der Ecke zur Rasumofskygasse bildet das Entrée in die Unternehmenszentrale. Zu den Büroräumen in den oberen Etagen führt ein lichtdurchflutetes, über alle Geschosse reichendes Atrium: Der imposante Luftraum bildet eine klar ablesbare Fuge zum denkmalgeschützten Bestandsgebäude, fungiert als Verteiler und informeller Kommunikationsraum innerhalb des Gebäudes und erschließt einen Veranstaltungsraum für 200 Personen im siebten Obergeschoss.
Flexibilität und Austausch standen an erster Stelle bei der Konzeption der Arbeitsplätze. Ein Desk-Sharing-System lässt den Mitarbeitern viel Freiraum bei der Gestaltung ihres Arbeitsumfelds. Entlang der Fassaden bilden durchschnittlich je vier bis sechs höhenverstellbare Tische zusammenhängende Arbeitsinseln; im Wechsel mit eigens entworfenen Möbelsegmenten und zwischengeschalteten Besprechungsnischen entstehen so überschaubare räumliche Einheiten. Verglaste Boxen ermöglichen konzentriertes Arbeiten für ein bis vier Personen.
Das geschäftige Treiben auf dem Rochusmarkt setzt sich im Gebäude in der Shoppingmall fort. Dadurch entsteht eine Verbindung zum rückseitig liegenden Grete-Jost-Park. Beidseits der Passage befinden sich insgesamt rund 5000 m² Ladenflächen. Die Mall ist als dreigeschossiger, zentral belichteter und großzügiger Galerieraum konzipiert. Die einheitlich gestalteten Auslagen sind über zwei großzügig dimensionierte ovale Oberlichter natürlich beleuchtet. Streifenförmiges Kunstlicht und dunkle Holzhandläufe akzentuieren die Brüstungen der ovalen Galerien und Oberlichter. Ein heller Terrazzobelag und eine weiße und geschwungene Lichtdecke ergänzen die eleganten Glasportalfronten.
Ein zweigeschossiges Foyer an der Ecke zur Rasumofskygasse bildet das Entrée in die Unternehmenszentrale. Zu den Büroräumen in den oberen Etagen führt ein lichtdurchflutetes, über alle Geschosse reichendes Atrium: Der imposante Luftraum bildet eine klar ablesbare Fuge zum denkmalgeschützten Bestandsgebäude, fungiert als Verteiler und informeller Kommunikationsraum innerhalb des Gebäudes und erschließt einen Veranstaltungsraum für 200 Personen im siebten Obergeschoss.
Flexibilität und Austausch standen an erster Stelle bei der Konzeption der Arbeitsplätze. Ein Desk-Sharing-System lässt den Mitarbeitern viel Freiraum bei der Gestaltung ihres Arbeitsumfelds. Entlang der Fassaden bilden durchschnittlich je vier bis sechs höhenverstellbare Tische zusammenhängende Arbeitsinseln; im Wechsel mit eigens entworfenen Möbelsegmenten und zwischengeschalteten Besprechungsnischen entstehen so überschaubare räumliche Einheiten. Verglaste Boxen ermöglichen konzentriertes Arbeiten für ein bis vier Personen.






















