Roh und unverkleidet
Opus 5 realisieren Kulturzentrum bei Paris
Kulturzentrum in Chessy, © Luc Boegly
Bei der Umwandlung eines historischen Bauernhofs in ein Kulturzentrum östlich von Paris, finden Opus 5 Architectes eine neue Verwendung für die Steine des abgebrochenen Bestandsgebäudes. Das ehemalige Landgut Tournelles liegt in der kleinen französischen Gemeinde Chessy unmittelbar neben dem berühmten Disneyland vor den Toren der Metropole.


Mit ihren massiven Außenwänden aus Bruchstein schirmen die einstigen Scheunen den Komplex von der Straße ab. © Luc Boegly
Die Grundidee des Projekts bestand darin, auch nach der Revitalisierung an die landwirtschaftliche Vergangenheit des Ensembles zu erinnern und somit den Brückenschlag zwischen Alt und Neu zu schaffen. Um dies zu erreichen, wird der mehrteilige Wirtschaftshof bestmöglich erhalten. Mit ihren massiven Außenwänden aus Bruchstein schirmen die einstigen Scheunen den Komplex von der Straße ab.
Neue Fassade aus Abbruchmaterialien
In nordwestlicher und südöstlicher Richtung entstehen zwei neue Trakte aus Beton. Gemeinsam mit den Bestandbauten fassen sie den geschützten Hof im Zentrum des historischen Ensembles neu ein. Für die Fassaden der beiden Neubauten verwendet man das Abbruchmaterial der alten Gebäude und füllt die recycelten Steine und Dachziegel in Gabionen. So erhält man den Charakter der Ferme Tournelles, verleiht dem Komplex eine einzigartige Optik und setzt zugleich auf eine ökologisch nachhaltige Lösung.


Für die Fassaden der beiden Neubauten verwendet man das Abbruchmaterial der alten Gebäude und füllt die recycelten Steine und Dachziegel in Gabionen. © Luc Boegly
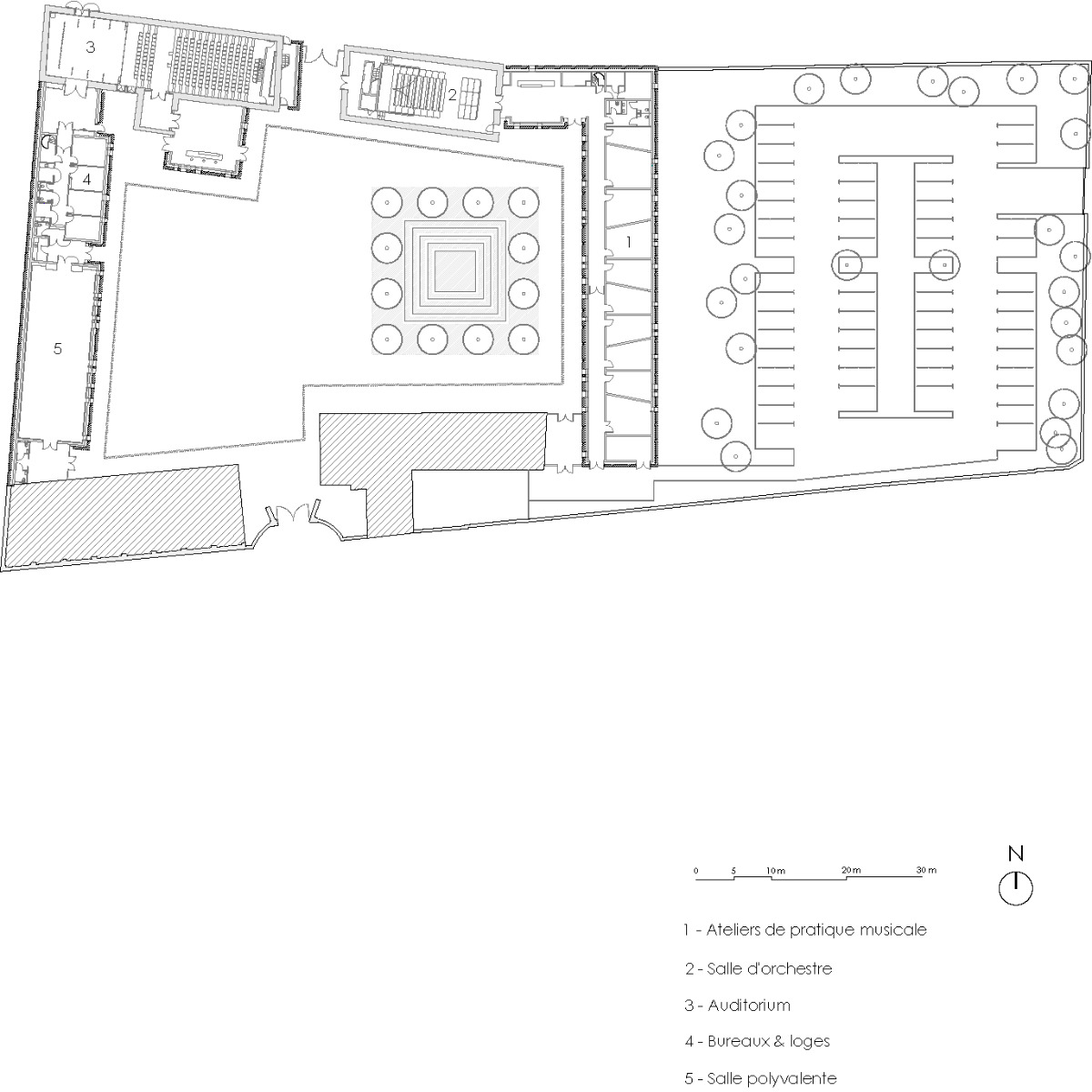
Unterbrochen werden die Wände der Neubauten durch unregelmäßig positionierte, kreisförmige Öffnungen. Die Außenräume sind ebenfalls mit Gabionen gestaltet: Im Innenhof bilden sie die Sitzstufen eines in den Boden integrierten Amphitheaters, das für kulturelle Veranstaltungen unter freiem Himmel genutzt wird und gleichzeitig als Versickerungsfläche dient. Ein rundum laufender, gepflasterter Weg verbindet sämtliche Gebäudeteile.


Amphitheater im Innenhof, © Luc Boegly


Auditorium, © Luc Boegly
Rohe Materialien im Innenraum
Während die hohen, revitalisierten Trakte die Hauptbereiche des Kulturzentrums sowie das Auditorium und den Orchestersaal aufnehmen, sind in den zwei flacheren Seitenflügeln die Proberäume der Musikschule, die Büros und die Mehrzweckhalle untergebracht. Wie auch an den Ansichtenden Fassaden bleiben die Materialien im Inneren Innenraum roh und unverkleidet. Neben den organischen Steinmauern prägen die Räume Sichtbeton- bzw. Estrichoberflächen und die Holzfaserplatten der Akustikdecken.
Architektur: OPUS 5 Architectes
Bauherr: Jeanette Cutlack, Croft 3
Standort: 77700 Chessy (FR)
Tragwerksplanung: Batiserf Ingénierie
Akustik: Impédance















