Maximal variabel
Pavilion Z Exhibition Centre von Studio A8000
Pavilion Z Exhibition Centre, © Ondrej Bouska
Multifunktionalität war das zentrale Thema für die Wiederbelebung des České Budějovice Pavilion Z Exhibition Centre. Der Entwurf für dessen Umbau und Erweiterung von Studio A8000 basiert auf der ursprünglichen Form des Gebäudes, das vollkommen entkernt wurde. Nur die Stahlkonstruktion blieb erhalten.


Der Pavillon dient als multifunktionaler Veranstaltungsort. © Ondrej Bouska
Multifuntkionaler Veranstaltungsort
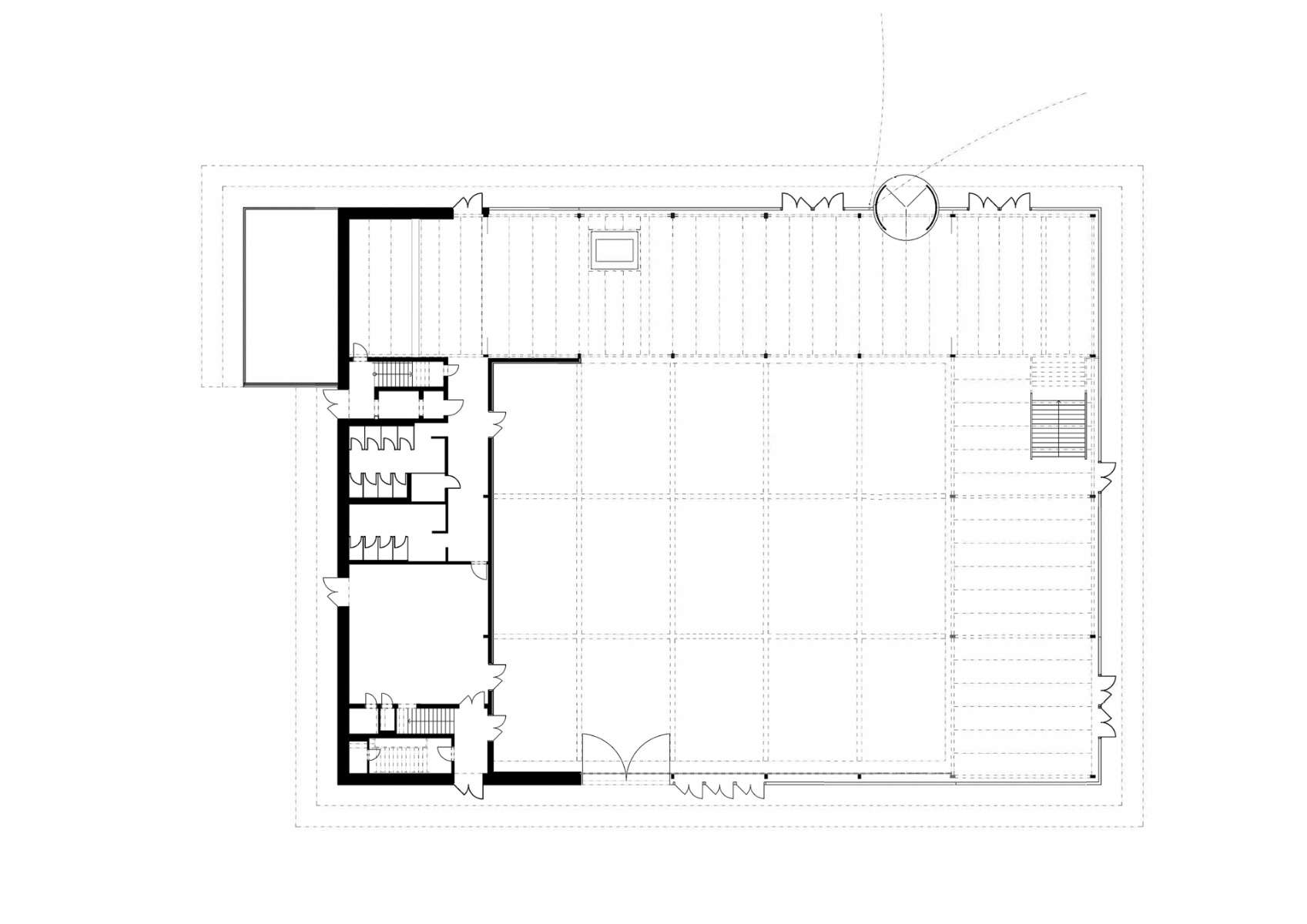
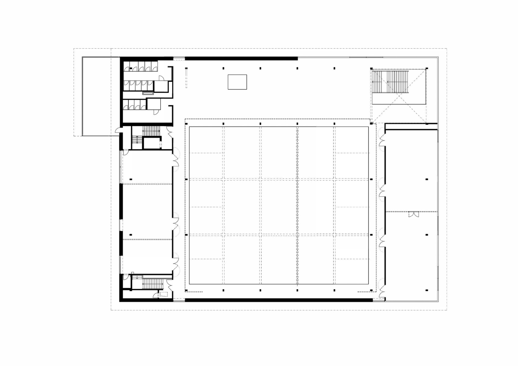
Studio A8000 wollte einen multifunktionalen und maximal variablen Veranstaltungsort schaffen. Der Pavillon sollte für verschiedene Veranstaltungen wie Messen, Ausstellungen, Kongresse, aber auch Bälle und Konzerte genutzt werden können. Die Eingangshalle und der Hauptveranstaltungsraum mit seinen 850 Sitz- oder 1500 Stehplätzen gehen in das Obergeschoss über, wo sich zwei weitere Hallen befinden, die variabel unterteilt werden können.
Flexibler Innenraum
Das Innere ist offen und flexibel gestaltet. Um so viel Raum wie möglich zu schaffen, wurden alle Nebeneinrichtungen im äußersten Flügel konzentriert, so dass der Rest des Gebäudes frei bleibt. So kann der Pavillon durch ein System von Vorhängen verändert werden, die vom Ausstellungs- oder Galerieraum zum geschlossenen Konzertsaal führen. Wenn die Vorhänge geöffnet sind, strömt das umgebende Grün direkt in das Innere des Saals, wenn sie geschlossen sind, entsteht eine perfekte Blackbox. Man befindet sich gleichzeitig im Inneren und im Grünen.


Das Innere des Pavillons ist offen und flexibel gestaltet. © Ondrej Bouska
Gestaltungsprinzip
Der Pavillon öffnet sich vor allem in seinem östlichen Teil zum Fluss und zur Stadt hin. Das äußere Erscheinungsbild wirkt sowohl massiv wie transparent durch die Verwendung von Metall und profiliertem Glas. Dieses Gestaltungsprinzip bestimmt auch den Innenraum, wo im Gegensatz zum fast minimalistischen Äußeren ein eher technischer Ansatz verfolgt wurde. So begleiten den Besucher verschiedene technische Ausstattungssysteme, von den massiven HVAC-Kanälen bis zu den roten Rohrleitungen der Brandmeldeanlage, durch den Innenraum. Die kühle Atmosphäre des Innenraums wird durch das weiche Licht der Profilglaswand gemildert, die schemenhaft die Ereignisse im Außenbereich abbildet.


© Ondrej Bouska


© Ondrej Bouska
Durchdachte Bodenbeläge
Multifunktionalität ist in allen Teilen des Projekts verankert, auch durch die Verwendung von minimalistischen polierten Betonböden, wie sie normalerweise in Logistikzentren und Produktionshallen zu finden sind. Damit sind die Ausstellungsflächen sowohl für Traktoren während der Landwirtschaftsausstellung geeignet, und stören andererseits nicht bei einer festlichen Veranstaltung oder einem Konzert der Südböhmischen Philharmonie.
Architektur: A 8000
Bauherr: Exhibition Centre České Budějovice
Standort: České Budějovice (CZ)
Bauunternehmen: OHL ZS, Strob & Spol, Statikon Solutions
























