Wassersport am See
Pavillon aus Holz von Atelier Pulver Architectes
Wassersportzentrum in Mont-Vully, © Thomas Telley
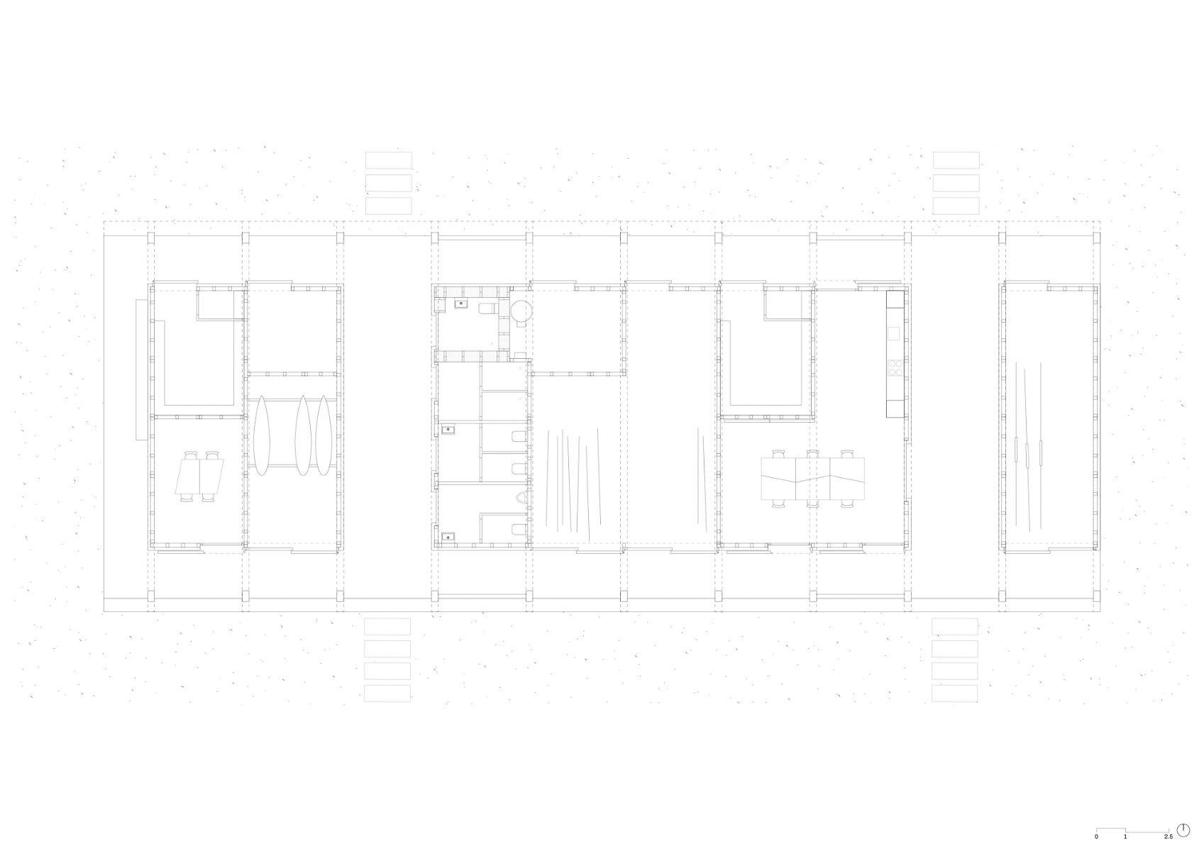
Das Wassersportzentrum in Mont-Vully vom Schweizer Atelier Pulver Architectes ist ein kompakter Neubau in Holzbauweise. Am Ufer des Murtensees integriert sich das Gebäude unauffällig in die kleine Gemeinde westlich von Bern. Es beinhaltet ein Animationszentrum für diverse Wassersportaktivitäten, die neuen Räumlichkeiten der örtlichen Rettungsgesellschaft sowie Umkleiden und Sanitäranlagen.


Das Wassersportzentrum ist ein kompakter Neubau in Holzbauweise. © Thomas Telley
Holzbau
Bei der Umsetzung des pavillonartigen Baus entscheiden sich die Architekten für eine leichte Struktur aus Holz auf einer Beton-Bodenplatte. Sie beruht auf zwei autonomen Hauptelementen: drei raumbildenden Volumen und einem gemeinsamen Dach. Dieses System sorgt für die notwendige Flexibilität und ermöglicht künftige Nutzungsänderungen.
Die Gebäudehülle setzt sich aus elf Gelenkrahmen zusammen, die als Unterkonstruktion für die transluzente Dachhaut dienen. Darunter befinden sich die einzelnen Räume. Sie sind vor der Witterung geschützt, komplett vom Tragwerk entkoppelt und verfügen großteils über raumhohe Schiebetüren.


Der Pavillon besitzt eine transluzente Dachhaut. © Thomas Telley
Zwischen dem größeren Bereich in der Mitte und den beiden flankierenden kleineren Volumen ergeben sich zwei großzügige Gänge, die das Wassersportzentrum durchqueren und mit Blick aufs Wasser zu Aufenthaltsorten und Treffpunkten werden. Auch rundherum spannen die einzelnen Träger und Räume geschützte Wege auf.


© Thomas Telley


© Thomas Telley
Kostengünstig Bauen
Die Materialwahl vereint die Anforderungen an eine schnelle und kosteneffiziente Umsetzung mit der nötigen Nachhaltigkeit. Neben der Tragstruktur sind auch die übrigen Bestandteile des Pavillons in Holz ausgeführt. Alle Elemente wurden vorgefertigt und sorgen mit ihren unbehandelten Oberflächen für eine natürliche Optik. So kommt die lokal verfügbare helle Fichte im gesamten Gebäude auf unterschiedliche Arten zum Einsatz: zum einen als Träger und für Verkleidungen, zum anderen in Form von Dreischicht- und Brettschichtholz-Platten in den Innenräumen. Durch das transluzente Dach fällt jede Menge Tageslicht in das Wassersportzentrum und minimiert den Bedarf an künstlicher Beleuchtung.
Architektur: Atelier Pulver Architectes
Standort: Mont-Vully (CH)


















