Gestapelte Wohnmodule
Vorgefertigte Holzhäuser in Amsterdam
Juf Nienke Apartments in Amsterdam, © Stijn Poelstra
Die neuen Juf Nienke Apartments von Rau und Search bilden die Eingangssituation zum Centrumeiland in Amsterdam. Als modularer Holzbau präsentiert sich das Wohngebäude kreislauforientiert, naturverbunden und energiepositiv.


Eingang zum Centrumeiland, © Stijn Poelstra
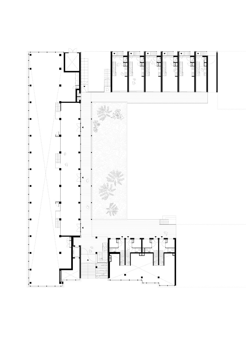
Auf 15 m Höhe erstrecken sich 61 vorgefertigte Holzwohnungen: Einzelwohnungen für Singles und Pärchen sowie mehrstöckige Häuser für Familien. Dabei sind die Apartments vor allem für Personen des öffentlichen Diensts in Amsterdam konzipiert. Neben der klassischen Wohnfunktion mischen sich gemeinschaftliche Nutzungen innerhalb einer überhöhten Sockelzone in das Raumprogramm. Hierzu zählen eine Kindertagesstätte, Geschäfte, ein Café oder ein Fitnessstudio. Außerdem können Fahrräder und Autos im geschlossenen Sockelbereich aus Beton geparkt werden.
Modularer Holzbau
Der Holzbau besteht aus horizontal aneinandergereihten oder vertikal gestapelten Modulen mit einer variablen Tiefe und Standardbreite von 4 m. Auf diese Weise ist ein kreisförmiger Gebäudekomplex entstanden, in dessen Mitte sich ein großzügiger Innenhof befindet. Die grüne Mitte lädt die Bewohnerinnen und Bewohner zum Austauschen und Verweilen ein.


Vorgefertigte Holzmodule ermöglichen eine Vielzahl an Wohntypologien. © Stijn Poelstra
Klimagerechtes Bauen
Bei den für Juf Nienke verwendeten Materialien handelt es sich primär um nachhaltige Rohstoffe, die gleichermaßen biobasiert, erneuerbar und recyclebar sind. Durch vorgefertigte Holzmodule konnte die Bauzeit verkürzt, die Abfallmenge reduziert sowie die Auswirkungen auf die Umgebung minimiert werden.


Juf Nienke besteht primär aus nachhaltigen Materialien. © Stijn Poelstra


Modular vorgefertigte Systeme, © Stijn Poelstra
Auch in ökologischer Hinsicht geht das Wohngebäude mit einem positiven Beispiel voran. Die Artenvielfalt der Flora und Fauna wird durch bewusste Bepflanzung im gemeinsam genutzten Innenhof gefördert. Mit einer Photovoltaikanlage auf dem Dach sowie einer Integration in das Heizungssystem des umliegenden Gebiets kann allgemein ein hoher energetischer Standard für das Gebäude erzielt werden.
Architektur: RAU, SeARCH
Bauherr: Dokvast
Standort: Amsterdam (NL)
Bauunternehmen: Barli and Hazenberg
Bauphysik: DGMR
Tragwerksplanung: Pieters Bouwtechniek
HKLS-Planung: Installatie Bureau Heeze
Landschaftsarchitektur: DS Landschapsarchitecten














