Eigenbau aus erster Hand
Peckham House in London von Surman Weston
Im Dachgeschoss weichen die Kopfziegel des flämischen Backsteinmauerwerks einem lichtdurchlässigen Lochverband. © Jim Stephenson
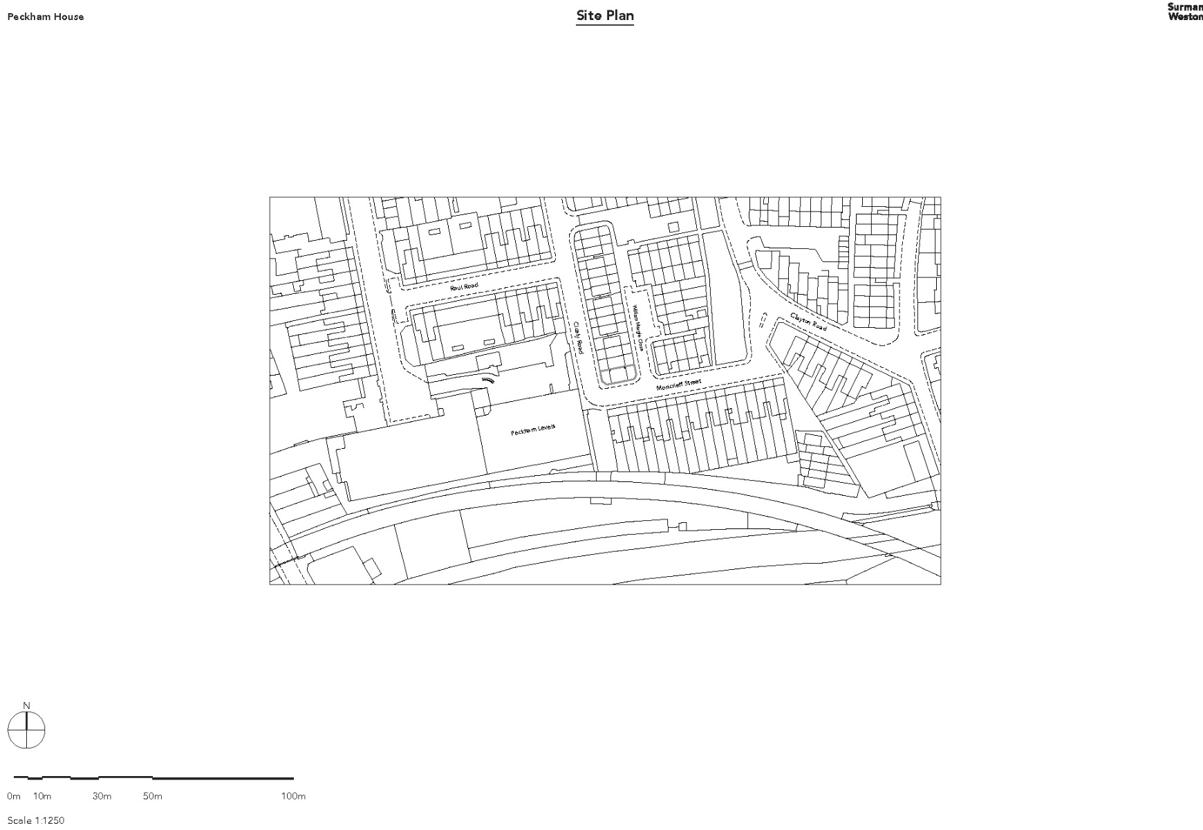
Der Architekt Percy Weston von Surman Weston erlebte einen Glücksfall, als er 2018 bei einer Auktion ein interessant gelegenes kleines Grundstück in Peckham im Südosten von London erwarb. Neben dicht befahrenen Gleisen befinden sich in unmittelbarer Nähe auch viktorianische Nachbargebäude sowie das heutige Kreativzentrum Peckham Levels – ein brutalistisches Parkhaus aus den 1980er-Jahren. Die Brache am Ende einer Reihenhausreihe bot also ideale Voraussetzungen für ein Bauprojekt mit ungewissem Ausgang. Innerhalb von fünf Jahren entstand schließlich zusammen mit seinem Büropartner Tom Surman das erste vom Büro selbst initiierte Projekt: Surman Weston fungierten dabei als Bauherren, Architekten und Bauunternehmer.


Materialien und subtile Höhenunterschiede helfen, die Räume abzugrenzen. © Jim Stephenson
Die Herausforderung bestand darin, auf der schmalen Parzelle ein großzügiges Einfamilienhaus mit Privatsphäre zu schaffen. Entsprechend lang gestaltete sich der Prozess der Entwurfsentwicklung. In enger Absprache mit der lokalen Baubehörde testeten die Architekten eine Vielzahl an Optionen, bevor schließlich die Baugenehmigung erteilt wurde.
Variierendes Mauerwerk
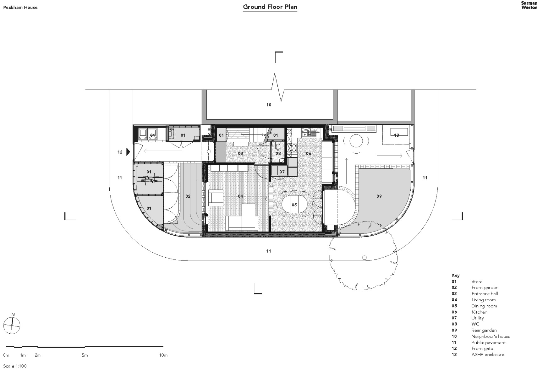
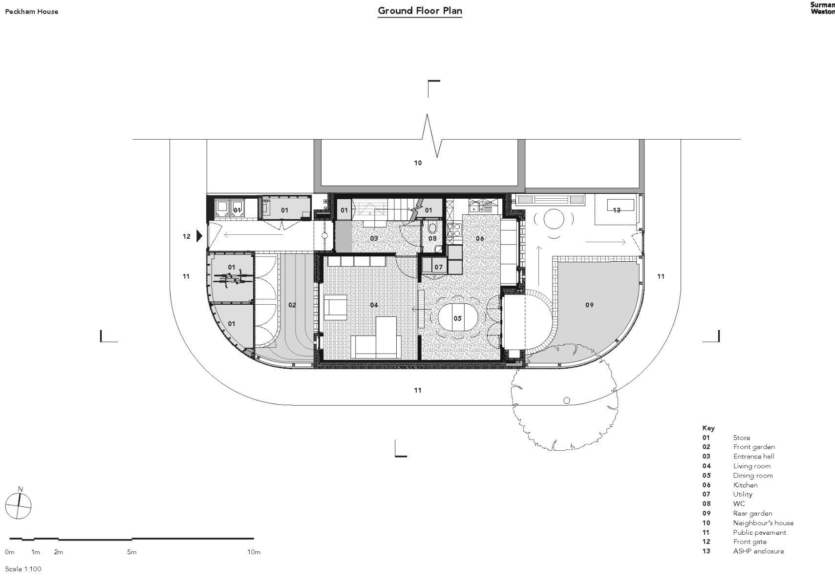
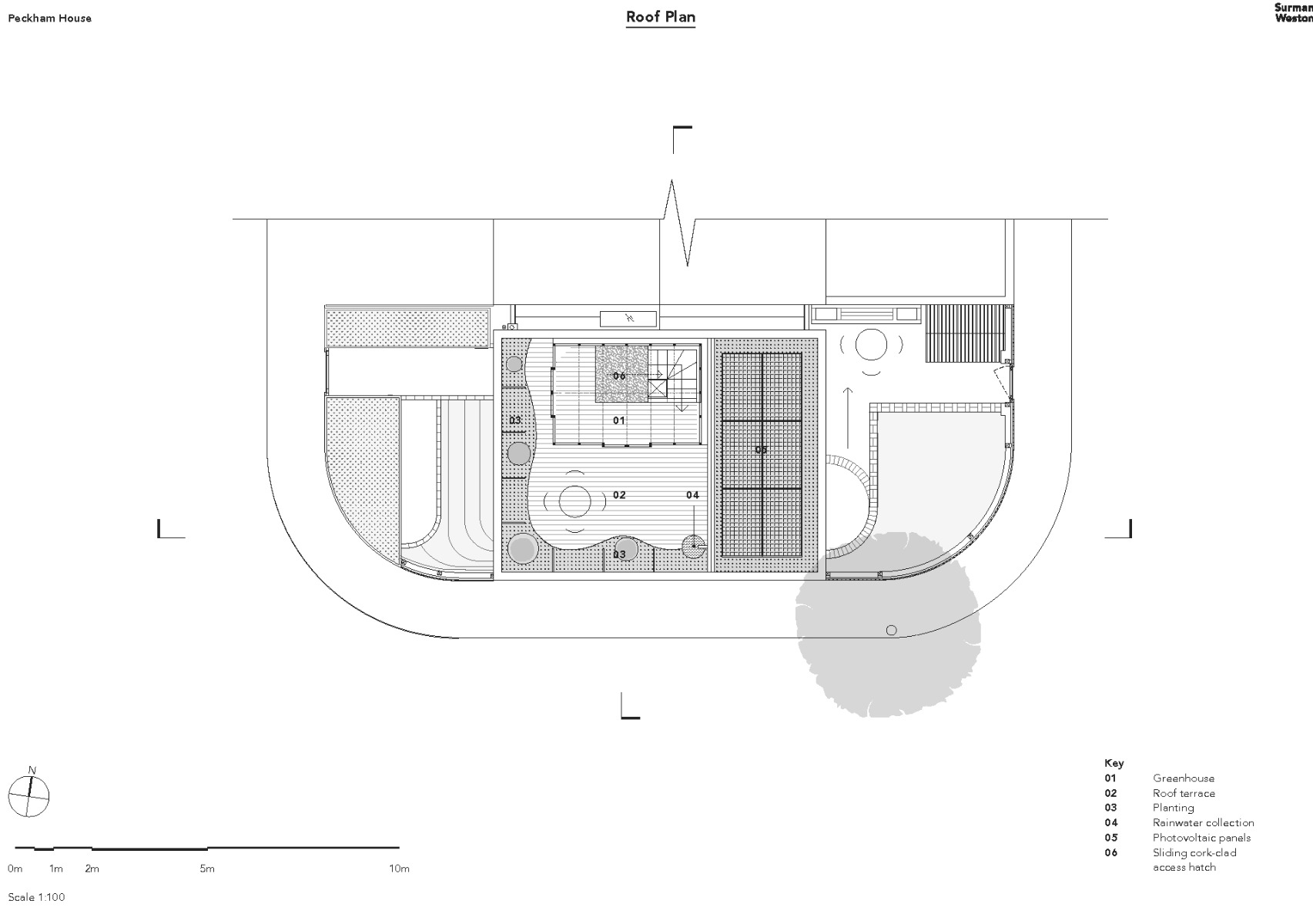
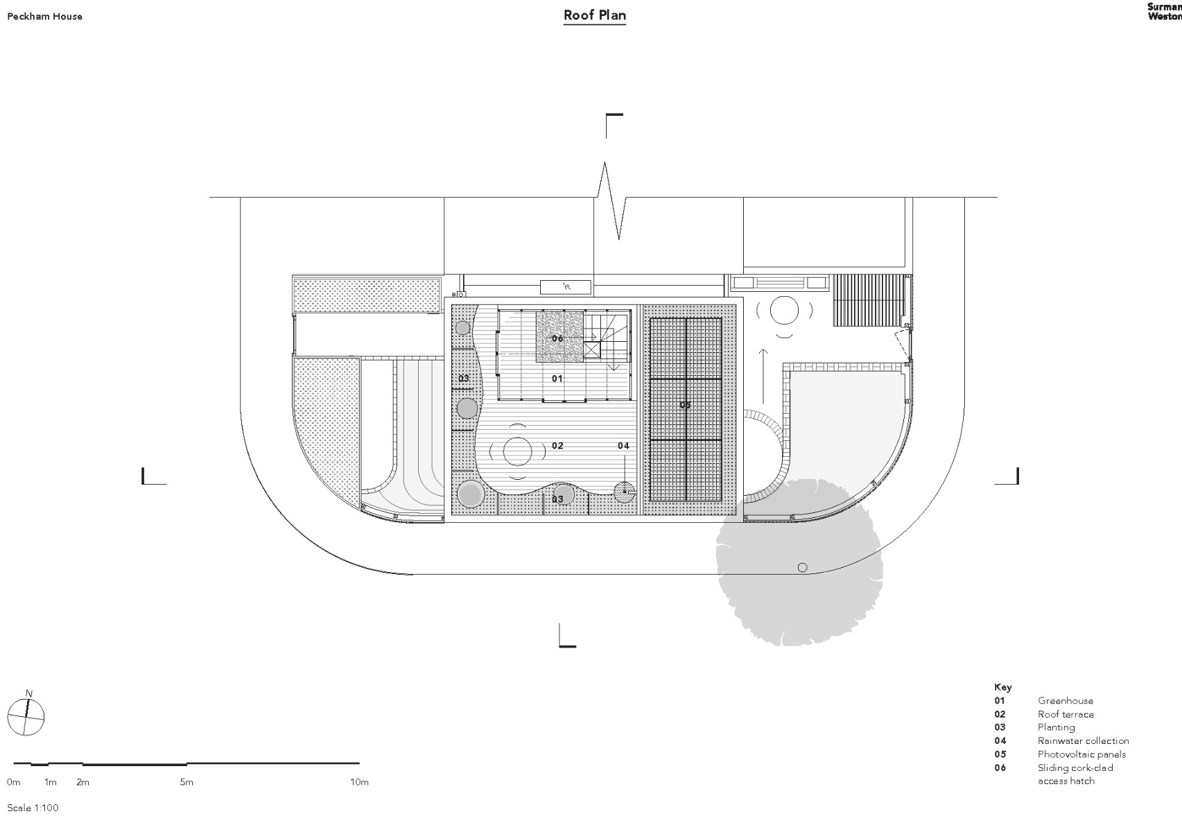
Das Design orientiert sich an der Reihenhauszeile, mit einem großzügigen vorderen und einen kompakteren hinteren Gartenbereich. Das Haus ist mit einer Ziegelfassade ausgestattet, die auf die handgefertigten Backsteine der viktorianischen Umgebung Bezug nimmt. Die Ziegel sind in einem "Hit-and-Miss"-System angeordnet, um die ansonsten monolithisch wirkende Form abzuschwächen. Im Dachgeschoss weichen die Kopfziegel des flämischen Backsteinmauerwerks einem lichtdurchlässigen Lochverband. Statt eines typischen Satteldachs entschieden sich die Architekten für ein Flachdach, das als Dachgarten genutzt wird. Ein Gewächshaus dient als Winterquartier für Pflanzen.


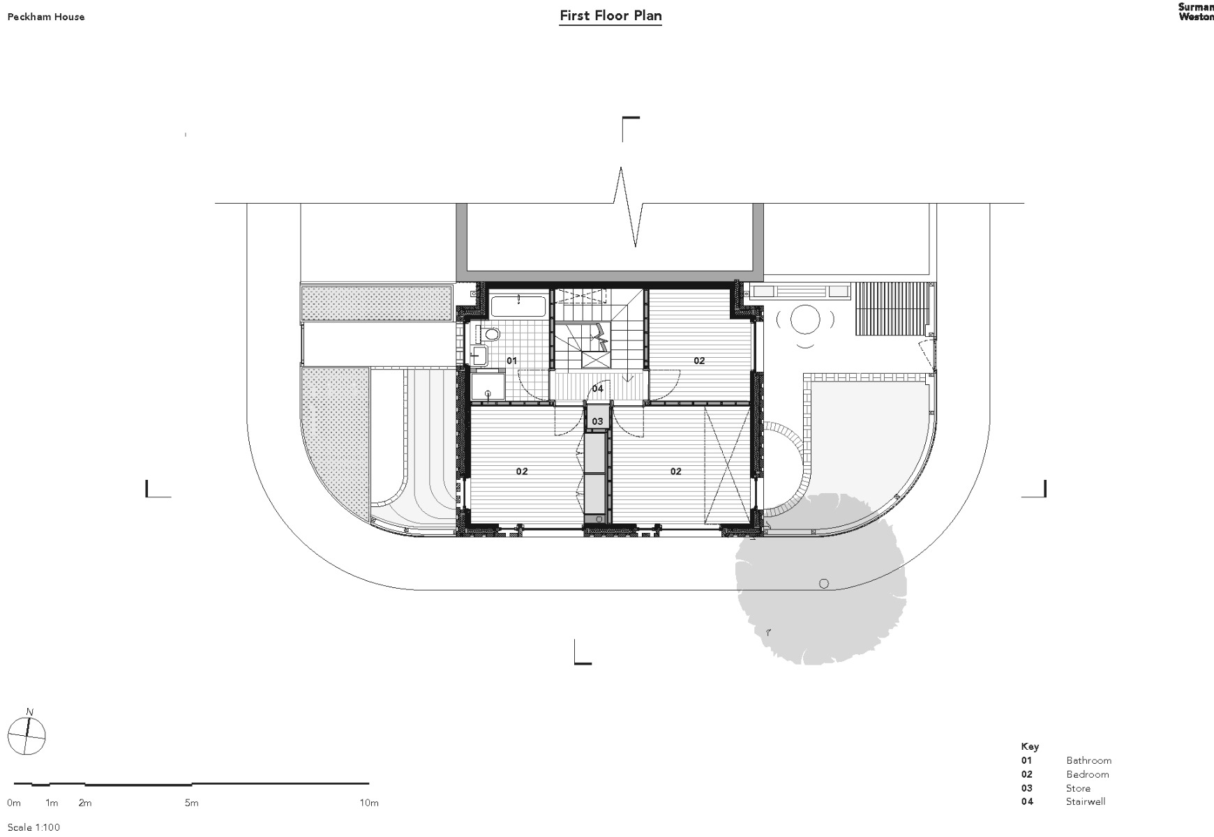
Die Raumaufteilung folgt britischen Reihenhaus-Traditionen. © Jim Stephenson
Bauabfälle begrenzen
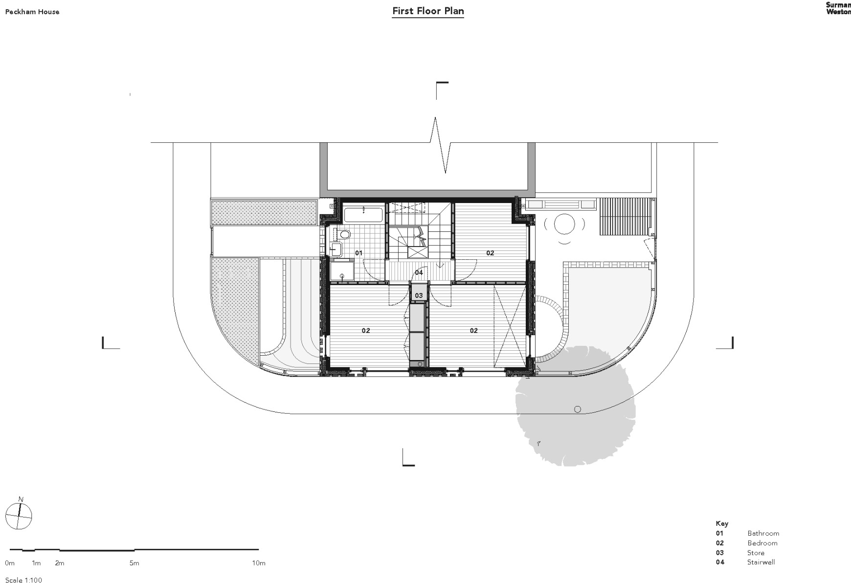
Die Raumaufteilung folgt britischen Reihenhaus-Traditionen, mit Küche, Wohn- und Esszimmer im Erdgeschoss und einem Vorgarten zur Straße. Im Obergeschoss befinden sich drei Schlafzimmer, eines mit hoher Decke und kleinem Fenster nach Osten. Materialien und subtile Höhenunterschiede helfen, die Räume abzugrenzen: Terrazzo im Eingangsbereich und in der Küche, Hirnholzböden aus englischer Lärche in den Empfangsräumen, Kalkmörtelschlamm an den Wänden im Erdgeschoss und im Treppenhaus, ein wärmerer, rosafarbener Gipsputz für die privaten Schlafzimmer. Viele der Materialien sind recycelt. Es wurde darauf geachtet, den Materialabfall zu begrenzen: von den Blockwänden, hergestellt aus recycelten Bauabfällen, über den Hirnholz-Blockboden, der aus den Abfällen der freiliegenden Deckenbalken zusammengesetzt ist, bis hin zu den Ziegelabfällen, die als Pflastersteine im Garten Wiederverwendung fanden.


Die maßgefertigten Treppenstufen bestehen aus CNC-gefrästen Kiefernbrettern. © Jim Stephenson


Liebevoll geplante Details verleihen dem Peckham Haus einen ganz eigenen Charakter. © Jim Stephenson
Einfache, robuste Materialien
Die Innenausstattung besteht aus einfachen, robusten Materialien, die in Würde altern sollen. Die Bauweise ist überall sichtbar und wird zelebriert, so bei den freiliegenden, maßgefertigten Treppenstufen aus CNC-gefrästen Kiefernbrettern oder den tragenden Wandbalken aus Holz, bei denen die Rinde des Baumes erhalten ist, aus dem sie ursprünglich gesägt wurden. Percy Weston und Tom Surman haben beim Bau selbst Hand angelegt und die Holzdachkonstruktion, die sichtbaren Deckenbalken und den Lärchenholzboden von Hand gefertigt sowie die Fenster, die Klimaanlage und die Sonnenkollektoren installiert.


Ein Gewächshaus auf dem Dach dient als Winterquartier für Pflanzen. © Jim Stephenson
Energieverbrauch reduzieren
Ein wichtiges Ziel war es, den gebundenen Kohlenstoff und die Betriebsenergie zu reduzieren. Die Materialien stammen aus der näheren Umgebung. Das Haus ist isoliert mit Dreifachverglasung und einer luftdichten Hülle mit mechanischer Lüftungswärmerückgewinnung. Die Energieerzeugung vor Ort erfolgt in Form von Photovoltaik in Verbindung mit einer Luftwärmepumpe. Die bisher gesammelten Leistungsdaten übertreffen die ehrgeizigen Ziele in Bezug auf den Energieverbrauch und liegen 80 % über den Anforderungen der Bauvorschriften.


Die Dachterrasse ist eine grüne Oase. Hier kann man die Intensität der umgebenden Stadt ausblenden. © Jim Stephenson
Die Geschichte des Baus und die Eigenschaften der Materialien verleihen dem Haus einen ganz eigenen Charakter und vermitteln ein Gefühl von Heimeligkeit. Nach fast drei Jahren Bauzeit, auch bedingt durch die Corona-Pandemie, zog Percy Weston mit seiner Familie ein; Tom Surman bleibt Eigentümer zu 30 Prozent. Das 2014 gegründete Büro Surman Weston hat bereits mehrere Preise gewonnen, darunter den RIBA Stephen Lawrence Prize 2022 für die Hackney School of Food.
Architektur: Surman Weston
Bauherr: Surman Weston
Standort: Cicely Road, London SE15 5HW (GB)
Team: Percy Weston, Tom Surman, Hilly Murrell
Projektarchitekt: Percy Weston
Tragwerksplanung: Structure Workshop
TGA-Planung: Peter Deer and Associates
Landschaftsdesign: Lidia D’Agostino Garden Design
Bauunternehmen: Surman Weston































