Rosa pigmentierter Beton
Pigment House in London von Unknown Works
Die pigmentierten Oberflächen verbinden Außen- und Innenbereich des Wohnhauses. © Lorenzo Zandri
In London hat das Architekturstudio Unknown Works ein vierstöckiges Stadthaus zu einem offenen und farbigen Wohnhaus umgestaltet. Nach den Wünschen der Eigentümer sollte der Umbau die Bewegung und Vernetzung der Familie fördern und einen Ort für große Zusammenkünfte bieten.


Die abgestufte Terrasse besteht aus staubrosa pigmentierten Betonoberflächen. © Lorenzo Zandri
Veränderung des Gartens
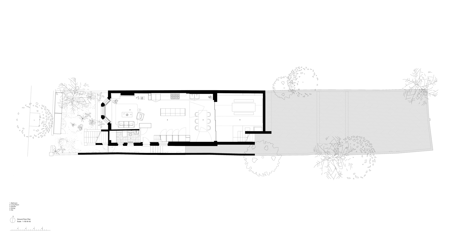
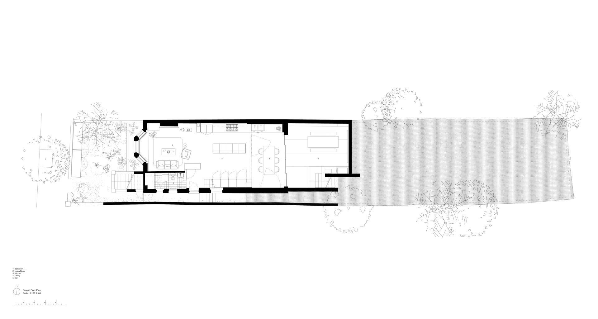
Das am Hang eines steilen Hügels liegende Haus wurde zunächst von den vielen feuchten Erdschichten befreit, sodass Tageslicht in die unteren Ebenen kam. Der Großteil der Gartenmauern und der Rückseite des Hauses musste untermauert werden, um eine sichere Struktur zu schaffen. Der steil abfallende Garten wurde neu terrassiert. Eine komplexe Betonstützmaueranordnung umfasst die Mauer, Treppen, Sitzgelegenheiten sowie eine Außenküche und einen Grill. Darüber liegen mehrere Spielterrassen für die Kinder.
Design aus Mexiko
Das Design der Doppelhaushälfte mit Terrasse beruht auf einem einheitlichen Farbschema in Rosa, das von den Reisen der Eigentümer nach Mexiko inspiriert wurde und an den Stil von Luis Barragán erinnert. Die neuen Betonwände und -böden der abgestuften Terrasse sind in einem staubigen Rosa gehalten, die durch verputzte Wandpaneele an der Außenfassade ergänzt werden.


Die maßgefertigte Küche mit Kochinsel aus Eiche dient als familiärer Treffpunkt. © Lorenzo Zandri
Umgestaltung des Wohnraums
Im Inneren führten Unknown Works kleinere Renovierungsarbeiten in vier Schlafzimmern und drei Badezimmern durch. Küche und Wohnzimmer verwandelten die Architekten in einen großen, offenen Raum, der sich über die Grundfläche des Hauses erstreckt. In der maßgefertigten Eichenholzküche dient eine große Kochinsel als familiärer Treffpunkt. Nach der Freilegung des unteren Geschosses ist der neue Wohn- und Essbereich mit viel Tageslicht durchflutet. Hierzu trägt auch die neue Glasdacherweiterung bei.


Küche mit Essbereich, © Lorenzo Zandri


Pigment House in London - Gartenansicht, © Lorenzo Zandri


Der steil abfallende Garten wurde neu terrassiert. © Lorenzo Zandri
Unknown Works ist es gelungen, die verborgenen Potenziale dieses dunklen Stadthauses aufzudecken. Die spielerische Landschaftsgestaltung in Verbindung mit einer bewusst begrenzten Materialpalette schafft ein charaktervolles und einladendes Zuhause im oft so regnerischen London.
Architektur: Unknown Works
Team: Ben Hayes, Kaowen Ho and Theo Games Petrohilos
Bauherr: privat
Standort: Hamstead, London (GB)
Tragwerksplanung: Bull & Bates
Innenarchitektur: Unknown Works
Generalunternehmen: Grace & Wren Ltd




















