Getreidesäcke als Fassade
Pop-up-Café und Bäckerei in China von F.O.G. Architecture
Das Cycle Cycle mobile bakehouse ist ein temporäres Pop-up-Café in China. © Inspace
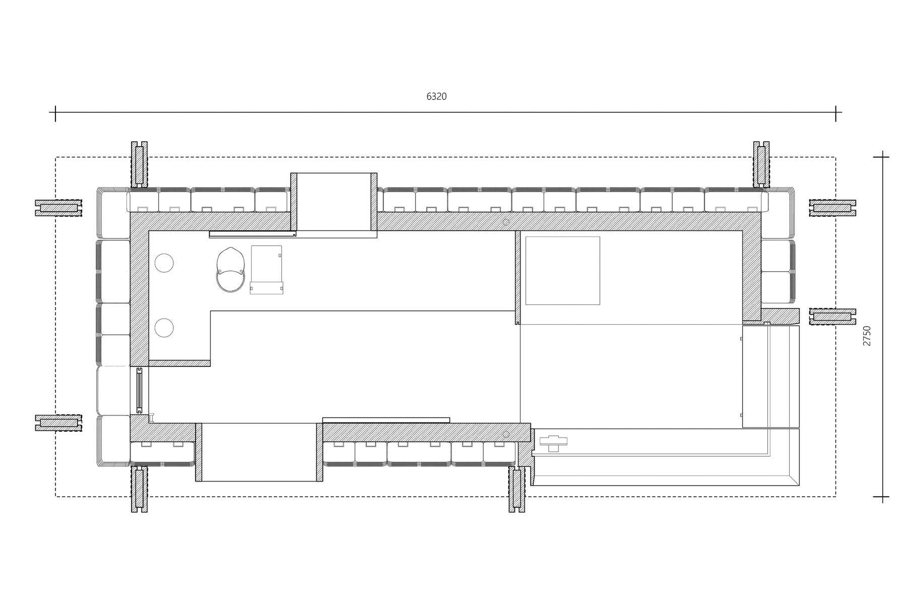
In China gestalten F.O.G. Architecture das Cycle Cycle mobile bakehouse – ein Pop-up-Café mit integrierter Bäckerei. Das temporäre Gebäude wird in unterschiedlichen chinesischen Städten aufgebaut, um die Beziehung zwischen Nahrung und Land zu erforschen. Dabei wird die Nutzung des kleinen Cafés dokumentiert. Die Beobachtungen werden genutzt, um die modulare Struktur bei jedem Umzug an die Bedürfnisse der Menschen anzupassen.


Die modulare Konstruktion besteht überwiegend aus Holz und einer Fassade aus Getreidesäcken. © Inspace
Textile Fassade in Ziegeloptik
Das 18 m² große Gebäude ist aus Holz konstruiert. Getreidesäcke dienen als Fassade und sind wie Ziegel übereinandergestapelt. Die Textilien dienen gleichzeitig als gemütliche Rückenlehne für die ringsherum hervorstehende Bodenplatte, die wiederum als niedrige Sitzbank genutzt werden kann. Hölzerne Öffnungen zwischen den Säcken bringen frische Luft und natürliches Licht ins Innere des Cafés. Darüber hinaus können Besuchende die internen Abläufe wie die Kaffeezubereitung oder das Verpacken des Gebäcks von außen beobachten.
Die scheunenähnliche Konstruktion erinnert an die landwirtschaftliche Architektur Chinas. Eine seitlich angebrachte Leiter verweist symbolisch auf einen Strohschuppen zum Ausruhen und führt auf das regendichte Dach. An der Vorder- und Rückseite sorgen aufklappbare Holzplatten für Schatten. An den hinteren Beschattungsplatten ermöglichen angebrachte Vorhänge es, einen privateren Raum zu schaffen.


Auf der Rückseite kann mithilfe der Beschattungsplatten und Vorhängen ein halbprivater Raum entstehen. © Inspace
Interaktive Bauphase
Die vorgefertigte, modulare Struktur erlaubt es, das Pop-up-Café schnell und flexibel an verschiedenen Standorten aufzubauen. Während der Montage hat sich das Team aus Architekten und Bauarbeitern bewusst gegen einen Bauzaun entschieden, sodass Passanten an der Entstehung der Struktur teilhaben konnten. So wurde zum Beispiel die Platzierung der Getreidesäcke intuitiv in Gemeinschaftsarbeit festgelegt. Ziel des Projekts ist es, einen neuen öffentlichen Raum innerhalb einer städtischen Umgebung zu schaffen, der Flexibilität, Mobilität und Engagement maximiert.
Architektur: F.O.G. Architecture
Design Team: Lei Ronghua, Xiong Aijie, Hou Shaokai, Zhuang Shaokai, Zhang Zhirui, Liu Jiarui, Zhan Di, Zheng Yu
Standort: China (CN)
Strukturelles Design: Juan Kou Structure, Tao Xinwei
Lichtplanung: Liben Design, Zhang Xu


















