Erfolgreiche Umnutzung
Pumphouse in Winnipeg von 5468796 Architecture
Zwei fünfgeschossige Wohnriegel auf Stützen flankieren das Pumpenhaus nach seinem Umbau. Sie waren Voraussetzung dafür, dass das Projekt für den Investor rentabel wurde. © James Brittain
Nicht weniger als 14 Versuche hatte es bereits gegeben, um das 1906 errichtete Pumpenhaus an der James Avenue in Winnipeg wiederzubeleben. Ein Blick auf den Stadtplan zeigt, warum: Das Gebäude steht am Ufer des Red River in unmittelbarer Nähe des Stadtzentrums, auf einem ehemaligen Bahngelände. Nach all den Fehlschlägen war das Gebäude eigentlich für den Abbruch vorgesehen.


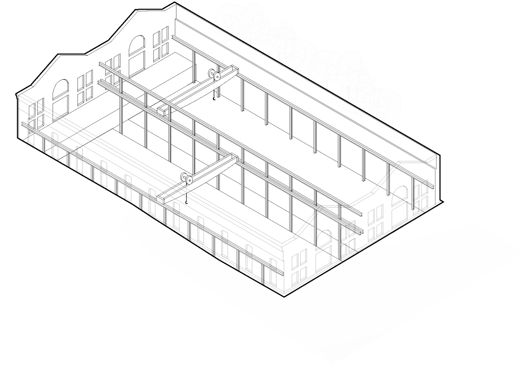
Im Inneren des Altbaus befinden sich nach wie vor die historischen Wasserpumpen. Die Büroebenen liegen auf einer neu eingezogenen Zwischendecke eine Etage höher © James Brittain
Durch Nachverdichtung gerettet
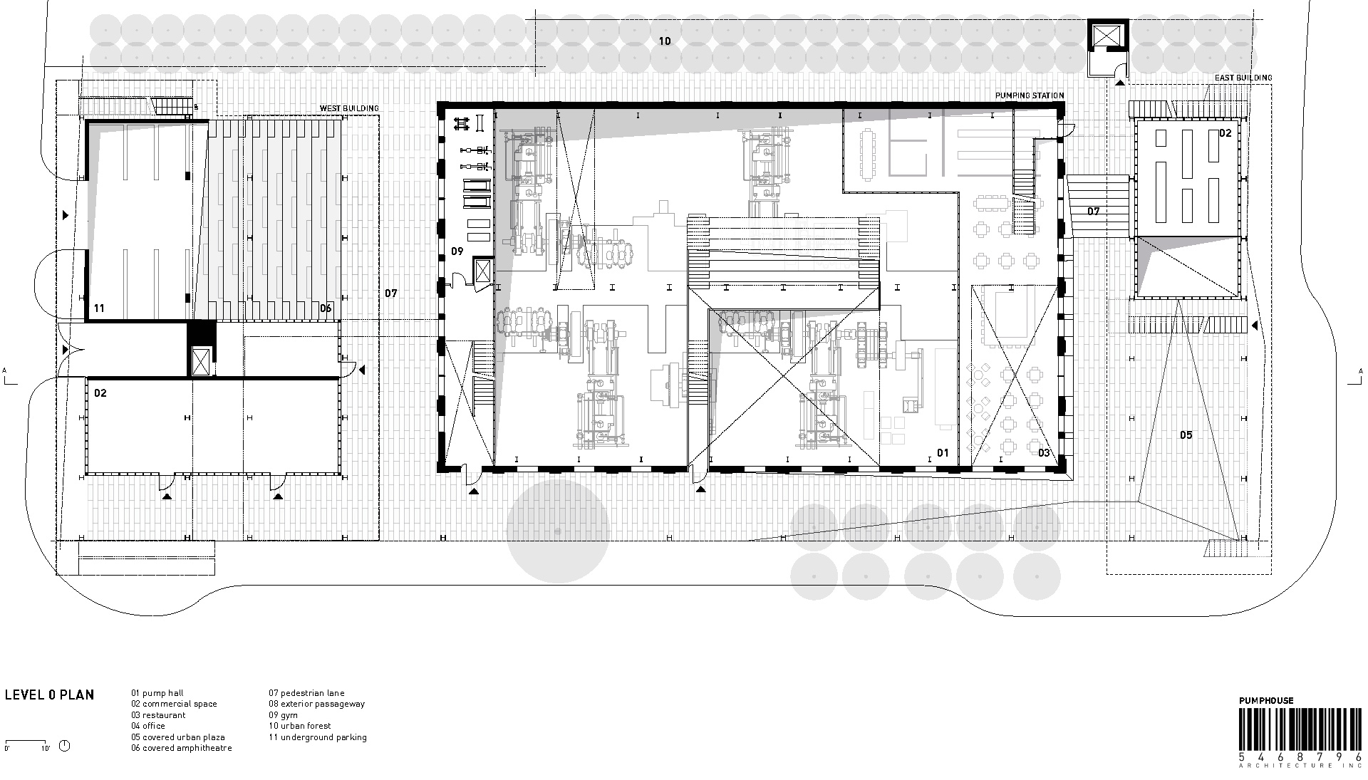
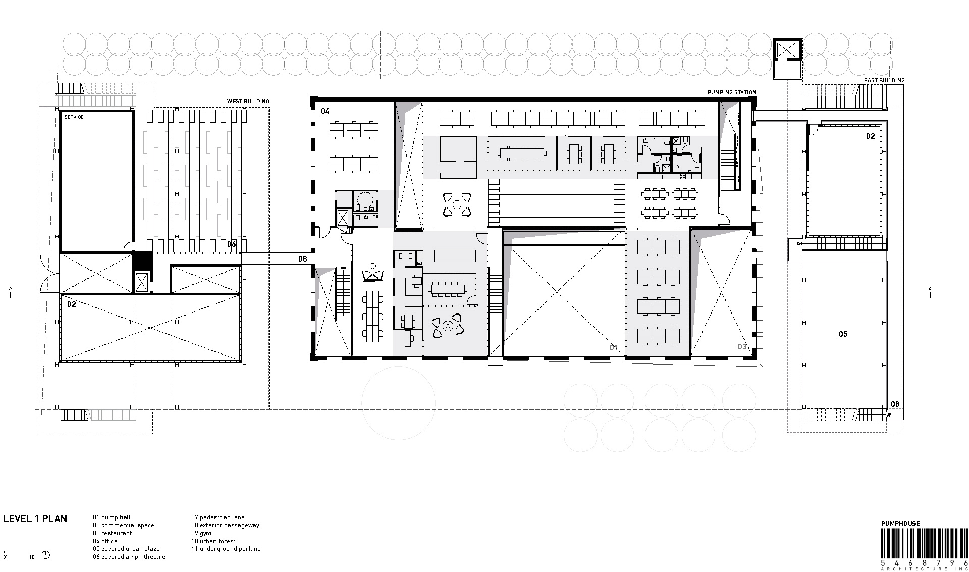
Dass der 15. Versuch schließlich erfolgreich war, ist maßgeblich der Initiative von 5468796 Architecture zu verdanken. Mit ihrem Konzeptentwurf und begleitendem Kostenvoranschlag überredeten sie nicht nur einen Bauherrn, sondern auch die Stadt. Die nämlich musste eigens den Bebauungsplan ändern, um eine Nachverdichtung des Grundstücks zuzulassen. An beiden Enden des historischen Hallenbaus erheben sich nun fünfgeschossige Wohnblocks auf Stelzen. Ihr Bau erst machte das Projekt rentabel. Im Inneren des Pumpenhauses betritt man hingegen zunächst einen gewaltigen Leerraum, in dem die vorhandenen Wasserpumpen wie Ausstellungsstücke vor sich hinrosten. Das eigentliche Raumprogramm – überwiegend Büroräume – brachten die Architekten auf einer neuen Zwischenebene auf Höhe der Kranbahnen unter. Nur die beiden Kopfenden des Erdgeschosses werden ebenfalls genutzt; hier liegen unter anderem die Zugänge zu den Wohnungen weiter oben.


Stahl und Glas prägen die Fassaden der beiden Wohngebäude – die Geschossdecken hingegen bestehen aus Holz. © James Brittain
Wohngebäude aus Stahl, Glas und Holz
Die Wohngebäude sind mit Stützen zwei Etagen über den Erdboden angehoben, darunter befinden sich Ladenflächen und die Einfahrt zur Tiefgarage. Die Stahl-Glasarchitektur der Riegel führt den industriellen Charakter des Altbaus mit anderen Mitteln weiter – sogar da, wo man es nicht sieht: Die Geschossdecken der Wohngebäude bestehen aus Nagelsperrholz, einer Bautechnik, die in Kanada schon seit mehr als 100 Jahren gebräuchlich ist und früher bei vielen Lagerhäusern im Land angewandt wurde. Um Kosten zu sparen, verzichteten die Architekten – dem kalten Klima zum Trotz – konsequent auf innen liegende Wohnflure. Stattdessen werden die Wohnungen über Laubengänge erschlossen. Davon gibt es ebenfalls nur drei für fünf Wohnetagen: Die Apartments im dritten und sechsten Obergeschoss haben ihren Eingang eine Ebene tiefer und werden von schmalen, einläufigen Zugangstreppen erschlossen.
Architektur: 5468796 Architecture
Bauherr: Alston Properties
Standort: 2-109 James Ave, Winnipeg, Manitoba (CA)
Tragwerksplanung: Lavergne Draward & Associates
Landschaftsarchitektur: Scatliff + Miller + Murray
TGA-Planung: MCW Consultants























