Success after 14 attempts
Winnipeg Pumphouse by 5468796 Architecture
Two five-storey residential blocks on pillars flank the pumphouse after its conversion. They were a prerequisite for making the project profitable for the investor. © James Brittain
Built in 1906, the pumphouse on Winnipeg's James Avenue has seen no fewer than 14 attempts at revitalisation. A glance at the city map shows why: the building is located on the banks of the Red River, close to the city centre, on a former railway site. After all the failures, the building was earmarked for demolition.


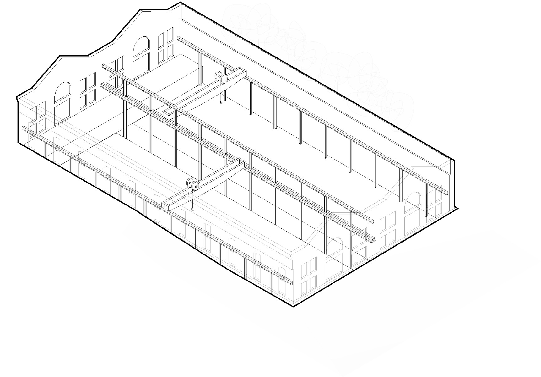
The historic water pumps are still inside the old building. The office levels are one floor higher on a newly installed mezzanine. © James Brittain
Saved by redensification
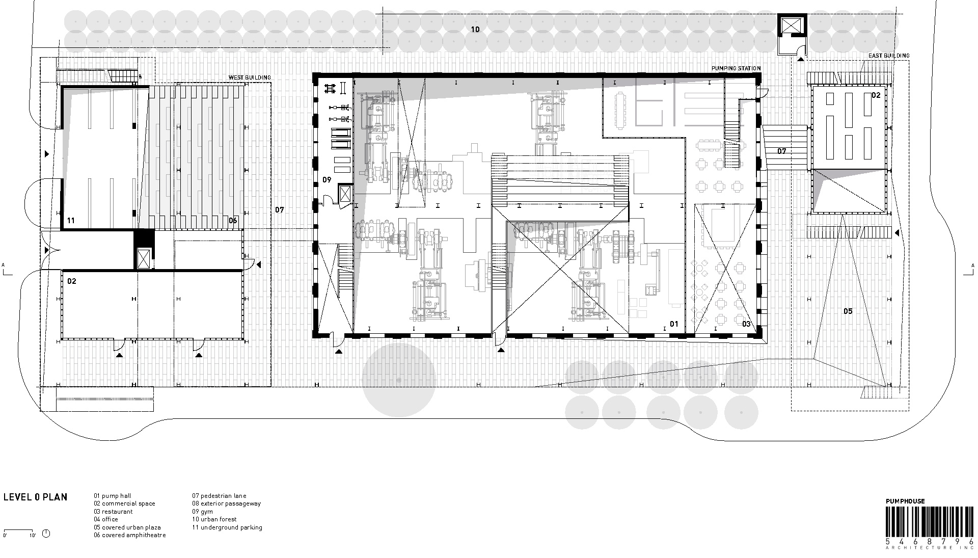
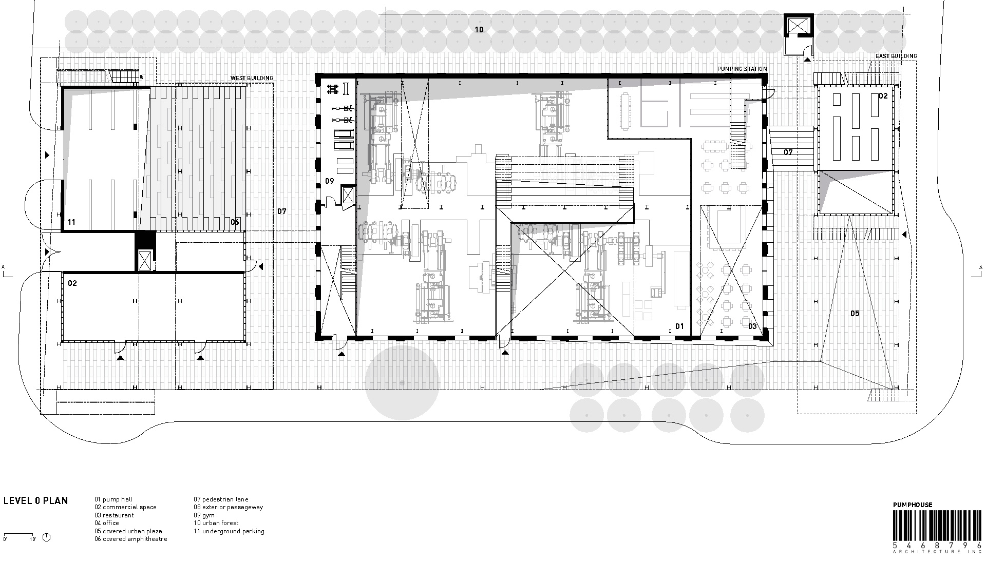
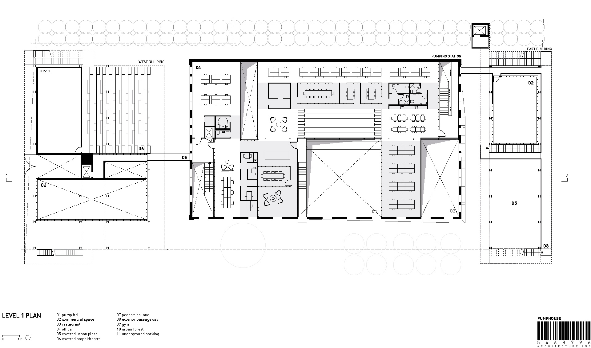
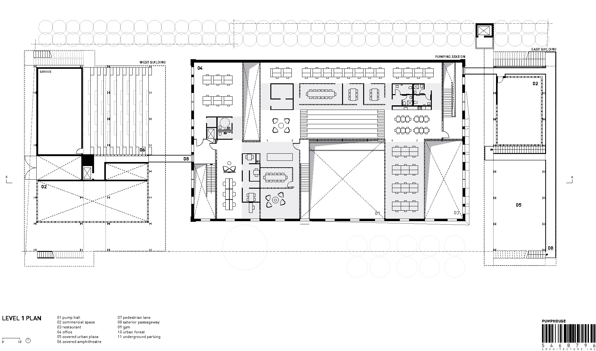
The fact that the 15th attempt was ultimately successful is largely due to the initiative of 5468796 Architecture. Their concept and cost estimate convinced not only a developer but also the city. The city had to change the zoning plan to allow for densification of the site. Five-storey apartment blocks on stilts now stand at either end of the historic hall. It was their construction that made the project viable. Inside the pumphouse, on the other hand, the first thing you see is a huge empty space where the existing water pumps are rusting away like exhibits. The architects accommodated the actual space programme – mainly offices – on a new mezzanine level at the height of the crane runways. Only the two ends of the ground floor are used, including the entrances to the apartments above.


The facades of the two residential buildings are made of steel and glass, while the ceilings are made of wood. © James Brittain
Residential buildings in steel, glass and wood
The residential buildings are raised two storeys above the ground by columns, with retail space and the entrance to the underground car park below. The steel and glass architecture of the blocks continues the industrial character of the old building by other means – even where you cannot see it: The floors of the residential buildings are made of nailed plywood, a construction technique that has been used in Canada for more than 100 years and was previously used in many warehouses across the country. In order to save costs, the architects decided to do without internal corridors, despite the cold climate. Instead, the apartments are accessed via arcades. There are only three of these for five residential floors: the apartments on the third and sixth floors have their entrances one floor below and are accessed via narrow, single-flight staircases.
Architecture: 5468796 Architecture
Client: Alston Properties
Location: 2-109 James Ave, Winnipeg, Manitoba (CA)
Structural engineering: Lavergne Draward & Associates
Landscape architecture: Scatliff + Miller + Murray
Building services engineering: MCW Consultants























