// Check if the article Layout ?>
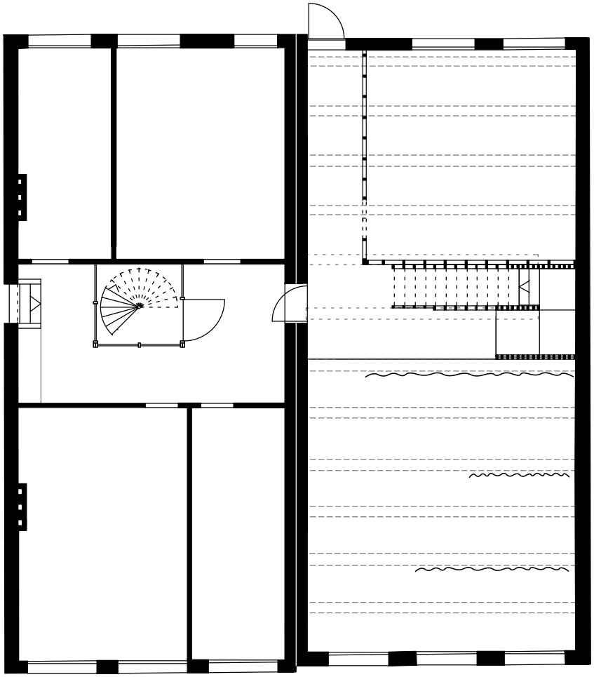
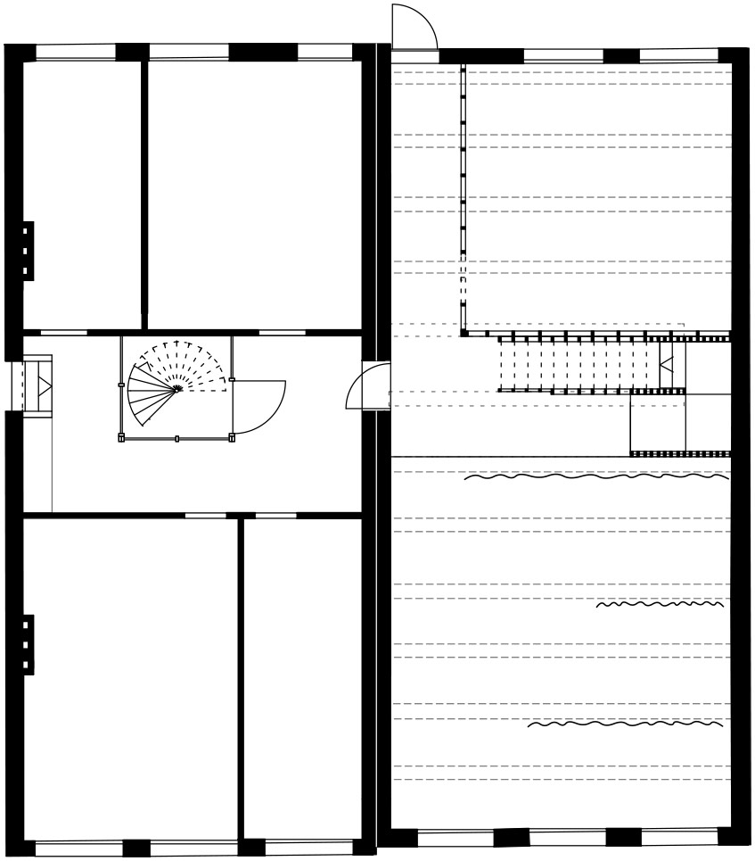
Raum-Collage: Hochschulinstitut in Amsterdam von HOH architecten
Foto: Jordi Huisman
HOH architecten sorgen für eine flexible Arbeitsumgebung, indem sie die vorhandenen Qualitäten zweier Grachtenhäuser aus dem 17. Jahrhundert differenziert interpretieren und zu einer Raum-Collage verdichten.
Die beiden im Stadtzentrum von Amsterdam liegenden Gebäude wurden 1642 als identische Zwillinge erbaut, kurze Zeit später jedoch räumlich getrennt. Unterschiedliche Besitzer und Eingriffe hinterließen deutliche Spuren, eine Fassade wurde zwischenzeitlich komplett ersetzt. Seit Mitte des vergangenen Jahrhunderts sind die Häuser im Besitz der Universität.
Das IAS wünschte sich Open Space-Büros, die Austausch und Kommunikation in flexiblen Arbeitsumgebungen ermöglichen. Dies stand jedoch in direktem Widerspruch zu den von Verwaltungsseite in Hinblick auf eine spätere Weitervermietung präferierten Standardräumen. Unkalkulierbare Überraschungen in puncto historischer Bausubstanz machten außerdem ursprüngliche Ideen und Planungen zunichte: Von Schimmel und Schwamm befallene Holzbalken erzwangen einen sechsmonatigen Baustopp.
Auf diese teilweise kuriose Gemengelage antworten HOH Architecten mit einer differenzierten Lösung, die beide Gebäude verbindet, vorhandene Qualitäten hervorhebt und zu einer Raum-Collage verdichtet: »Wir entschieden uns dafür, aus der reichen Gebäudegeschichte zu schöpfen und jeden Raum in seiner Identität zu stärken, durch Farbgebung, besondere Merkmale oder Materialität«, erläutert Bürogründer Carsten Hilgendorf. Plakative Eigennamen wie Green Room, Oak Room oder Dark Room betonen den besonderen Charakter der einzelnen Etagen.
Das IAS wünschte sich Open Space-Büros, die Austausch und Kommunikation in flexiblen Arbeitsumgebungen ermöglichen. Dies stand jedoch in direktem Widerspruch zu den von Verwaltungsseite in Hinblick auf eine spätere Weitervermietung präferierten Standardräumen. Unkalkulierbare Überraschungen in puncto historischer Bausubstanz machten außerdem ursprüngliche Ideen und Planungen zunichte: Von Schimmel und Schwamm befallene Holzbalken erzwangen einen sechsmonatigen Baustopp.
Auf diese teilweise kuriose Gemengelage antworten HOH Architecten mit einer differenzierten Lösung, die beide Gebäude verbindet, vorhandene Qualitäten hervorhebt und zu einer Raum-Collage verdichtet: »Wir entschieden uns dafür, aus der reichen Gebäudegeschichte zu schöpfen und jeden Raum in seiner Identität zu stärken, durch Farbgebung, besondere Merkmale oder Materialität«, erläutert Bürogründer Carsten Hilgendorf. Plakative Eigennamen wie Green Room, Oak Room oder Dark Room betonen den besonderen Charakter der einzelnen Etagen.
























