Restaurant statt Ruine
Revitalisierung einer Scheune in Schottland
Das Restaurant Croft 3 liegt im schottischen Fanmore. © David Barbour
Das in London ansässige Architektur- und Stadtplanungsbüro Fardaa hat im schottischen Fanmore eine verfallene Scheune revitalisiert und erweitert. Croft 3 dient als Restaurant und ist zugleich gemeinschaftlicher Treffpunkt für die kleine Kommune.


Fardaa saniert die baufällige Scheune aus Stein und ergänzt sie um einen Holzanbau. © David Barbour
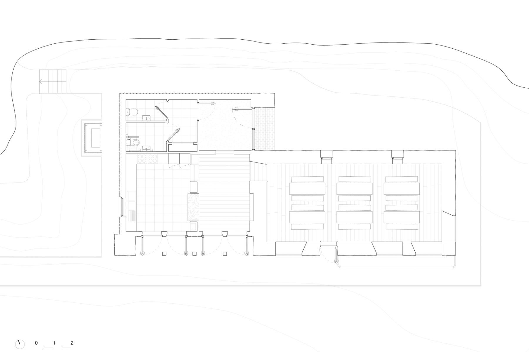
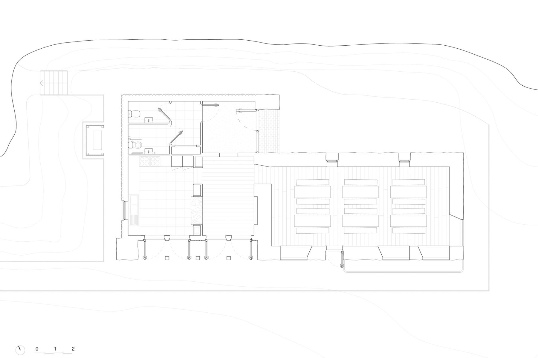
Der alte Bestand liegt im Nordwesten Schottlands, direkt an der Küste der Isle of Mull, inmitten der rauen Naturlandschaft. 2019 kaufte die Bauherrin das Objekt als neuen Standort für ihren lokalen Gastronomiebetrieb. Für die Umwandlung in ein Restaurant beauftragte sie das junge Londoner Büro.
Sanierung mit lokalen Materialien
Fardaa saniert die baufällige Scheune aus Stein und ergänzt sie um einen Holzanbau. Auf dem schräg abfallenden Gelände fügen sich die beiden Volumen – leicht versetzt – aneinander und schließen oben jeweils mit einem Giebeldach ab. Die Verwendung lokal vorhandener Materialien soll den CO2-Fußabdruck bestmöglich senken. Während die Fassaden des alten Traktes mithilfe von Basaltsteinen der Originalmauern und Kalkmörtel behutsam wiederhergestellt wurden, sind die neuen Ansichten in eine vertikale Lärchenschalung gehüllt.


Große Fenster lenken die Blicke hinaus auf das Meer. © David Barbour
Die Erschließung des Restaurants erfolgt zentral über die Rückseite, an der Schnittstelle zwischen altem und neuem Gebäudeteil. Beide Trakte lenken den Blick der Gäste durch große Fenster aufs Meer. Die Verglasungen verfügen über tiefe Laibungen und schaffen einen spannenden Kontrast zu den organischen Außenwänden. Foyer, Küche und WCs sind im Erweiterungsbau untergebracht. Hinter den dicken Bestandsmauern entsteht hingegen ein offener Speisesaal, der sich bis unters Dach erstreckt.


Der offene Speisesaal erstreckt sich bis unter das Dach. © David Barbour


Die unverkleideten Sparren des Tragwerks bleiben sichtbar. © David Barbour
Innengestaltung des Speisesaals
In dem minimalistischen Gastraum bleiben die unverkleideten Sparren des Tragwerks sichtbar und sorgen in Kombination mit rohen Materialien in gedeckten Farben für eine warme Atmosphäre. Neben Böden aus weißer Esche und verputzten Wänden in einem dezenten Lachston entschied man sich für eine unaufdringliche Einrichtung mit Stühlen aus einem französischen Café. Die langen Tische aus Douglasienholz fertigte man aus einem einzigen, vor Ort auf der Insel gewachsenen Baum. Sie laden zum gemeinsamen Dinieren ein und runden das gemütliche Ambiente in dem kleinen schottischen Restaurant stimmig ab.
Architektur: fardaa
Bauherr: Jeanette Cutlack, Croft 3
Standort: Fanmore, Isle of Mull (UK)
Tragwerksplanung: SF Structures













