Once a ruin, now a restaurant
Revitalisation of a Scottish Barn by Fardaa
The Croft 3 restaurant is located in Fanmore, Scotland. © David Barbour
The Fardaa architectural and urban planning office of London has revitalised a dilapidated barn in Fanmore, Scotland, and provided it an extension. The resulting Croft 3 restaurant also serves as a community gathering spot for the hamlet.


Fardaa rehabilitated the dilapidated stone barn and supplemented it with a timber extension. © David Barbour
The old extant building is located in northwest Scotland in a rugged coastal landscape on the Isle of Mull. The client purchased it in 2019 as a new location for her local culinary establishment and commissioned the young London-based studio with its conversion into a restaurant.
Rehabilitation with local materials
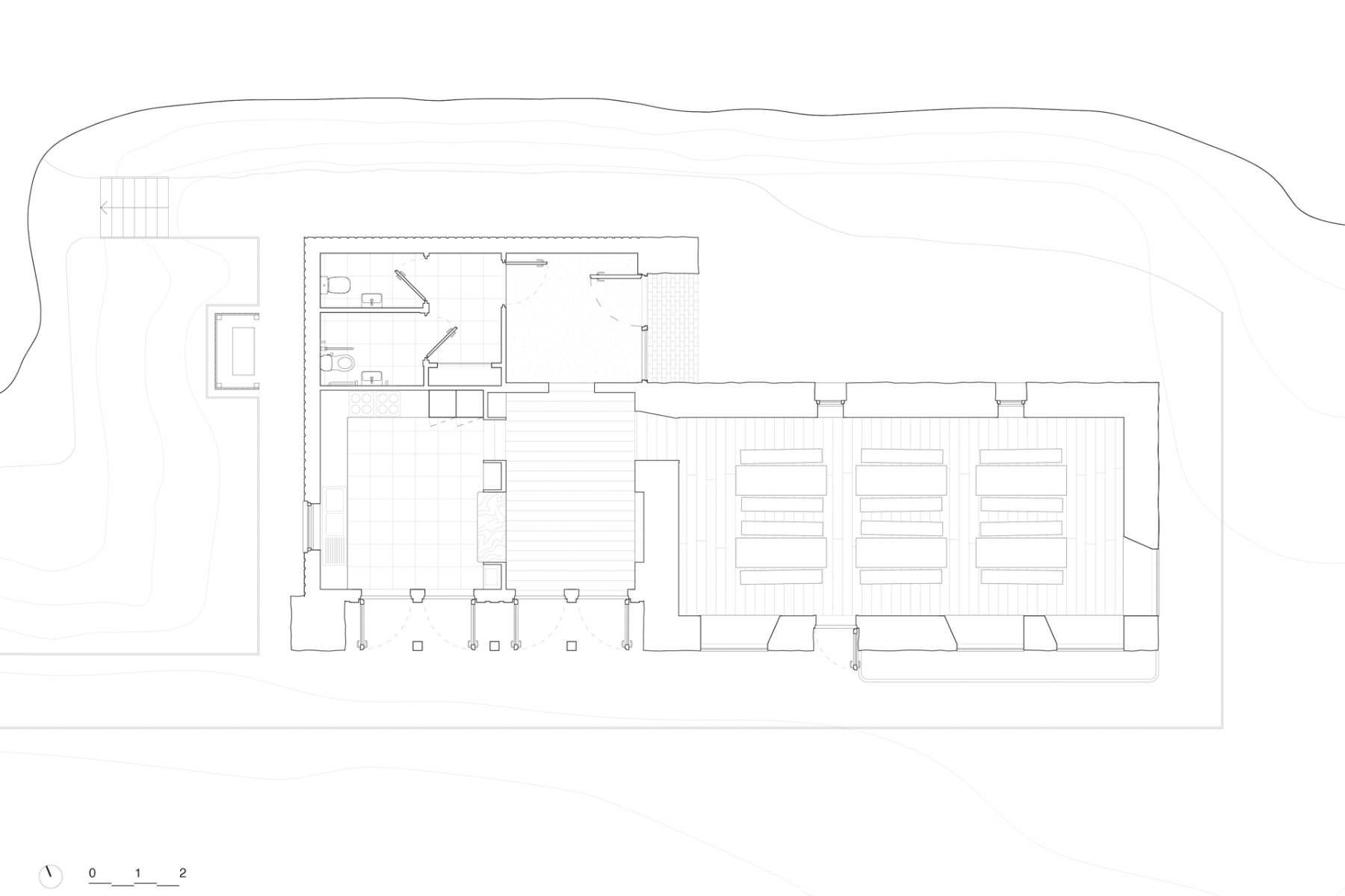
Fardaa rehabilitated the dilapidated stone barn and provided it a timber extension. The two volumes are adjoined in a slightly offset arrangement on the sloping site, with each topped by a gable roof. To reduce the project's carbon footprint as far as possible, use was made of locally available materials. The facades of the old building were sensitively restored with the help of basalt from the original walls and lime mortar, whereas the extension is clad in vertical larch slats.


Large windows provide views of the sea. © David Barbour
Access is provided centrally at the rear of the restaurant at the intersection of the old and new sections of the building. Both volumes provide guests with views of the sea through large windows, where deep reveals form an intriguing contrast to the organic outer walls. While the foyer, chef's kitchen and toilets are located in the extension building, an open dining hall that extends up to below the roof is to be found behind the existing thick walls of the barn.


The open dining hall extends up to below the roof. © David Barbour


The rafters have been left exposed. © David Barbour
Interior design of the dining hall
The rafters of the roof support structure have been left exposed and in combination with raw materials in muted colours ensure a warm atmosphere. In addition to white ash flooring and walls plastered in a subtle salmon hue, a decision was made in favour of unobtrusive furnishings featuring chairs from a French café. Long tables in Douglas fir timber fashioned out of a single tree from the island encourage communal dining, rounding off the convivial ambience of the small Scottish restaurant in befitting manner.
Architecture: fardaa
Client: Jeanette Cutlack, Croft 3
Location: Fanmore, Isle of Mull (UK)
Structural engineering: SF Structures













