Zwischen Alt und Neu
Revitalisierung eines Regionalzentrums in Flandern
Regionalzentrum in Eeklo, © Dieter Van Caneghem
Zoom Architecten entwickeln in Eeklo den Masterplan für ein Regionalzentrum. Gemeinsam mit dem Büro Callebaut sanieren und ergänzen sie den bestehenden Hof und machen ihn zum vielseitigen Treffpunkt. Das einst landwirtschaftlich genutzte Ensemble liegt im flämischen Meetjesland. Als Regional- und Besucherzentrum bietet das Plattelandscentrum Huysmanhoeve eine Plattform für regionale Produkte, Kultur- und Freizeitaktivitäten sowie Kurse.


Der bestehende Hof wird saniert und ergänzt. © Dieter Van Caneghem
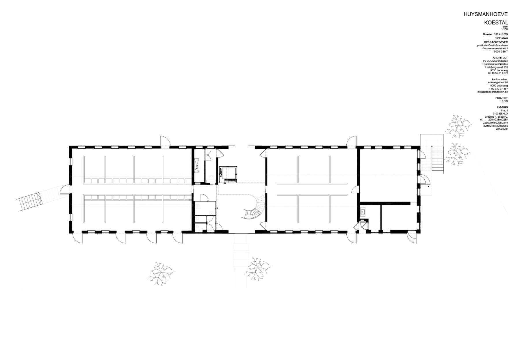
Die beiden belgischen Architekturstudios realisieren eine Erweiterung des Zentrums um über 1000 m² Fläche, die sich auf vier Gebäude verteilt. Dafür revitalisieren sie zwei alte Scheunen auf dem Gelände und ergänzen das Gehöft um zwei Neubauten.
Bauen im Bestand
Zum Herzstück des Projekts wird eine Querscheune, in der eine Cafeteria entsteht. Mit der Bestandsstruktur sollte im Zuge der Umnutzung auch der Charakter des Baus erhalten bleiben. Die hölzerne Fachwerkkonstruktion und die Außenhülle wurden behutsam restauriert. Im Innenraum halten neue Akzente Einzug: eine Glastrennwand, die den großen Raum in zwei Teile trennt und ein Kamin, der sich mit seiner mineralischen Optik klar von seiner Umgebung abhebt.


Im Inneren trennt eine Glaswand den großen Raum in zwei Teile. © Dieter Van Caneghem
Flexibler Grundriss
Ein 1958 erbauter Kuhstall beinhaltet nun über zwei Etagen verteilt Mehrzweckklassenräume. Im Zentrum des Gebäudes weicht ein Teil des Obergeschosses einem vertikalen Erschließungskern. Zwei Außentreppen sorgen für zusätzliche Flexibilität. Rund um die Originalstruktur entsteht ein offener Grundriss. Dieser lässt sich je nach Bedarf großflächig bespielen oder mithilfe von vier Glaswänden zonieren.


Ein kleiner Schuppen schließt an die sanierte Scheune an. © Dieter Van Caneghem


Eine Hütte mit durchlässigem Lochmauerwerk beherbergt eine Hackschnitzheizung. © Dieter Van Caneghem
Bei einem der Neubauten handelt es sich um einen kleinen Schuppen, der an die sanierte Scheune anschließt. Unter einem offenen Stahltragwerk mit Satteldach entstehen hier in dunkles Holz gehüllt zwei boxenartige, klimatisierte Räume. Das zweite Gebäude beruht ebenfalls auf einer Stahlkonstruktion. Von den Architekten als Hütte bezeichnet, beherbergt es die Hackschnitzheizung. Ein schornsteinartiger Turm sowie ein durchlässiges, naturfarbenes Lochmauerwerk verleihen dem Volumen eine fast skulpturale Optik und komplettieren das erweiterte Regional- und Besucherzentrum in Flandern.
Architektur: Zoom Architecten
Bauherr: Plattelandscentrum Huysmanhoeve
Standort: Eeklo (BE)
Tragwerksplanung: BAST architects & engineers
Sanierung: Callebaut architecten



















